data_sheet.details.realestate.section.main.otthonstart_flag.label
For sale apartment,
H507887
Budapest VI. kerület, Külső VI., Szív utca
85,000,000 Ft
219,000 €
- 90m²
- 5 Rooms
- semi-basement





























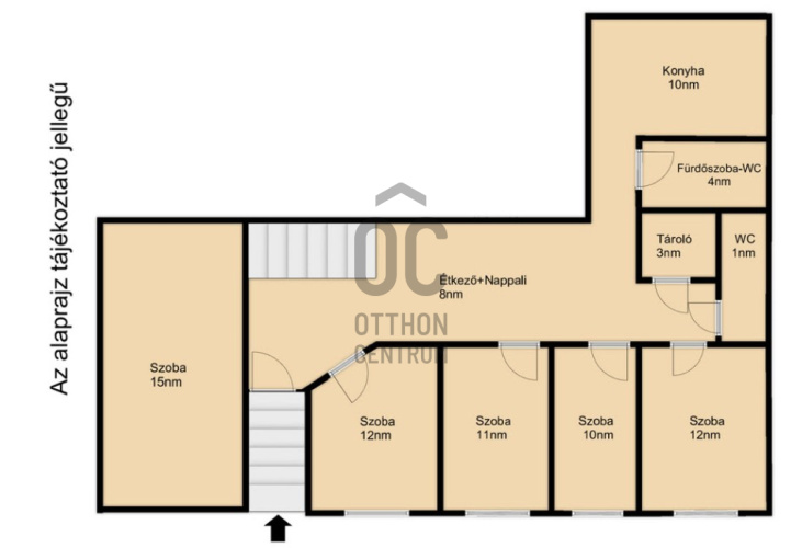
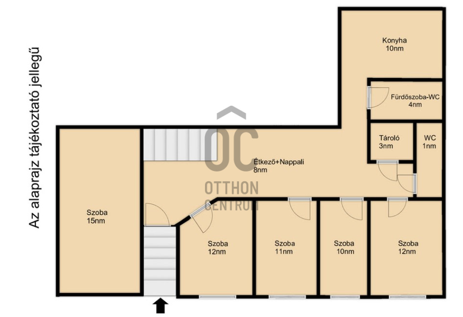
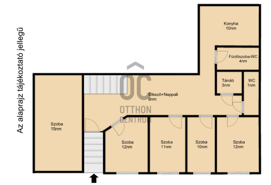
4-room, modern property in the VI. district, with guaranteed income! Investment opportunity for sale in the heart of Budapest, in the VI. district! We are offering for sale a 90 sqm fully renovated property located on a semi-basement level on Szív Street. ✅ 4 separate living rooms + 1 relaxation room ✅ 2 toilets + bathroom ✅ Currently operating as a hostel – tenants are eager to stay, providing immediate returns. ✅ High-quality renovation, modern design The location of the property is outstanding: in the city center of Budapest, in the central part of the VI. district, with excellent transportation and infrastructure. If I have piqued your interest, please call me at your convenience, even on weekends!
Registration Number
H507887
Property Details
Sales
for sale
Legal Status
used
Character
apartment
Construction Method
brick
Net Size
90 m²
Gross Size
90 m²
Heating
Gas circulator
Ceiling Height
260 cm
Orientation
North
Staircase Type
circular corridor
Condition
Good
Condition of Facade
Good
Condition of Staircase
Good
Year of Construction
1931
Number of Bathrooms
1
Position
street-facing
Water
Available
Gas
Available
Electricity
Available
Sewer
Available
Elevator
available
Rooms
room
12 m²
room
12 m²
room
11 m²
room
15 m²
room
10 m²
kitchen
10 m²
bathroom-toilet
4 m²
toilet
1 m²
storage
3 m²
corridor
10 m²

Helembai Dávid
Credit Expert