266,900,000 Ft
689,000 €
- 257.8m²
- 7 Rooms
Elegancia és tér – otthon, ahol a család élvezheti a luxust
Ahol a tér és harmónia találkozik: ez a 258 m²-es, kétszintes otthon Dunavarsányban kínál elegáns, élhető tereket egy sikeres család számára.
A 60 m²-es nappali tökéletes helyszíne a nagy családi összejöveteleknek, ugyanakkor elegendő tér nyílik a nyugodt otthoni munkára is. A tágas telek (1036 m²) rendezett kerttel, saját kis tóval és a házban elhelyezett dupla garázzsal párosul – igazi családi menedék az agglomeráció békéjével. A csendes kert varázslatos kikapcsolódást nyújt, ahol a reggeli kávé, a gyerekek játékai vagy egy esti borozás is különleges élménnyé válik.
Ez az otthon több, mint falak és terek – meghitt, biztonságos közeg, ahol a család minden tagja megtalálhatja a saját helyét. A modern, mégis barátságos enteriőr tökéletes alapot ad a stílusos berendezéshez, miközben a nagy üvegfelületek rengeteg fényárban úszó teret biztosítanak. A kert tóval igazi léleknyugtató oázis, ahol a család nyugodtan relaxálhat, a gyerekek önfeledten játszhatnak, a vendégek pedig különleges atmoszférát élvezhetnek.
Ez a ház nemcsak otthon, hanem értékálló befektetés is. A 5 éve épült, modern műszaki tartalommal kivitelezett épület hosszú távon biztosítja a gondtalan fenntartást és a stabil értéknövekedést. A minőségi alapanyagok, korszerű szigetelés és gépészet garantálják, hogy a rezsiköltségek alacsonyak maradjanak, miközben a ház értéke az ingatlanpiacon kiemelkedő.
A kivitelezés során a tulajdonosok kizárólag prémium anyagokkal és megbízható szakemberekkel dolgoztattak, így az új tulajdonos egy stabil, műszakilag kifogástalan házat vehet át. Az otthon minden részlete – a tágas nappalitól a kényelmes hálószobákig – az átgondolt tervezést és a hosszú távú kényelmet szolgálja.
„Alkalmi vétel” – most kedvező áron lehet az Öné egy olyan érték, amely nemcsak egy család életének ad otthont, hanem generációkon átívelő biztonságot és befektetési potenciált is hordoz.
A 60 m²-es nappali tökéletes helyszíne a nagy családi összejöveteleknek, ugyanakkor elegendő tér nyílik a nyugodt otthoni munkára is. A tágas telek (1036 m²) rendezett kerttel, saját kis tóval és a házban elhelyezett dupla garázzsal párosul – igazi családi menedék az agglomeráció békéjével. A csendes kert varázslatos kikapcsolódást nyújt, ahol a reggeli kávé, a gyerekek játékai vagy egy esti borozás is különleges élménnyé válik.
Ez az otthon több, mint falak és terek – meghitt, biztonságos közeg, ahol a család minden tagja megtalálhatja a saját helyét. A modern, mégis barátságos enteriőr tökéletes alapot ad a stílusos berendezéshez, miközben a nagy üvegfelületek rengeteg fényárban úszó teret biztosítanak. A kert tóval igazi léleknyugtató oázis, ahol a család nyugodtan relaxálhat, a gyerekek önfeledten játszhatnak, a vendégek pedig különleges atmoszférát élvezhetnek.
Ez a ház nemcsak otthon, hanem értékálló befektetés is. A 5 éve épült, modern műszaki tartalommal kivitelezett épület hosszú távon biztosítja a gondtalan fenntartást és a stabil értéknövekedést. A minőségi alapanyagok, korszerű szigetelés és gépészet garantálják, hogy a rezsiköltségek alacsonyak maradjanak, miközben a ház értéke az ingatlanpiacon kiemelkedő.
A kivitelezés során a tulajdonosok kizárólag prémium anyagokkal és megbízható szakemberekkel dolgoztattak, így az új tulajdonos egy stabil, műszakilag kifogástalan házat vehet át. Az otthon minden részlete – a tágas nappalitól a kényelmes hálószobákig – az átgondolt tervezést és a hosszú távú kényelmet szolgálja.
„Alkalmi vétel” – most kedvező áron lehet az Öné egy olyan érték, amely nemcsak egy család életének ad otthont, hanem generációkon átívelő biztonságot és befektetési potenciált is hordoz.
Registration Number
H506165
Property Details
Sales
for sale
Legal Status
used
Character
house
Construction Method
brick
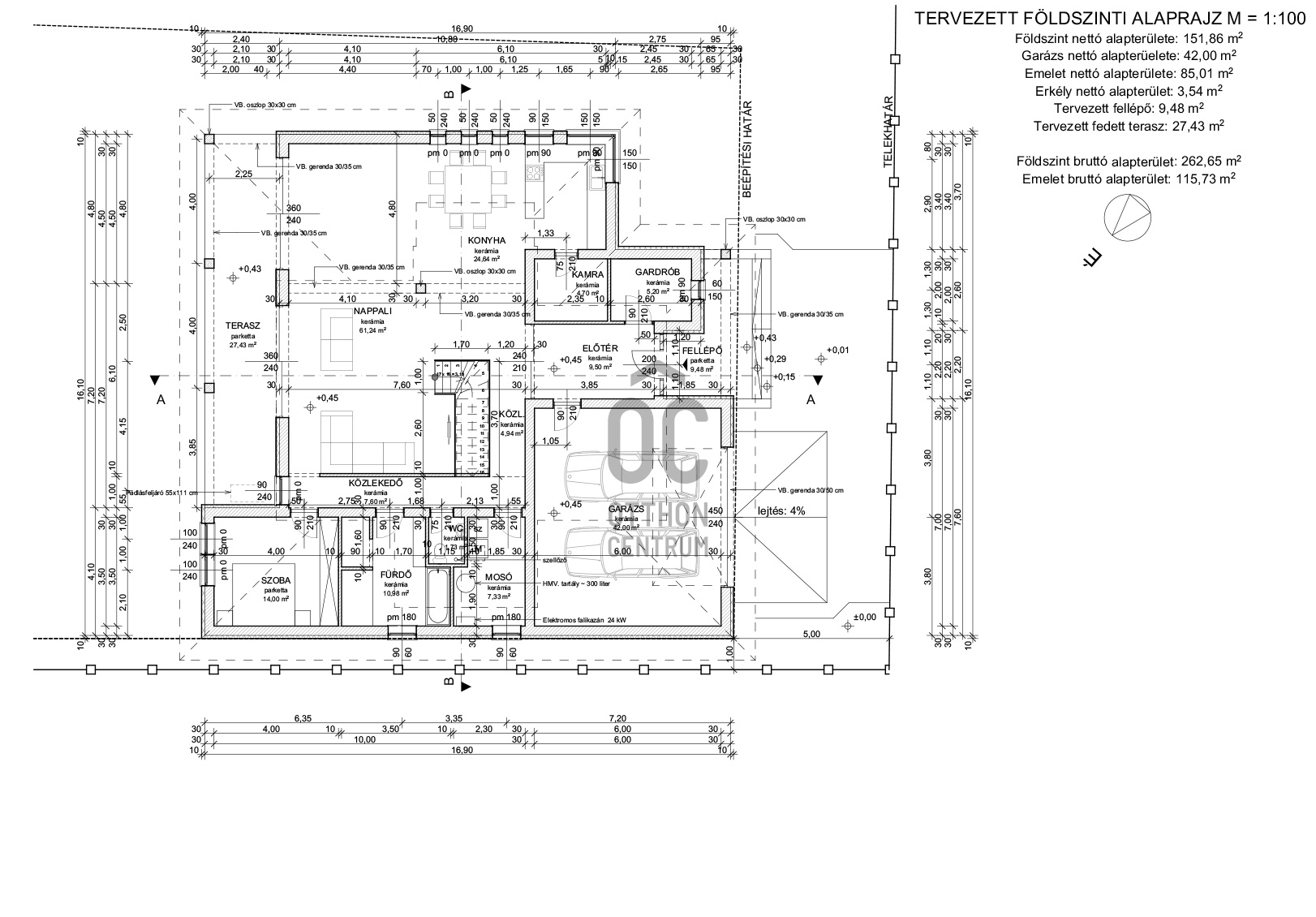
Net Size
257.8 m²
Gross Size
282 m²
Plot Size
1,036 m²
Heating
electric circulator
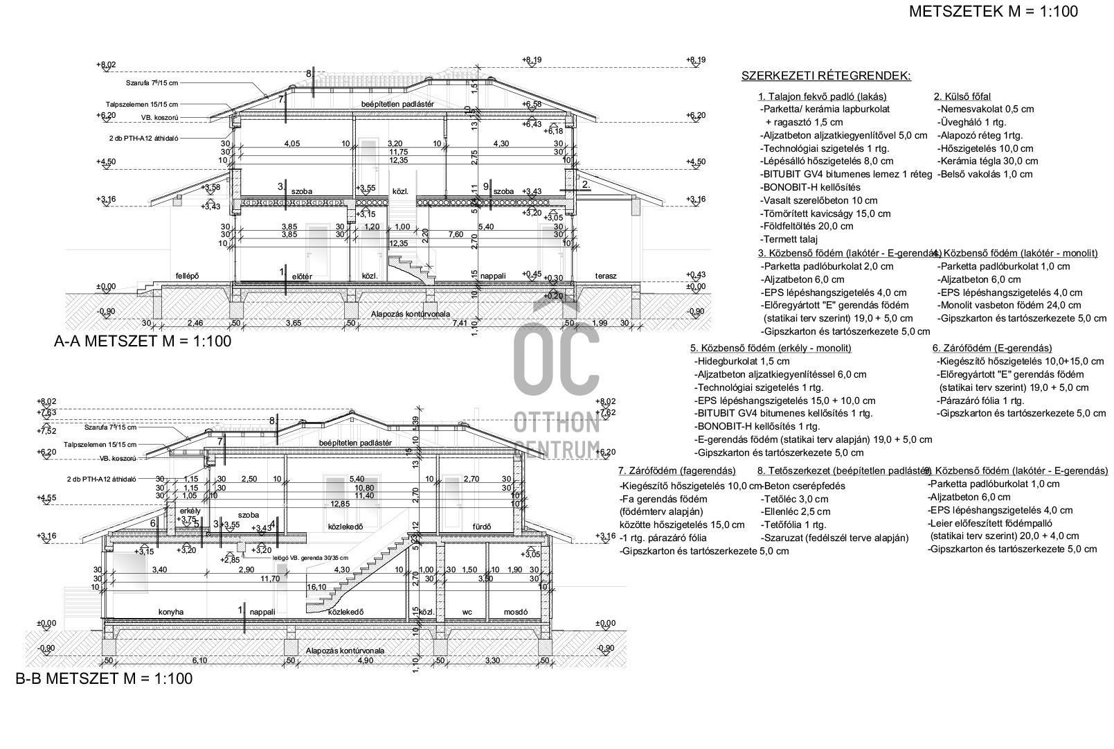
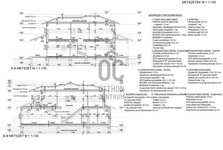
Ceiling Height
285 cm
Number of Levels Within the Property
1
Orientation
West
Condition
Good
Condition of Facade
Good
Neighborhood
quiet
Year of Construction
2020
Number of Bathrooms
2
Condominium Garden
yes
Garage
Included in the price
Garage Spaces
1
Water
Available
Electricity
Available
Sewer
Available
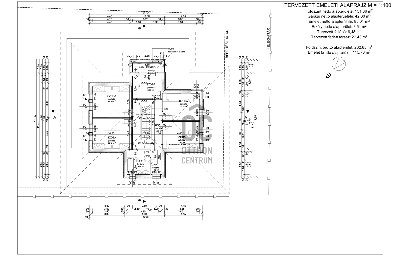
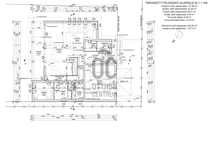
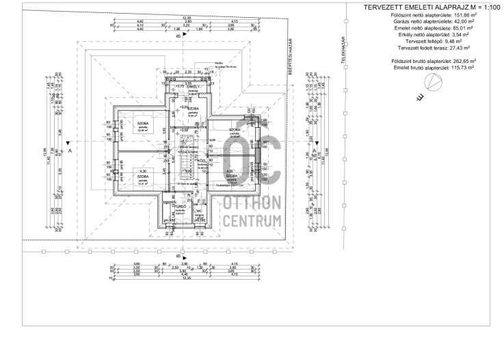
Rooms
living room
61 m²
kitchen
24 m²
pantry
4.74 m²
wardrobe
6.2 m²
entryway
9.5 m²
corridor
12.6 m²
bathroom
11 m²
bathroom-toilet
9 m²
room
14 m²
garage
42 m²
terrace
24.7 m²
room
14.8 m²
room
14.4 m²
room
8 m²
balcony
3.52 m²
room
12.15 m²
room
12.15 m²
bathroom-toilet
8 m²
staircase
14.9 m²