295,000,000 Ft
753,000 €
- 219.9m²
- 5 Rooms

















































PREMIUM-QUALITY, PANORAMIC FAMILY HOUSE WITH POOL IN DIÓSDLIGET
WHY CHOOSE THIS PROPERTY?
* Breathtaking panorama of the surrounding landscape.
* A huge 130 m² terrace and balcony complex with its own outdoor swimming pool.
* Premium quality construction without compromise.
* Generous spaces: 220 m² of net living space, with an excellent layout over 4 levels.
* Ideal for families: Spacious common areas and four separate bedrooms.
* A green-belt, prestigious location in a quiet part of Diósdliget.
* Parking for 2 vehicles on the plot.
* Practical storage and a unique atmosphere with a private wine cellar.
**THE PROPERTY**
This family house in Diósdliget, with 220 m² net (364 m² gross) of living space, is the perfect combination of luxury and comfort. The property comes with an intimate 300 m² garden and a total of 130 m² of terrace and balcony space, with a private pool as its centerpiece.
The house offers well-designed living spaces on four levels:
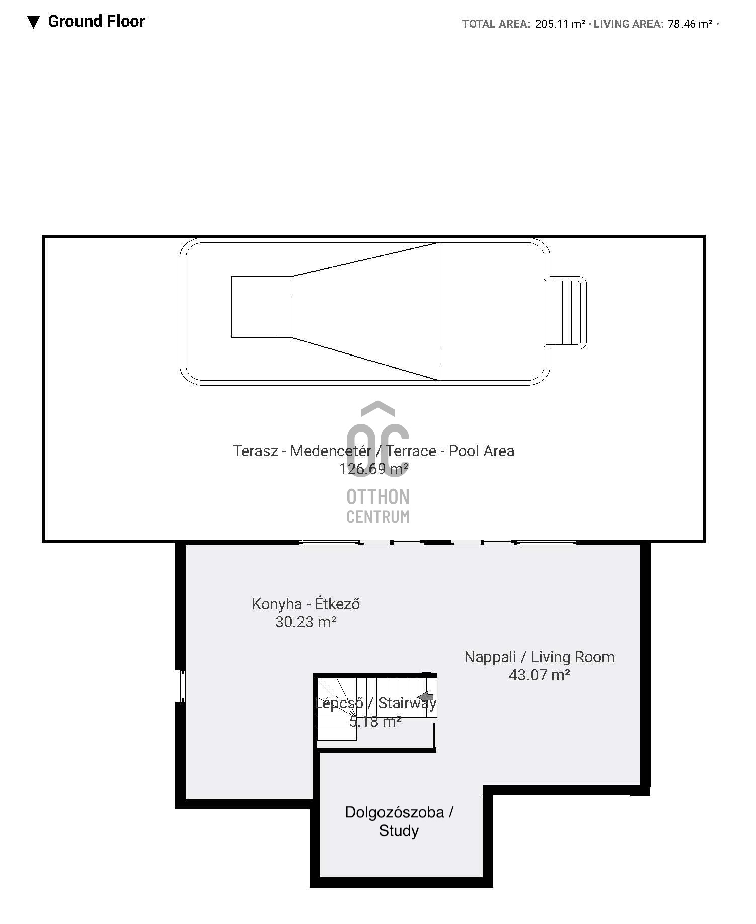
* The ground floor is the center of social life: here you will find the 30 m² living room, a spacious 30 m² kitchen-dining area, and a study. From here, a stunning 126 m² panoramic terrace and the pool area open up, providing the perfect setting for family and friends gatherings.
* The first floor houses the main entrance, a spacious hallway, and a complete master suite consisting of a private bedroom, a closet, and a bathroom, ensuring total intimacy.
* On the second floor, there are three additional separate bedrooms and a bathroom, ideal for children or guests.
* The souterrain level has a cozy wine cellar and the boiler room.
The high-quality construction, practical layout, and unparalleled panorama make this home truly special.
NEIGHBORHOOD
Diósdliget is one of the most sought-after and prestigious parts of the Budapest agglomeration. It is characterized by a quiet, safe, green-belt environment with excellent air quality. The infrastructure is well-developed, and Budapest is easily and quickly accessible by car and public transport. It is an ideal choice for anyone who desires both the proximity of the city and the tranquility of nature.
TECHNICAL DATA
* Structure: High-quality construction with 15 cm external thermal insulation.
* Windows and Doors: Modern, insulated plastic windows and doors.
* Heating: Gas-circulating system, combined with underfloor heating and radiators.
* Cooling: Built-in air conditioning system.
* Terrace and Balcony: Total 130 m².
* Parking: Uncovered parking for 2 cars on the plot.
* Extras: Outdoor swimming pool, wine cellar.
PARKING
Uncovered parking for 2 cars on the private plot.
WHO IS IT RECOMMENDED FOR?
The perfect choice for:
* Larger families looking for spacious, well-separated living spaces suitable for multi-generational living.
* Discerning buyers who want a representative, premium-quality, and valuable home.
* Lovers of outdoor life who want to enjoy the opportunities offered by the huge, panoramic terrace and the private pool.
Asking Price: 295,000,000 Ft (approx. 737,500 EUR)
If you are interested in the property, please contact me so I can provide you with more information and organize a personal viewing.
* Breathtaking panorama of the surrounding landscape.
* A huge 130 m² terrace and balcony complex with its own outdoor swimming pool.
* Premium quality construction without compromise.
* Generous spaces: 220 m² of net living space, with an excellent layout over 4 levels.
* Ideal for families: Spacious common areas and four separate bedrooms.
* A green-belt, prestigious location in a quiet part of Diósdliget.
* Parking for 2 vehicles on the plot.
* Practical storage and a unique atmosphere with a private wine cellar.
**THE PROPERTY**
This family house in Diósdliget, with 220 m² net (364 m² gross) of living space, is the perfect combination of luxury and comfort. The property comes with an intimate 300 m² garden and a total of 130 m² of terrace and balcony space, with a private pool as its centerpiece.
The house offers well-designed living spaces on four levels:
* The ground floor is the center of social life: here you will find the 30 m² living room, a spacious 30 m² kitchen-dining area, and a study. From here, a stunning 126 m² panoramic terrace and the pool area open up, providing the perfect setting for family and friends gatherings.
* The first floor houses the main entrance, a spacious hallway, and a complete master suite consisting of a private bedroom, a closet, and a bathroom, ensuring total intimacy.
* On the second floor, there are three additional separate bedrooms and a bathroom, ideal for children or guests.
* The souterrain level has a cozy wine cellar and the boiler room.
The high-quality construction, practical layout, and unparalleled panorama make this home truly special.
NEIGHBORHOOD
Diósdliget is one of the most sought-after and prestigious parts of the Budapest agglomeration. It is characterized by a quiet, safe, green-belt environment with excellent air quality. The infrastructure is well-developed, and Budapest is easily and quickly accessible by car and public transport. It is an ideal choice for anyone who desires both the proximity of the city and the tranquility of nature.
TECHNICAL DATA
* Structure: High-quality construction with 15 cm external thermal insulation.
* Windows and Doors: Modern, insulated plastic windows and doors.
* Heating: Gas-circulating system, combined with underfloor heating and radiators.
* Cooling: Built-in air conditioning system.
* Terrace and Balcony: Total 130 m².
* Parking: Uncovered parking for 2 cars on the plot.
* Extras: Outdoor swimming pool, wine cellar.
PARKING
Uncovered parking for 2 cars on the private plot.
WHO IS IT RECOMMENDED FOR?
The perfect choice for:
* Larger families looking for spacious, well-separated living spaces suitable for multi-generational living.
* Discerning buyers who want a representative, premium-quality, and valuable home.
* Lovers of outdoor life who want to enjoy the opportunities offered by the huge, panoramic terrace and the private pool.
Asking Price: 295,000,000 Ft (approx. 737,500 EUR)
If you are interested in the property, please contact me so I can provide you with more information and organize a personal viewing.
Registration Number
H504988
Property Details
Sales
for sale
Legal Status
used
Character
house
Construction Method
brick
Net Size
219.9 m²
Gross Size
363.6 m²
Plot Size
700 m²
Size of Terrace / Balcony
133.2 m²
Garden Size
300 m²
Heating
Gas circulator
Ceiling Height
255 cm
Number of Levels Within the Property
4
Orientation
West
View
Green view
Condition
Good
Condition of Facade
Good
Basement
Independent
Neighborhood
quiet, green
Year of Construction
2008
Number of Bathrooms
2
Condominium Garden
yes
Water
Available
Gas
Available
Electricity
Available
Sewer
Available
Storage
Independent
Distance to Waterfront
more than 500 meters
Rooms
living room
30.12 m²
open-plan kitchen and dining room
30.23 m²
study
12.95 m²
terrace
126.69 m²
staircase
5.18 m²
entryway
4.37 m²
bedroom
19.64 m²
wardrobe
11.07 m²
bathroom-toilet
7.5 m²
toilet-washbasin
2.84 m²
balcony
6.59 m²
storage
6.52 m²
hall
12.92 m²
corridor
17.64 m²
bedroom
19.67 m²
bedroom
16.12 m²
bedroom
16.12 m²
bathroom-toilet
7.11 m²
parking space
0 m²
wine cellar
0 m²
boiler room
0 m²