146,000,000 Ft
378,000 €
- 92m²
- 3 Rooms
- 2nd floor
Budapest 1. kerületben a Várnegyed lábánál, eladó egy Horváth kertre panorámás 2. emeleti, 92 nm nagyságú erkélyes lakás.
A ház 1869-ben épült, megőrizvén a múlt hangulatát. Belső folyosói újra lettek kövezve, falai festve.
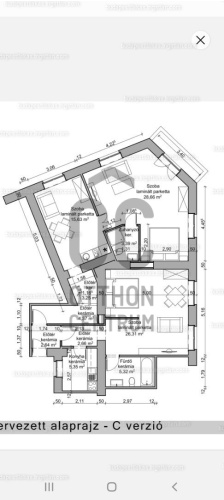
A lakás két apartmanra lett osztva, melynek bejáratai egy közös előszobából nyílnak.
A nagyobbik lakrész 47 nm, helységei: előszoba, konyha étkezővel, fürdő WC-vel, zuhannyal, és egy 29 nm -es tágas sarokszoba, erkéllyel.
A kisebbik lakrész 39 nm, helységei: előszoba, konyha, fürdő WC-vel, káddal, és egy 26 nm-es tágas szoba.
Kiváló bérbeadásra, saját lakrész és iroda kialakítására, szülők és felnövekvő gyermekük 'együtt, de mégis külön' lakhatására.
A ház 1869-ben épült, megőrizvén a múlt hangulatát. Belső folyosói újra lettek kövezve, falai festve.
A lakás két apartmanra lett osztva, melynek bejáratai egy közös előszobából nyílnak.
A nagyobbik lakrész 47 nm, helységei: előszoba, konyha étkezővel, fürdő WC-vel, zuhannyal, és egy 29 nm -es tágas sarokszoba, erkéllyel.
A kisebbik lakrész 39 nm, helységei: előszoba, konyha, fürdő WC-vel, káddal, és egy 26 nm-es tágas szoba.
Kiváló bérbeadásra, saját lakrész és iroda kialakítására, szülők és felnövekvő gyermekük 'együtt, de mégis külön' lakhatására.
Registration Number
DLK037988
Property Details
Sales
for sale
Legal Status
used
Character
apartment
Construction Method
brick
Net Size
92 m²
Gross Size
92 m²
Heating
Gas circulator
Ceiling Height
410 cm
Number of Levels Within the Property
1
Orientation
North-West
View
Other
Condition
Good
Condition of Facade
Good
Year of Construction
1869
Number of Bathrooms
2
Connected to Garden
yes
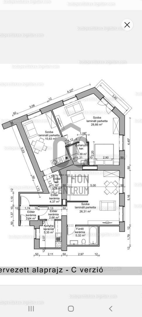
Rooms
entryway
7 m²
entryway
3.25 m²
open-plan kitchen and living room
15.63 m²
bathroom-toilet
3.39 m²
room
28.66 m²
balcony
3.4 m²
entryway
2.66 m²
kitchen
5.35 m²
room
26.31 m²
bathroom-toilet
5.32 m²
Tóth Róbert
Credit Expert