48,500,000 Ft
125,000 €
- 200m²

























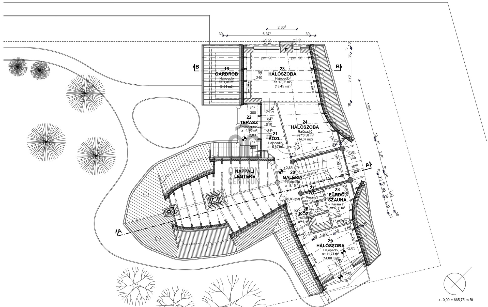
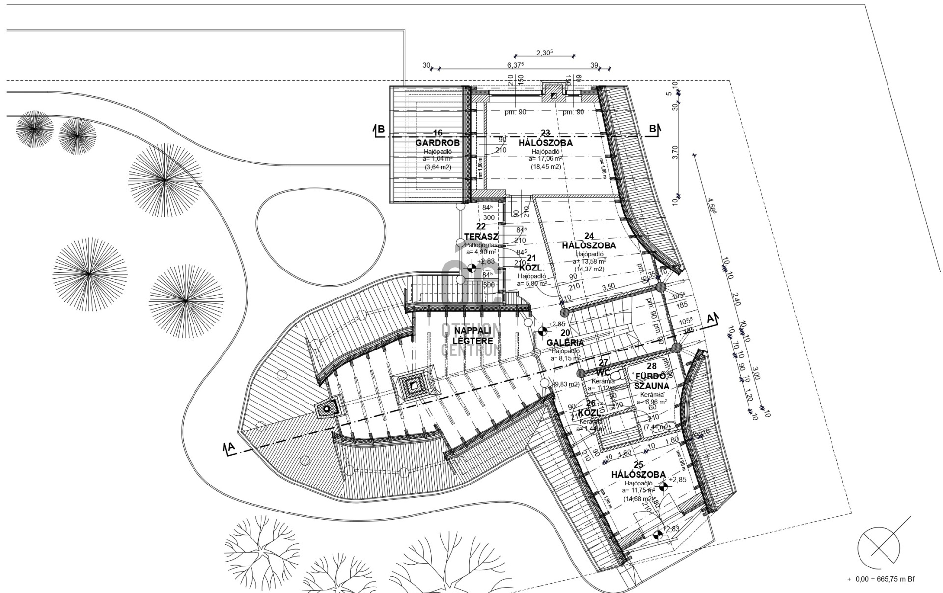
Félkész villa eladó Dobogókőn
Az Ország közkedvelt turisztikai látványosság közelében Dobogókőn eladó egy félkész Makovecz stilusban épült ház.
Elhelyezkedése a természet szomszédságában , 2158 nm telken épült.Viz ,villany , emésztő van .Meglévő tervek , rendelkezésre állnak.
Az ingtalan per -teher és igénymentes.
Érdeklődése esetén szivesen várom jelentkezését
H-P 10: 18 -ig , Szo: 10-12 ig
Kérje emailben bemutató videónkat !
Elhelyezkedése a természet szomszédságában , 2158 nm telken épült.Viz ,villany , emésztő van .Meglévő tervek , rendelkezésre állnak.
Az ingtalan per -teher és igénymentes.
Érdeklődése esetén szivesen várom jelentkezését
H-P 10: 18 -ig , Szo: 10-12 ig
Kérje emailben bemutató videónkat !
Registration Number
BI000561
Property Details
Sales
for sale
Character
developmental
Type of Development
Entire building
Subtype of Development
green zone villa
Net Size
200 m²
Plot Size
1,940 m²
Above-Ground Net Size
250 m²
Developable Net Size
200 m²
Developable Above-Ground Net Size
200 m²
Heating
tile stove (mixed)
Ceiling Height
300 cm
Number of Levels Within the Property
2
Condition
To be renovated
Condition of Facade
Below average
Year of Construction
2013
Garage Spaces
1
Water
Available
Electricity
Available
Developable Property
Apartment 1-20 units