319 990 000 Ft
848 000 €
- 511m²
Sokoldalúan hasznosítható üzleti ingatlan Kispesten
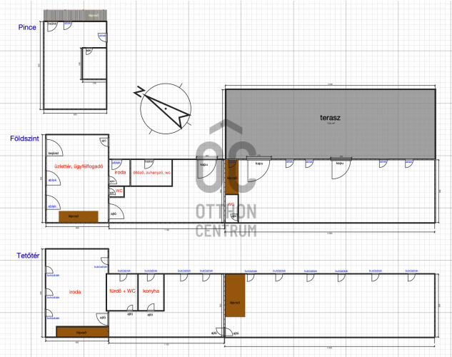
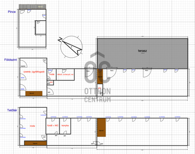
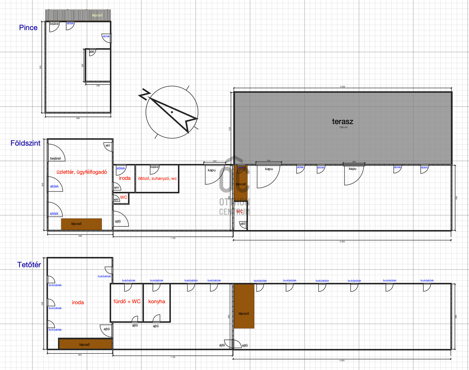
Kispest frekventált részén eladó egy sokoldalúan hasznosítható üzleti ingatlan, jó megközelíthetőséggel, utcafronti elhelyezkedéssel. A 545 m²-es telken egy 238 m² alapterületű, háromszintes (pince + földszint + tetőtér), jelenleg is üzletként és raktárként funkcionáló épület valamint egy 134m²-es terasz található.
A födszinten egy utcafronti üzlettér, egy kisméretű irodai szoba, egy dolgozói öltöző zuhanyzókkal, illetve két nagy alapterületű műhely/raktár kapott helyet, több bejárattal és kapuval.
A félnyeregtetős, 3,5 m csúcsmagasságú beépített tetőtéren egy nagyobb irodai helyiség, egy fürdőszoba, egy konyha, illetve üzemi funkciókra alkalmas tér található.
Az épület alatt egy 2,5 m belmagasságú pince biztosít extra raktározási lehetőséget.
A 134 m²-es terasz (fedett udvari rész) alkalmas pakolásra, tárolásra vagy kültéri munkavégzésre.
Az aszfaltozott udvarnak köszönhetően az ingatlan alkalmas kisebb méretű teherautók fogadására és rakodására is.
Ideális lehet:
• kereskedelmi tevékenységre
• bemutatóterem + műhely kombinációra
• szerviznek, üzemnek
• központi irodának raktárral
• webáruházas logisztikai bázisnak
• oktatóközpontnak
• egészségügyi központnak
• sportközpontnak
Jó lokáció, rugalmasan alakítható terek, komplex üzleti működésre optimalizált kialakítás.
• Beépíthetőség: 60% maximális beépíthetőség.
• Szintterületi mutató: Maximum 1,9 m²/m².
• Maximális építménymagasság: 10,5 m.
A födszinten egy utcafronti üzlettér, egy kisméretű irodai szoba, egy dolgozói öltöző zuhanyzókkal, illetve két nagy alapterületű műhely/raktár kapott helyet, több bejárattal és kapuval.
A félnyeregtetős, 3,5 m csúcsmagasságú beépített tetőtéren egy nagyobb irodai helyiség, egy fürdőszoba, egy konyha, illetve üzemi funkciókra alkalmas tér található.
Az épület alatt egy 2,5 m belmagasságú pince biztosít extra raktározási lehetőséget.
A 134 m²-es terasz (fedett udvari rész) alkalmas pakolásra, tárolásra vagy kültéri munkavégzésre.
Az aszfaltozott udvarnak köszönhetően az ingatlan alkalmas kisebb méretű teherautók fogadására és rakodására is.
Ideális lehet:
• kereskedelmi tevékenységre
• bemutatóterem + műhely kombinációra
• szerviznek, üzemnek
• központi irodának raktárral
• webáruházas logisztikai bázisnak
• oktatóközpontnak
• egészségügyi központnak
• sportközpontnak
Jó lokáció, rugalmasan alakítható terek, komplex üzleti működésre optimalizált kialakítás.
• Beépíthetőség: 60% maximális beépíthetőség.
• Szintterületi mutató: Maximum 1,9 m²/m².
• Maximális építménymagasság: 10,5 m.
Regisztrációs szám
UZ019425
Az ingatlan adatai
Értékesités
eladó
Jogi státusz
használt
Jelleg
üzleti célú
Típus
teljes épület
Építési mód
tégla
Méret
511 m²
Telek méret
545 m²
Terasz / erkély mérete
134 m²
Föld feletti nettó méret
236 m²
Belmagasság
280 cm
Lakáson belüli szintszám
2
Panoráma
városi panoráma
Állapot
Jó
Homlokzat állapota
Jó
Építés éve
2001
Víz
Van
Gáz
Van
Villany
Van
Csatorna
Van
Lehetséges funkciók
kiskereskedelem, vendéglátóipari egység, values.realestate.lehetsegesFunkcio.1024, panzió, hostel, sportközpont, egészségügyi központ, oktatási központ, mezőgazdasági telephely, bérház, egyéb
Láthatóság
Forgalmas főútról jól látható
Megközelíthetőseg
Forgalmas főútról nyíló bejárat
Hasznosítás
tulajdosnos használja
Zaracsi Szilvia
Hitelszakértő