171 450 000 Ft
453 000 €
- 306m²
Fedezze fel a jövő üzleti lehetőségeit Soroksáron - ideális helyszín várja Önt!
Az ingatlanpiac dinamikus fejlődése és a kereskedelmi lehetőségek bővülése előtt álló vállalkozások számára kiemelkedő ajánlatot kínálunk Budapest 23. kerületében, Soroksáron.
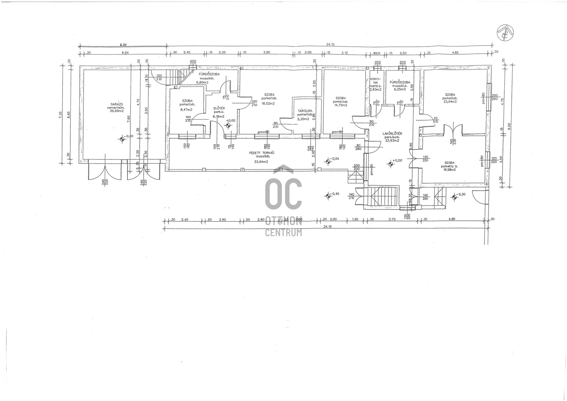
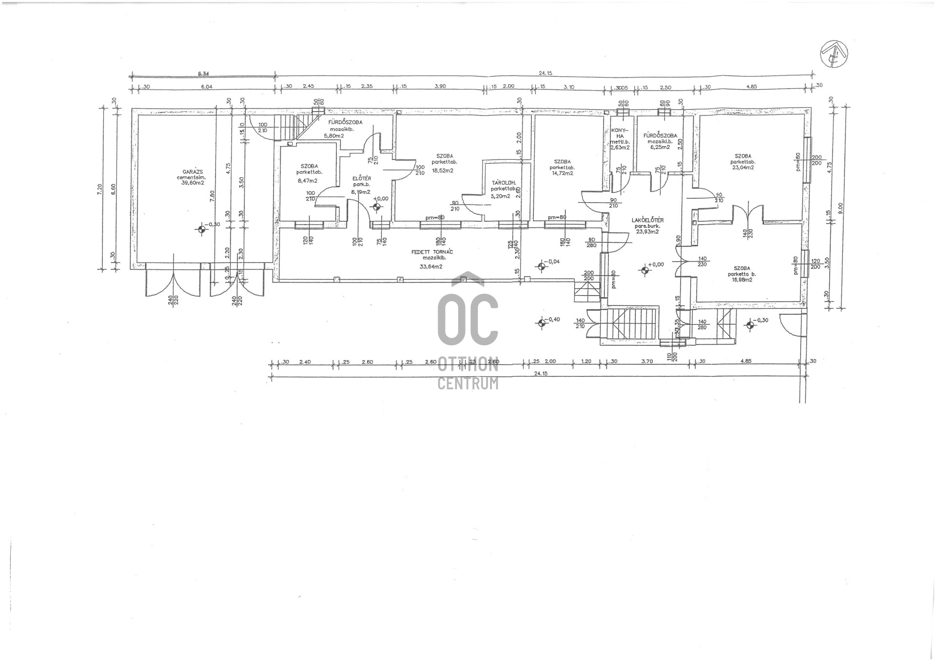
Az ingatlan, amely jelenleg iroda és raktározási funkcióval rendelkezik, ideális választás lehet azon cégek számára, akik szeretnék bővíteni tevékenységüket vagy új helyszínt keresnek üzleti céljaik megvalósításához. Az ingatlan két szintes, melyből a földszinti nettó alapterülete 218 nm, a telek pedig mérete 797 nm, amely lehetőséget biztosít a további fejlesztésekre is.
A környék adottságai rendkívül kedvezőek, hiszen Soroksár jól megközelíthető terület, amely ideális helyszín a vállalkozások számára.
Közlekedés szempontjából az ingatlan könnyen elérhető autóval, hiszen a közeli főbb közlekedési utak biztosítják a gyors hozzáférést a város többi részéhez, ugyanakkor pár perc alatt elérhető az M0-s autóút és az M5-ös autópálya is.
Emellett a tömegközlekedési lehetőségek is kedvezőek, így a munkavállalók számára is egyszerűen megközelíthető a helyszín, legyen szó buszjáratokról vagy a közeli HÉV megállóról.
Az ingatlan lehetőséget ad arra, hogy a jövőbeli bérlők vagy vásárlók saját igényeik szerint alakítsák ki a tér használatát. A jelenlegi funkciója, mint iroda és alkatrészraktár, tökéletesen illeszkedik a modern üzleti igényekhez, de a helyszín más funkciókra is könnyen átalakítható, például üzlethelyiségként való hasznosításra, így maximálisan kihasználható a benne rejlő potenciál.
A közelben található üzletek, szolgáltatások és éttermek mind hozzájárulnak ahhoz, hogy a vállalkozások számára ideális környezetet biztosítsanak. A zöld területek és a családias atmoszféra pedig tovább növeli a környék vonzerejét. Amennyiben Ön is kereskedelmi célú ingatlanban gondolkodik, és szeretne többet megtudni erről a remek lehetőségről, ne habozzon! Bármilyen kérdése van az ingatlannal vagy a környezettel kapcsolatban, bizalommal kereshet minket. Az Ön sikeres üzleti vállalkozásának támogatása érdekében állunk rendelkezésére, hogy minden részletet megosszunk Önnel. Az ingatlan piaca folyamatosan változik, ezért érdemes mihamarabb lépni, hogy ne maradjon le erről a kivételes ajánlatról!
Az ingatlan, amely jelenleg iroda és raktározási funkcióval rendelkezik, ideális választás lehet azon cégek számára, akik szeretnék bővíteni tevékenységüket vagy új helyszínt keresnek üzleti céljaik megvalósításához. Az ingatlan két szintes, melyből a földszinti nettó alapterülete 218 nm, a telek pedig mérete 797 nm, amely lehetőséget biztosít a további fejlesztésekre is.
A környék adottságai rendkívül kedvezőek, hiszen Soroksár jól megközelíthető terület, amely ideális helyszín a vállalkozások számára.
Közlekedés szempontjából az ingatlan könnyen elérhető autóval, hiszen a közeli főbb közlekedési utak biztosítják a gyors hozzáférést a város többi részéhez, ugyanakkor pár perc alatt elérhető az M0-s autóút és az M5-ös autópálya is.
Emellett a tömegközlekedési lehetőségek is kedvezőek, így a munkavállalók számára is egyszerűen megközelíthető a helyszín, legyen szó buszjáratokról vagy a közeli HÉV megállóról.
Az ingatlan lehetőséget ad arra, hogy a jövőbeli bérlők vagy vásárlók saját igényeik szerint alakítsák ki a tér használatát. A jelenlegi funkciója, mint iroda és alkatrészraktár, tökéletesen illeszkedik a modern üzleti igényekhez, de a helyszín más funkciókra is könnyen átalakítható, például üzlethelyiségként való hasznosításra, így maximálisan kihasználható a benne rejlő potenciál.
A közelben található üzletek, szolgáltatások és éttermek mind hozzájárulnak ahhoz, hogy a vállalkozások számára ideális környezetet biztosítsanak. A zöld területek és a családias atmoszféra pedig tovább növeli a környék vonzerejét. Amennyiben Ön is kereskedelmi célú ingatlanban gondolkodik, és szeretne többet megtudni erről a remek lehetőségről, ne habozzon! Bármilyen kérdése van az ingatlannal vagy a környezettel kapcsolatban, bizalommal kereshet minket. Az Ön sikeres üzleti vállalkozásának támogatása érdekében állunk rendelkezésére, hogy minden részletet megosszunk Önnel. Az ingatlan piaca folyamatosan változik, ezért érdemes mihamarabb lépni, hogy ne maradjon le erről a kivételes ajánlatról!
Regisztrációs szám
UZ019129
Az ingatlan adatai
Értékesités
eladó
Jogi státusz
használt
Jelleg
üzleti célú
Típus
teljes épület
Építési mód
tégla
Méret
306 m²
Telek méret
797 m²
Föld feletti nettó méret
204 m²
Kert méret
450 m²
Belmagasság
270 cm
Lakáson belüli szintszám
2
Állapot
Átlagos
Homlokzat állapota
Átlagos
Építés éve
1955
Társaház kert
igen
Víz
Van
Gáz
Van
Villany
Van
Csatorna
Van
Vízpart távolsága
500 méterre
Lehetséges funkciók
kiskereskedelem, ipari csarnok vagy raktár
Láthatóság
Forgalmas főútról jól látható
Megközelíthetőseg
Forgalmas főútról nyíló bejárat
Hasznosítás
tulajdosnos használja
Pongó Miklós
Hitelszakértő