1 600 000 000 Ft
4 073 000 €
- 1 400m²























Office building with expansion potential in a prime location in Angyalföld!
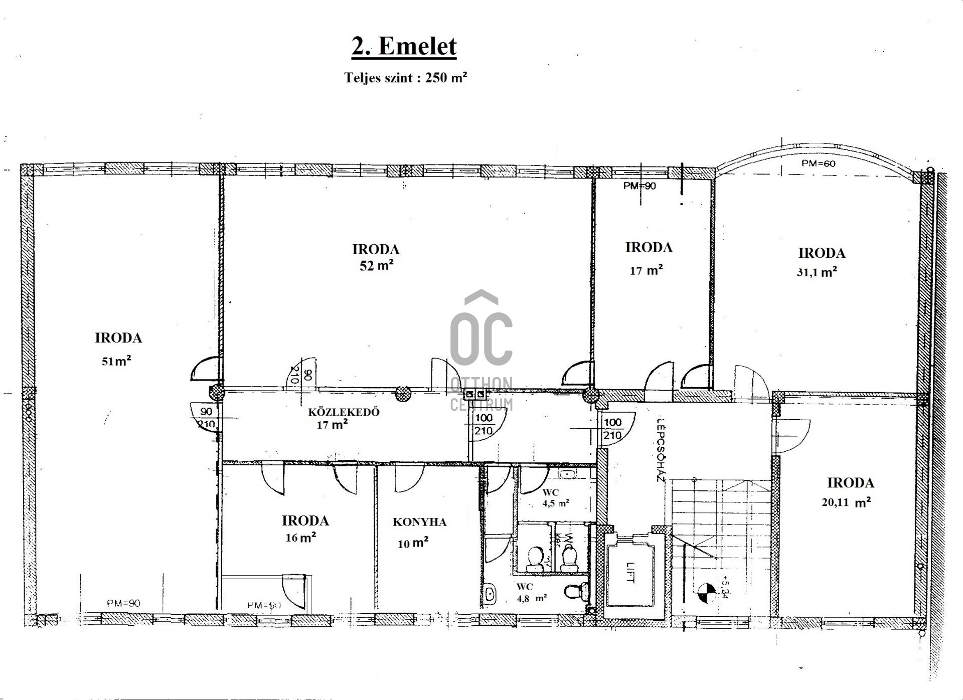
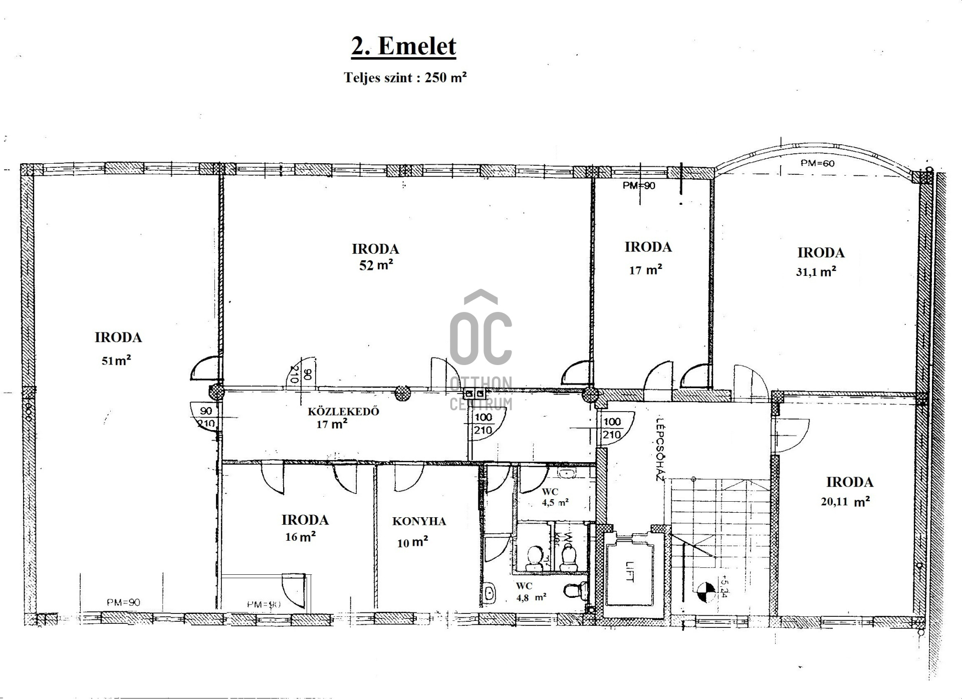
Office building with expansion potential in a prime location in Angyalföld! We are offering for sale a 5-story office building located in a high-traffic area of the XIII district, in good condition, equipped with modern mechanical systems, an elevator, parking spaces, and storage rooms. The total area of the property is 1,898.2 m². The office building itself is 1,400 m², with the remaining area (parking, vehicle access, courtyard, etc.) totaling 498.2 m². The building is constructed with monolithic reinforced concrete pillars and slabs, traditional brick main walls, and brick and drywall partition walls. The building features a traditional gabled roof with a wooden structure covered by Lindab sheet metal. It is built with insulated plastic windows, and the flooring typically consists of tiles, carpet, and parquet. The office building's pedestrian and vehicle traffic is managed through a modern access control system. There are approximately 50 parking spaces available in total (depending on the allocation) in the internal and external areas. A modern air conditioning system has been installed on the ground floor, while traditional split air conditioning units operate in the rest of the building. On the ground floor, there are 9 office rooms, a central reception at the entrance, and restrooms. The first floor features 8 office rooms, a server room, a kitchen, and restrooms. The second floor includes 5 offices, a storage room, a server room, a kitchen, and restrooms. The third floor has 7 offices, a server room, a kitchen, and restrooms. The fourth floor consists of 5 offices, a kitchen, restrooms, and a boiler room. The heating system is centrally controlled gas heating, operated by a modern condensing boiler, providing heating and hot water supply. The tenants include Hungarian-owned companies and the Hungarian subsidiaries of foreign corporations. The zoning classification is LN-3/B-1, allowing for a maximum of 50% above-ground development and a maximum of 70% below ground. The maximum street cornice height can be 16 meters. Currently, four out of five floors of the office building are leased long-term. This is an excellent investment opportunity, yielding a return that is considered good in the current market with continuous leasing. It could be a perfect choice for an office building, hotel, health center, shops, a smaller shopping center, or a central office for larger companies. On the area currently used as a parking lot, which is a separate plot with its own land registry number, an additional 1,600 m² building can be constructed, or even a parking garage, for which there is high demand in the area. There is also an option to purchase the property along with the company if desired. The two properties are only sold together and are not available separately. The price for both properties is 1,600,000,000 HUF + VAT.
Regisztrációs szám
UZ018026
Az ingatlan adatai
Értékesités
eladó
Jogi státusz
használt
Jelleg
üzleti célú
Típus
teljes épület
Építési mód
tégla
Méret
1 400 m²
Telek méret
2 500 m²
Föld feletti nettó méret
1 400 m²
Belmagasság
280 cm
Lakáson belüli szintszám
3
Állapot
Jó
Homlokzat állapota
Jó
Víz
Van
Gáz
Van
Villany
Van
Csatorna
Van
Lift
van
Lehetséges funkciók
iroda, iroda és bemutatóterem, vagy üzlet
Hasznosítás
részben bérbe adott
Havi bérleti díj
15

Pongó Miklós
Hitelszakértő