330 000 000 Ft
877 000 €
- 120m²
- 4 szoba
- 2. emelet
Luxury Waterfront Apartment for Sale in Pelso Bay – Directly on the Shores of Lake Balaton
If you’ve always dreamed of owning your own Balaton home, where the sunset reflects off the water straight onto your terrace, this property is for you.
For sale: a 120 m², living room + 3 bedrooms + 2 bathrooms apartment in the exclusive Pelso Bay residential complex in Alsóörs, with direct access to Lake Balaton.
The apartment is currently in shell and core condition, giving the new owner complete freedom to design and finish the interiors to personal taste – the perfect opportunity to create a unique, custom-made Balaton home.
Main features:
•120 m² floor area: living room + 3 bedrooms + 2 bathrooms
•Shell and core condition – finish it to your own style
•Spacious, sunlit rooms with large glass surfaces
•Balcony / terrace facing Lake Balaton
•Large private storage room
•3 dedicated parking spaces in a secure, closed area
•Premium-quality building with modern architecture and energy-efficient solutions
•Gated, secure community with private beach access and landscaped green areas
Pelso Bay amenities:
•Private beach and marina / yacht club
•Tennis court, basketball court, and various sports facilities
•Inner lake, sun terrace, wellness area, and tranquil gardens
•Well-maintained communal spaces and 24-hour security service
Why this property is special
Pelso Bay is more than a residential complex – it’s a lifestyle.
With its private beach, sports facilities, breathtaking lake views, and peaceful surroundings, this development offers true harmony and relaxation.
This apartment is a rare opportunity: still in shell and core condition, so you can personally choose every detail, from flooring to kitchen design.
Perfect for:
•Those seeking a premium holiday home on Lake Balaton
•Investors looking for a high-value property in a top location
•Or anyone wishing to enjoy year-round lakeside living
Your dream home on the shore of Lake Balaton – designed by you.
At Pelso Bay, every day feels like a little holiday.
For sale: a 120 m², living room + 3 bedrooms + 2 bathrooms apartment in the exclusive Pelso Bay residential complex in Alsóörs, with direct access to Lake Balaton.
The apartment is currently in shell and core condition, giving the new owner complete freedom to design and finish the interiors to personal taste – the perfect opportunity to create a unique, custom-made Balaton home.
Main features:
•120 m² floor area: living room + 3 bedrooms + 2 bathrooms
•Shell and core condition – finish it to your own style
•Spacious, sunlit rooms with large glass surfaces
•Balcony / terrace facing Lake Balaton
•Large private storage room
•3 dedicated parking spaces in a secure, closed area
•Premium-quality building with modern architecture and energy-efficient solutions
•Gated, secure community with private beach access and landscaped green areas
Pelso Bay amenities:
•Private beach and marina / yacht club
•Tennis court, basketball court, and various sports facilities
•Inner lake, sun terrace, wellness area, and tranquil gardens
•Well-maintained communal spaces and 24-hour security service
Why this property is special
Pelso Bay is more than a residential complex – it’s a lifestyle.
With its private beach, sports facilities, breathtaking lake views, and peaceful surroundings, this development offers true harmony and relaxation.
This apartment is a rare opportunity: still in shell and core condition, so you can personally choose every detail, from flooring to kitchen design.
Perfect for:
•Those seeking a premium holiday home on Lake Balaton
•Investors looking for a high-value property in a top location
•Or anyone wishing to enjoy year-round lakeside living
Your dream home on the shore of Lake Balaton – designed by you.
At Pelso Bay, every day feels like a little holiday.
Regisztrációs szám
U0048874
Az ingatlan adatai
Értékesités
eladó
Jogi státusz
új
Jelleg
lakás
Építési mód
tégla
Méret
120 m²
Bruttó méret
120 m²
Fűtés
hőszivattyú
Belmagasság
280 cm
Tájolás
Dél
Panoráma
városi panoráma, folyóra tóra néző panoráma, Zöldre néző panoráma
Lépcsőház típusa
zárt lépcsőház
Állapot
Kiváló
Homlokzat állapota
Kiváló
Lépcsőház állapota
Kiváló
Környék
csendes
Építés éve
2025
Fürdőszobák száma
2
Fekvés
kertre néző
Víz
Van
Villany
Van
Csatorna
Van
Lift
van
Tároló
Önálló
Vízpart távolsága
vízparti
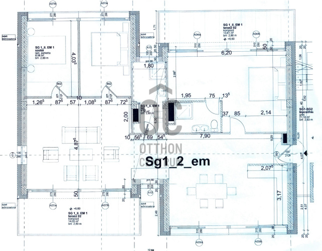
Helyiségek
nappali-konyha
30 m²
nappali
26 m²
hálószoba
11 m²
hálószoba
11.5 m²
hálószoba
18 m²
fürdőszoba-wc
5.5 m²
fürdőszoba-wc
4 m²
terasz
14 m²
terasz
14 m²
Pfeffer Kinga
Hitelszakértő