Elérhető Otthon Start hitellel
Eladó újépítésű ikerház,
U0048711
Gyál
112 990 000 Ft
291 000 €
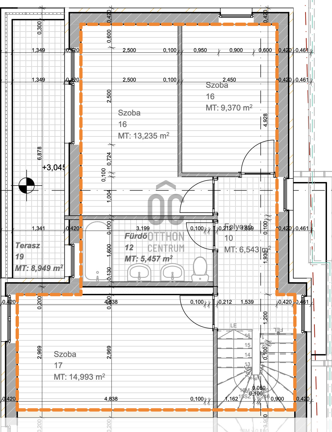
- 121,8m²
- 5 szoba








Megvételre kínálunk Gyálon csendes kis utcában ikerház felét.
A 2 lakásos lakóépület saját garázzsal és saját kert résszel rendelkezik.
Az építkezés jelen szakaszában igény szerint választható a nappali+3 hálószoba vagy a nappali+ 4 szoba kialakítás, illetve a burkolatok, a beltéri ajtók és a gépesített konyha választható.
Az ingatlan Gyál családi házas, csendes zöldövezetében, 574 m2-es telken helyezkedik el, 136 m2, 201 m2 használatú kerttel.
A ház H tarifás áramellátást kap, energetikai besorolása A+ lesz.
Tervezett átadás: 2025 december.
Az energetika besorolása A+.
Fűtés, hűtés, melegvíz:
Központi levegő–víz hőszivattyús rendszer szolgáltatja a fűtést, hűtést és a használati melegvizet.
Padlófűtés a teljes lakótérben, valamint fan-coil hűtés/fűtés a nappaliban és emeleti szobákban.
Okos vezérlés előkészítve:
Igény esetén helyiségenkénti termosztátos vezérlés és okosotthon rendszer is kialakítható.
Szerkezeti és műszaki adatok:
•Monolit vasbeton lemezalap – biztos, mozgásálló alapozás.
•Külső falak: 30 cm vastag Leier hőszigetelő tégla.
•Válaszfalak: Kiemelkedő hangszigetelésű Silka mészhomok tégla.
•Födémszerkezet: Hang- és tűzgátló tulajdonságokkal, statikai tervek szerint.
•Homlokzati hőszigetelés: 12 cm vastag EPS szigetelés.
•Tető monolit szerkezetű, szigetelés: 20 cm vastag üveggyapot, extra hőmegtartás érdekében.
Szigetelés: 20 cm vastag üveggyapot.
Nyílászárók és árnyékolástechnika:
•Biztonságos, többpontos záródású bejárati ajtók (MABISZ minősítéssel).
•Energiahatékony műanyag ablakok, belső műanyag és külső alumínium párkányokkal.
•Vakolható redőnyszekrények, opcionálisan hőszigetelt alumínium redőnyökkel és szúnyoghálókkal
Rendezett, parkosított saját kert, ideális családi programokhoz, pihenéshez vagy konyhakert kialakításához.
•A kert rendezése a vételár részét képezi.
Garázs és parkolás:
•Minden lakáshoz saját integrált garázs tartozik, közvetlen lakótéri kapcsolattal.
A lakások a CSOK+ feltételeinek megfelelnek.
Amennyiben kérdése lenne, vagy szeretné megtekinteni személyesen is, kérem hívjon bizalommal, várom.
Teljeskörű pénzügyi és jogi háttér-szolgáltatással várom kedves ügyfeleimet.
A 2 lakásos lakóépület saját garázzsal és saját kert résszel rendelkezik.
Az építkezés jelen szakaszában igény szerint választható a nappali+3 hálószoba vagy a nappali+ 4 szoba kialakítás, illetve a burkolatok, a beltéri ajtók és a gépesített konyha választható.
Az ingatlan Gyál családi házas, csendes zöldövezetében, 574 m2-es telken helyezkedik el, 136 m2, 201 m2 használatú kerttel.
A ház H tarifás áramellátást kap, energetikai besorolása A+ lesz.
Tervezett átadás: 2025 december.
Az energetika besorolása A+.
Fűtés, hűtés, melegvíz:
Központi levegő–víz hőszivattyús rendszer szolgáltatja a fűtést, hűtést és a használati melegvizet.
Padlófűtés a teljes lakótérben, valamint fan-coil hűtés/fűtés a nappaliban és emeleti szobákban.
Okos vezérlés előkészítve:
Igény esetén helyiségenkénti termosztátos vezérlés és okosotthon rendszer is kialakítható.
Szerkezeti és műszaki adatok:
•Monolit vasbeton lemezalap – biztos, mozgásálló alapozás.
•Külső falak: 30 cm vastag Leier hőszigetelő tégla.
•Válaszfalak: Kiemelkedő hangszigetelésű Silka mészhomok tégla.
•Födémszerkezet: Hang- és tűzgátló tulajdonságokkal, statikai tervek szerint.
•Homlokzati hőszigetelés: 12 cm vastag EPS szigetelés.
•Tető monolit szerkezetű, szigetelés: 20 cm vastag üveggyapot, extra hőmegtartás érdekében.
Szigetelés: 20 cm vastag üveggyapot.
Nyílászárók és árnyékolástechnika:
•Biztonságos, többpontos záródású bejárati ajtók (MABISZ minősítéssel).
•Energiahatékony műanyag ablakok, belső műanyag és külső alumínium párkányokkal.
•Vakolható redőnyszekrények, opcionálisan hőszigetelt alumínium redőnyökkel és szúnyoghálókkal
Rendezett, parkosított saját kert, ideális családi programokhoz, pihenéshez vagy konyhakert kialakításához.
•A kert rendezése a vételár részét képezi.
Garázs és parkolás:
•Minden lakáshoz saját integrált garázs tartozik, közvetlen lakótéri kapcsolattal.
A lakások a CSOK+ feltételeinek megfelelnek.
Amennyiben kérdése lenne, vagy szeretné megtekinteni személyesen is, kérem hívjon bizalommal, várom.
Teljeskörű pénzügyi és jogi háttér-szolgáltatással várom kedves ügyfeleimet.
Regisztrációs szám
U0048711
Az ingatlan adatai
Értékesités
eladó
Jogi státusz
új
Jelleg
ház
Építési mód
tégla
Méret
121,8 m²
Bruttó méret
121,8 m²
Telek méret
201 m²
Terasz / erkély mérete
9 m²
Fűtés
values.realestate.futes.27
Belmagasság
270 cm
Lakáson belüli szintszám
1
Tájolás
Dél
Panoráma
városi panoráma
Állapot
Kiváló
Homlokzat állapota
Kiváló
Környék
csendes, zöld
Építés éve
2026
Fürdőszobák száma
2
Garázs
Benne van az árban
Garázs férőhely
1
Víz
Van
Villany
Van
Csatorna
Van
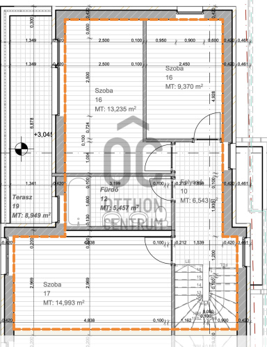
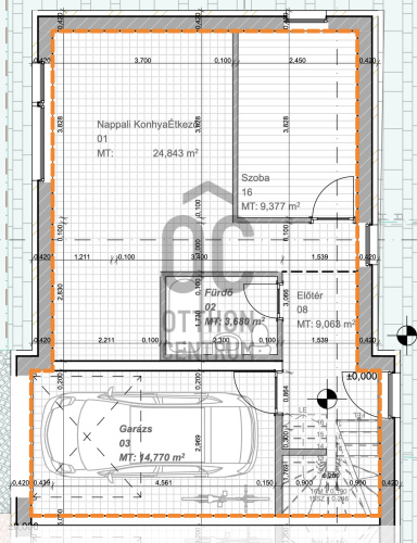
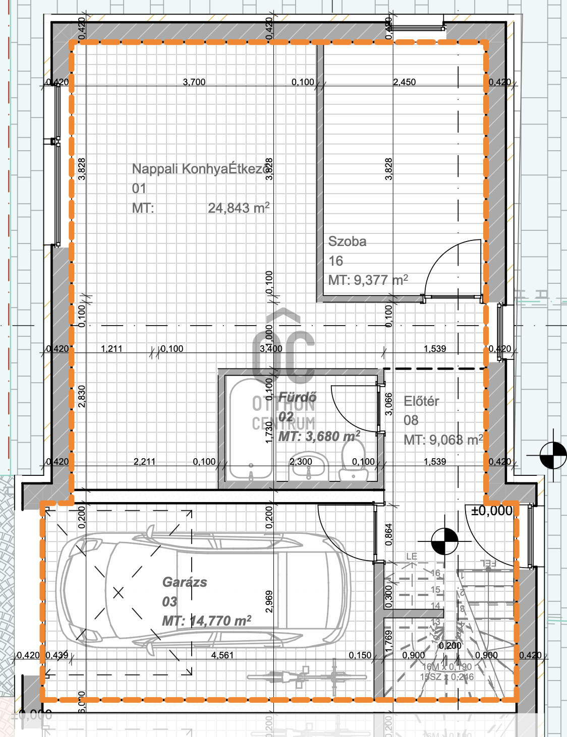
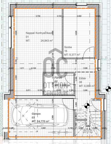
Helyiségek
előszoba
9 m²
fürdőszoba-wc
3.6 m²
szoba
9.4 m²
szoba
9.4 m²
szoba
13.2 m²
szoba
14.9 m²
közlekedő
6.5 m²
nappali-étkező
21 m²
konyha
3.8 m²
erkély
9 m²
garázs
16 m²

Helembai Dávid
Hitelszakértő