170,000,000 Ft
442,000 €
- 235m²
- 5 Rooms
ELADÓ 2 GENERÁCIÓS, EGYEDI KIALAKÍTÁSÚ CSALÁDI HÁZ PESTSZENTLŐRINCEN, LIPTÁKTELEPEN!
Csendes, mégis kiváló elhelyezkedésű különleges családi ház eladó a XVIII. kerületben, Liptáktelepen!
A 2003-ban épült, tégla szerkezetű ingatlan 235 m² hasznos alapterülettel, valamint 30 m²-es garázzsal rendelkezik. A gondozott, 664 m²-es telken elhelyezkedő ház most új tulajdonosát várja.
A ház kétgenerációs kialakításra alkalmas, és különlegessége a hatalmas, napfényes terek, a meleg tónusú faburkolatok és a gyönyörű látszógerendás mennyezet, amelyek egyedi, természetközeli hangulatot adnak minden helyiségnek.
Ideális választás nagycsaládosoknak, összeköltözőknek, illetve mindazoknak, akik egy nem mindennapi, tágas és karakteres otthonra vágynak!
________________________________________
FŐBB JELLEMZŐK:
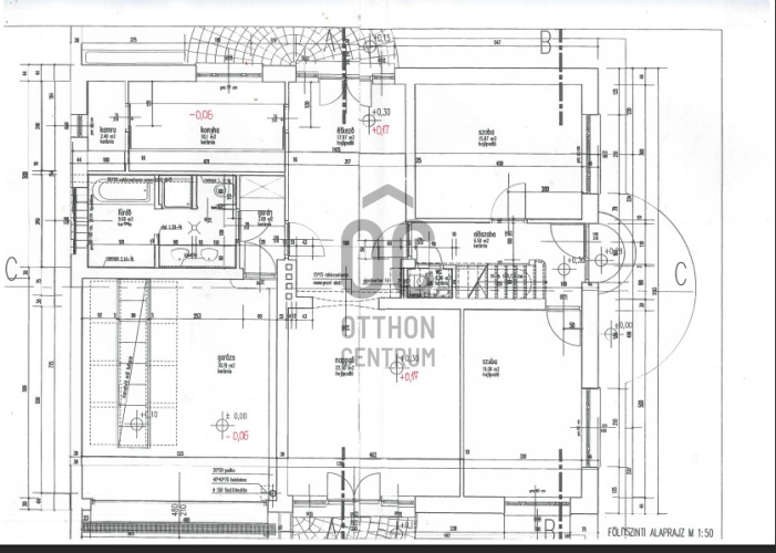
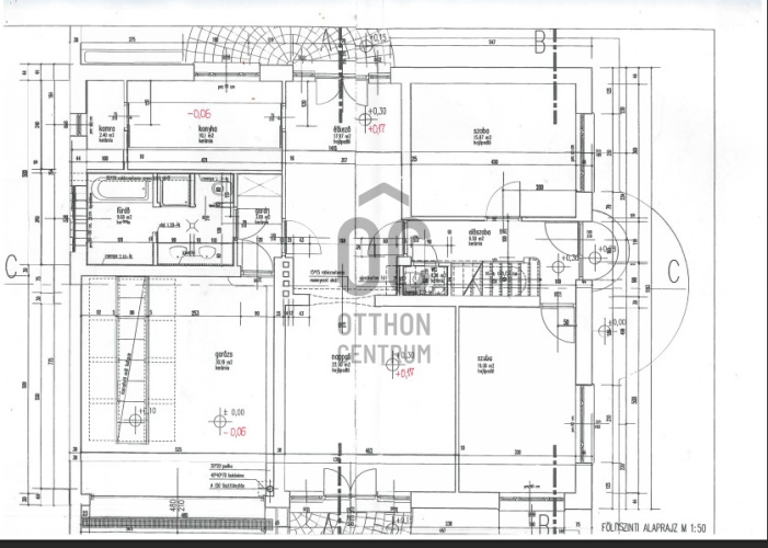
Földszint (137 m²):
•Tágas, világos nappali (kandallóbekötési lehetőséggel)
•Nagy konyha + étkező, természetes fa burkolatokkal
•2 kényelmes hálószoba
•Fürdőszoba (zuhanyzó + kád)
•Külön WC
•Előtér
•Dupla garázs szerelőaknával és tároló nyúlványokkal
A földszinti helyiségekben a nagy belmagasság és a fa részletek különleges térérzetet teremtenek, ami ritkaság a környéken.
________________________________________
Tetőtér (128 m²):
•1 hálószoba
•Fürdőszoba
•Egy óriási, egybenyitott tér, amely igény szerint több szobára is osztható
•Minden közmű előkészítve, így önálló lakrész is kialakítható
A tetőtér szintén fa mennyezettel és látszógerendákkal készült, mely meleg, otthonos hangulatot áraszt, és rengeteg lehetőséget kínál kreatív belsőépítészeti megoldásokra.
________________________________________
Műszaki adatok, extrák:
•Téglaépítés, 44 cm vastag teherhordó falak
•Buderus központi gázkazán fűtés és melegvíz ellátás
•3x32A elektromos teljesítmény
•Elektromos kapu és garázskapu
•Alumínium redőnyök, részben motoros működtetéssel
•Riasztórendszer
•Teljes közművesítés (víz, csatorna, gáz, villany)
________________________________________
Külső jellemzők:
A ház világos homlokzatú, fa nyílászárókkal, erkéllyel és kis terasszal ellátott.
A tágas udvar és a rendezett kert ideális családi programokhoz, pihenéshez vagy akár kerti partikhoz is.
________________________________________
Környék és elhelyezkedés:
A ház Pestszentlőrinc egyik legkedveltebb, nyugodt részén található, barátságos, csendes szomszédokkal.
Minden fontos szolgáltatás gyalogosan elérhető:
•Óvoda, általános és középiskola: 1 utca
•Lidl, OTP Bank, gyógyszertár: kb. 4–5 perc séta
•Kiváló közlekedés: busz, villamos, vasút pár percre
A környék kertvárosi, mégis remek infrastruktúrával és családias hangulattal rendelkezik.
________________________________________
További lehetőségek:
Az ingatlan jelenleg egy bejáratú, de kisebb ráfordítással két külön bejáratú lakássá alakítható.
A külső homlokzat esztétikai felújítást igényel, ami kiváló lehetőséget ad az új tulajdonosnak, hogy saját stílusára szabja ezt az egyedi, hatalmas terekkel rendelkező otthont.
A 2003-ban épült, tégla szerkezetű ingatlan 235 m² hasznos alapterülettel, valamint 30 m²-es garázzsal rendelkezik. A gondozott, 664 m²-es telken elhelyezkedő ház most új tulajdonosát várja.
A ház kétgenerációs kialakításra alkalmas, és különlegessége a hatalmas, napfényes terek, a meleg tónusú faburkolatok és a gyönyörű látszógerendás mennyezet, amelyek egyedi, természetközeli hangulatot adnak minden helyiségnek.
Ideális választás nagycsaládosoknak, összeköltözőknek, illetve mindazoknak, akik egy nem mindennapi, tágas és karakteres otthonra vágynak!
________________________________________
FŐBB JELLEMZŐK:
Földszint (137 m²):
•Tágas, világos nappali (kandallóbekötési lehetőséggel)
•Nagy konyha + étkező, természetes fa burkolatokkal
•2 kényelmes hálószoba
•Fürdőszoba (zuhanyzó + kád)
•Külön WC
•Előtér
•Dupla garázs szerelőaknával és tároló nyúlványokkal
A földszinti helyiségekben a nagy belmagasság és a fa részletek különleges térérzetet teremtenek, ami ritkaság a környéken.
________________________________________
Tetőtér (128 m²):
•1 hálószoba
•Fürdőszoba
•Egy óriási, egybenyitott tér, amely igény szerint több szobára is osztható
•Minden közmű előkészítve, így önálló lakrész is kialakítható
A tetőtér szintén fa mennyezettel és látszógerendákkal készült, mely meleg, otthonos hangulatot áraszt, és rengeteg lehetőséget kínál kreatív belsőépítészeti megoldásokra.
________________________________________
Műszaki adatok, extrák:
•Téglaépítés, 44 cm vastag teherhordó falak
•Buderus központi gázkazán fűtés és melegvíz ellátás
•3x32A elektromos teljesítmény
•Elektromos kapu és garázskapu
•Alumínium redőnyök, részben motoros működtetéssel
•Riasztórendszer
•Teljes közművesítés (víz, csatorna, gáz, villany)
________________________________________
Külső jellemzők:
A ház világos homlokzatú, fa nyílászárókkal, erkéllyel és kis terasszal ellátott.
A tágas udvar és a rendezett kert ideális családi programokhoz, pihenéshez vagy akár kerti partikhoz is.
________________________________________
Környék és elhelyezkedés:
A ház Pestszentlőrinc egyik legkedveltebb, nyugodt részén található, barátságos, csendes szomszédokkal.
Minden fontos szolgáltatás gyalogosan elérhető:
•Óvoda, általános és középiskola: 1 utca
•Lidl, OTP Bank, gyógyszertár: kb. 4–5 perc séta
•Kiváló közlekedés: busz, villamos, vasút pár percre
A környék kertvárosi, mégis remek infrastruktúrával és családias hangulattal rendelkezik.
________________________________________
További lehetőségek:
Az ingatlan jelenleg egy bejáratú, de kisebb ráfordítással két külön bejáratú lakássá alakítható.
A külső homlokzat esztétikai felújítást igényel, ami kiváló lehetőséget ad az új tulajdonosnak, hogy saját stílusára szabja ezt az egyedi, hatalmas terekkel rendelkező otthont.
Registration Number
H509204
Property Details
Sales
for sale
Legal Status
used
Character
house
Construction Method
brick
Net Size
235 m²
Gross Size
265 m²
Plot Size
664 m²
Heating
Gas circulator
Ceiling Height
300 cm
Number of Levels Within the Property
1
Orientation
South-West
Condition
Good
Condition of Facade
Good
Neighborhood
quiet, good transport, green
Year of Construction
2003
Number of Bathrooms
2
Garage
Included in the price
Garage Spaces
2
Water
Available
Gas
Available
Electricity
Available
Sewer
Available
Multi-Generational
yes
Rooms
living room
23 m²
room
16 m²
entryway
5 m²
room
15.9 m²
dining room
18 m²
kitchen
9.9 m²
wardrobe
0.8 m²
bathroom
7.9 m²
pantry
2.3 m²
garage
30.7 m²
room
29.2 m²
bathroom
17.7 m²
other room
80 m²
Helembai Dávid
Credit Expert