Elérhető Otthon Start hitellel
Eladó újépítésű sorház,
U0045386
Debrecen, Hatvan-utcai kert
119 990 000 Ft
307 000 €
- 117m²
- 4 szoba














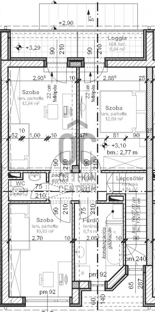
Debrecen kedvelt részén, a Hatvan utcai kert csendes, új építésű övezetében, magas műszaki tartalommal rendelkező, jó elrendezésű, kétszintes, sorházi lakás eladó. Az ingatlan, nappali + 3szobás, dupla komfortú, a földszinten garázzsal, terasszal, és önálló kertkapcsolattal.Kedvező hitelkonstrukció és vásárlási feltételek.
Az ingatlan jellemzői:
-modern építési technológia
-saját kertkapcsolat
-nagy terasz
-hőszigetelt üvegezésű, argon gázzal töltött ablakok
-cirkó-fűtés, kondenzációs kazánnal
-minőségi burkolatok és szaniterek
-kitűnő infrastruktúra
-csendes, értékálló környezet
-stb.
Az ingatlan jellemzői:
-modern építési technológia
-saját kertkapcsolat
-nagy terasz
-hőszigetelt üvegezésű, argon gázzal töltött ablakok
-cirkó-fűtés, kondenzációs kazánnal
-minőségi burkolatok és szaniterek
-kitűnő infrastruktúra
-csendes, értékálló környezet
-stb.
Regisztrációs szám
U0045386
Az ingatlan adatai
Értékesités
eladó
Jogi státusz
új
Jelleg
ház
Építési mód
tégla
Méret
117 m²
Bruttó méret
124 m²
Telek méret
196 m²
Terasz / erkély mérete
17 m²
Fűtés
Gáz cirkó
Belmagasság
270 cm
Lakáson belüli szintszám
1
Tájolás
Kelet
Állapot
Kiváló
Homlokzat állapota
Kiváló
Környék
csendes, jó közlekedés, zöld
Építés éve
2022
Fürdőszobák száma
2
Garázs
Benne van az árban
Garázs férőhely
1
Víz
Van
Gáz
Van
Villany
Van
Csatorna
Van
Helyiségek
dolgozószoba
12 m²
erkély
7 m²
fürdőszoba
7 m²
hálószoba
13 m²
garázs
15 m²
nappali
17 m²

Plébán László
Hitelszakértő