Újépítésű 5 lakásos társasház a Hatvan utcai kertben.
Debrecen kedvelt, és egyik legértékálóbb részén, a Hatvan Utcai kert csendes utcájában, közel a Kenézy kórházhoz épül, egy 5 lakásos társasház.
Az ingatlan a legmodernebb építőanyagokkal, szerkezeti elemekkel lesz megépítve.
Minden lakás terve átgondolt, élhető tereket tartalmaz, jó kiosztású, modern elrendezésű.
Várható átadás : ha minden jól megy 2026 év vége, de max 2027 tavasza.
A társasház felépítése :
Földszinten : 1 db lakás ( 74,42 m2 ) + teraszkapcsolattal ( 9,77 m2 ) , 5 db gépkocsitároló és 5 db tároló
Emelet : 2 db lakás erkéllyel ( egyik lakás :74,42 m2 + 9,77 m2 erkély , a másik lakás : 62,87 m2 + 4,1 m2 erkély )
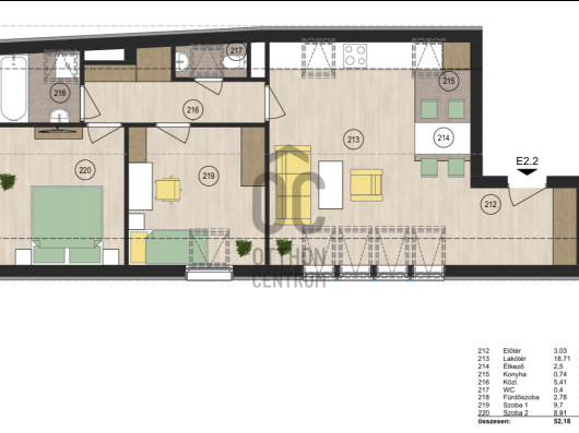
Tetőtér : 2 db lakás ( egyik lakás : 57,2 m2 , a másik lakás: 52,18 m2 )
Műszaki jellemzői :
- Leier 30 NF tégla főfalak
- Leier 10 Nf tégla válaszfalak
- homlokzati, lábazati szigetelés : 15 cm polisztirol
- nyeregtetős tetőszerkezet, betoncserép héjazással
- nyílászárók : műanyag , 3 rtg - ű üvegezés a 6 légkamrás profilban ( prémimum német minőség, szinezett kivitelben )
- fűtés : levegő - víz hőszivattyú alkalmazással lesz megvalósítva, padló hőleadókkal , vizes helyiségekben törölköző szárítóval
- árnyékolás : elektromos vezérlésű aluminium redőny
- erkély : edzett üveg betétekkel
- kaputelefonos és kódzárós beléptető rendszer
- udvar : térkövezés, füvesítés, parkosítás, kandellábelek az udvaron kivitelezésre kerülnek
Műszaki tartalom:
- beltéri ajtók : borovi dekorfóliás, 5 féle választható szinben
- hidegburkolat : 8.200 Ft/m2 bruttó ár
- melegburkolat : 8.500 FT/m2 bruttó ár
- zuhanykabin : 89.280 Ft/db nettó ár
- mosdó : 25.500 Ft/db nettó ár
- fürdőkád : 101.500 Ft/db nettó ár
- beépített wc : 58.600 Ft/db nettó ár
- zuhany csaptelep : 26.280 Ft/db nettó ár
- mosdó csaptelep : 25.700 Ft/db nettó ár
- kádtöltő csaptelep : 29.500 Ft/db nettó ár
Az ingatlan előnyei : nagyon jó lokáció, kis lakóközösség, modern kivitelezés, a korszerű technológiák alkalmazása miatt kiváló energetikai besorolás, alacsony fenntartási költség, stb...
Ha felkeltettem az érdeklődését, kérem hívjon bizalommal, akár hétvégén is, adok tájékoztatást, és amennyiben érdeks lehet a helyszínen bemutatom az ingatlant.
Köszönöm, hogy elolvasta !!!
Az ingatlan a legmodernebb építőanyagokkal, szerkezeti elemekkel lesz megépítve.
Minden lakás terve átgondolt, élhető tereket tartalmaz, jó kiosztású, modern elrendezésű.
Várható átadás : ha minden jól megy 2026 év vége, de max 2027 tavasza.
A társasház felépítése :
Földszinten : 1 db lakás ( 74,42 m2 ) + teraszkapcsolattal ( 9,77 m2 ) , 5 db gépkocsitároló és 5 db tároló
Emelet : 2 db lakás erkéllyel ( egyik lakás :74,42 m2 + 9,77 m2 erkély , a másik lakás : 62,87 m2 + 4,1 m2 erkély )
Tetőtér : 2 db lakás ( egyik lakás : 57,2 m2 , a másik lakás: 52,18 m2 )
Műszaki jellemzői :
- Leier 30 NF tégla főfalak
- Leier 10 Nf tégla válaszfalak
- homlokzati, lábazati szigetelés : 15 cm polisztirol
- nyeregtetős tetőszerkezet, betoncserép héjazással
- nyílászárók : műanyag , 3 rtg - ű üvegezés a 6 légkamrás profilban ( prémimum német minőség, szinezett kivitelben )
- fűtés : levegő - víz hőszivattyú alkalmazással lesz megvalósítva, padló hőleadókkal , vizes helyiségekben törölköző szárítóval
- árnyékolás : elektromos vezérlésű aluminium redőny
- erkély : edzett üveg betétekkel
- kaputelefonos és kódzárós beléptető rendszer
- udvar : térkövezés, füvesítés, parkosítás, kandellábelek az udvaron kivitelezésre kerülnek
Műszaki tartalom:
- beltéri ajtók : borovi dekorfóliás, 5 féle választható szinben
- hidegburkolat : 8.200 Ft/m2 bruttó ár
- melegburkolat : 8.500 FT/m2 bruttó ár
- zuhanykabin : 89.280 Ft/db nettó ár
- mosdó : 25.500 Ft/db nettó ár
- fürdőkád : 101.500 Ft/db nettó ár
- beépített wc : 58.600 Ft/db nettó ár
- zuhany csaptelep : 26.280 Ft/db nettó ár
- mosdó csaptelep : 25.700 Ft/db nettó ár
- kádtöltő csaptelep : 29.500 Ft/db nettó ár
Az ingatlan előnyei : nagyon jó lokáció, kis lakóközösség, modern kivitelezés, a korszerű technológiák alkalmazása miatt kiváló energetikai besorolás, alacsony fenntartási költség, stb...
Ha felkeltettem az érdeklődését, kérem hívjon bizalommal, akár hétvégén is, adok tájékoztatást, és amennyiben érdeks lehet a helyszínen bemutatom az ingatlant.
Köszönöm, hogy elolvasta !!!