Elérhető Otthon Start hitellel
Eladó újépítésű sorház,
P4799-1-00-NA-001
Balatonföldvár
95 000 000 Ft
251 000 €
- 85,7m²
- 4 szoba
Völgyhíd Lakópark
ÚJ ÉPÍTÉSŰ SORHÁZI LAKÁSOK BALATONFÖLDVÁRON a Kőröshegyi Völgyhíd alatti dinamikusan fejlődő lakóparkban
Balatonföldvár egyik legígéretesebb, újonnan kialakuló lakókörnyezetében épülő 4 lakásos sorházi lakásokat talált. Kivételes lokáció, modern építészet kialakuló új lakópark.
A projekt ideális választás saját otthonnak, nyaralónak, értékálló befektetésnek.
A PROJEKT FŐBB JELLEMZŐI:
-4 lakásos, kis volumenű sorház
-modern, letisztult megjelenés
-privát terasz és kertkapcsolat
-családbarát, nyugodt környezet
-könnyű megközelíthetőség (M7, Balaton-part néhány perc)
A lokáció presztízsét az ikonikus völgyhíd közelsége és a Balaton-parti infrastruktúra biztosítja.
FINANSZÍROZÁSI LEHETŐSÉG
A lakások akár Otthon Start Program hitellel is megvásárolhatók, így ideális lehetőség első lakásvásárlóknak vagy tudatos befektetőknek is.
MIÉRT JÓ DÖNTÉS?
-Folyamatosan fejlődő környezet
-Értéknövekedési potenciál
-Kiváló kiadhatóság szezonálisan és hosszú távon is
#Balatonföldvár #BalatonÉletérzés #PanorámaOtthon #VölgyhídLátvány #BalatoniOtthon #ÚjÉpítésű
#ModernOtthon #Kertkapcsolat #TeraszÉlet #BalatonPart #OtthonAholJóLenni #ReggeliKávéATeraszon #NapfényesOtthon #BalatoniMindennapok #NyugalomÉsStílus
#LassabbRitmus #Értékálló #IngatlanBefektetés #LimitáltProjekt #Értéknövekedés #BiztosDöntés
#OtthonStartProgram #BalatoniIngatlan #PrémiumLokáció
Balatonföldvár egyik legígéretesebb, újonnan kialakuló lakókörnyezetében épülő 4 lakásos sorházi lakásokat talált. Kivételes lokáció, modern építészet kialakuló új lakópark.
A projekt ideális választás saját otthonnak, nyaralónak, értékálló befektetésnek.
A PROJEKT FŐBB JELLEMZŐI:
-4 lakásos, kis volumenű sorház
-modern, letisztult megjelenés
-privát terasz és kertkapcsolat
-családbarát, nyugodt környezet
-könnyű megközelíthetőség (M7, Balaton-part néhány perc)
A lokáció presztízsét az ikonikus völgyhíd közelsége és a Balaton-parti infrastruktúra biztosítja.
FINANSZÍROZÁSI LEHETŐSÉG
A lakások akár Otthon Start Program hitellel is megvásárolhatók, így ideális lehetőség első lakásvásárlóknak vagy tudatos befektetőknek is.
MIÉRT JÓ DÖNTÉS?
-Folyamatosan fejlődő környezet
-Értéknövekedési potenciál
-Kiváló kiadhatóság szezonálisan és hosszú távon is
#Balatonföldvár #BalatonÉletérzés #PanorámaOtthon #VölgyhídLátvány #BalatoniOtthon #ÚjÉpítésű
#ModernOtthon #Kertkapcsolat #TeraszÉlet #BalatonPart #OtthonAholJóLenni #ReggeliKávéATeraszon #NapfényesOtthon #BalatoniMindennapok #NyugalomÉsStílus
#LassabbRitmus #Értékálló #IngatlanBefektetés #LimitáltProjekt #Értéknövekedés #BiztosDöntés
#OtthonStartProgram #BalatoniIngatlan #PrémiumLokáció
Regisztrációs szám
P4799-1-00-NA-001
Az ingatlan adatai
Értékesités
eladó
Jogi státusz
új
Jelleg
ház
Építési mód
tégla
Méret
85,7 m²
Bruttó méret
103,6 m²
Telek méret
260 m²
Terasz / erkély mérete
17,9 m²
Kert méret
211 m²
Fűtés
hőszivattyú (levegő-víz)
Belmagasság
265 cm
Lakáson belüli szintszám
1
Tájolás
Észak
Állapot
Kiváló
Homlokzat állapota
Kiváló
Környék
csendes, zöld
Építés éve
2026
Fürdőszobák száma
2
Társaház kert
igen
Víz
Van
Villany
Van
Csatorna
Van
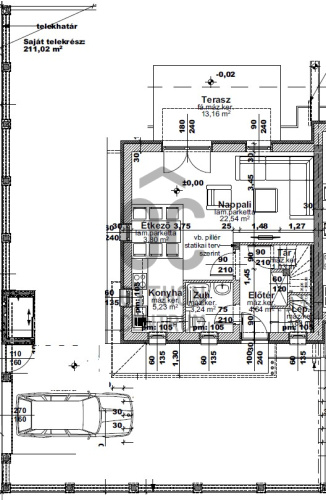
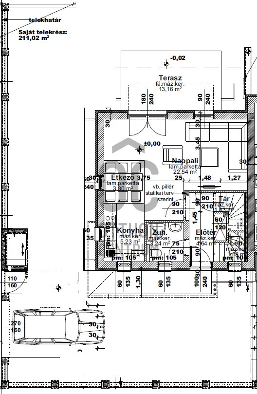
Helyiségek
előszoba
4.64 m²
nappali
22.54 m²
ebédlő
3.8 m²
konyha
5.23 m²
zuhanyzó
3.24 m²
tároló
1.03 m²
lépcsőház
1.89 m²
terasz
13.16 m²
közlekedő
2.83 m²
fürdőszoba-wc
5.22 m²
szoba
12.23 m²
szoba
10.05 m²
szoba
9.58 m²
lépcsőház
3.43 m²
erkély
4.8 m²
Dienes László
Hitelszakértő