575,000,000 Ft
1,520,000 €
- 231m²
- 6 Rooms
**KIVÉTELES LEHETŐSÉG**Eladó LUXUS családi ház.
A gondosan megtervezett és kivitelezett, egyedi lakóház 2008-ban, minőségi anyagokból, téglából épült.
Ez a csodálatos, gyönyörű növényekkel parkosított, 706 m2-es telken elhelyezkedő, nagyon jó fekvésű ingatlan Balatonboglár egyik nyugodt, átmenő forgalomtól mentes utcájában található, mindössze néhány lépésre a vízparttól.
Műszaki felszereltség:
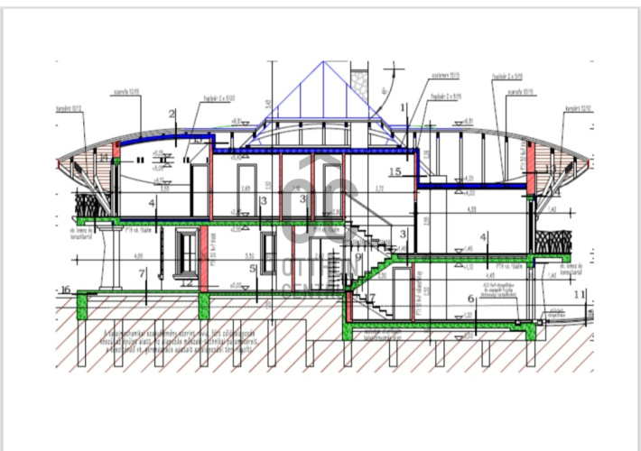
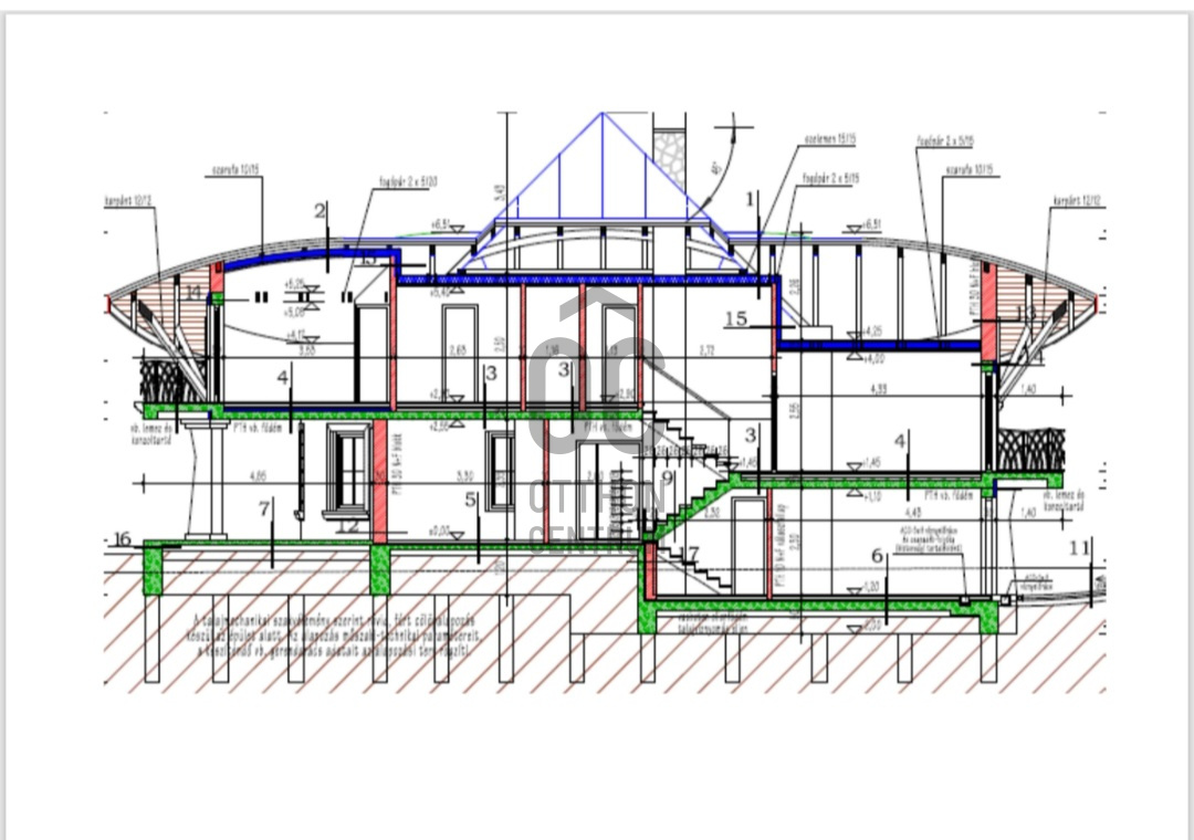
- A ház melegéről, melegvízről Alpha Innotec talajszondás hőszivattyú, 3 db Roth napkollektor, valamint padló és mennyezetihűtés, fan-coil, cserépkandalló gondoskodik.- A hűtés, talajszondás mennyezethűtés, fan coil, 5 kW-s Daikin klíma nyújtja. - Warema hőszigetelt borítás és a kényelmet alumínium motoros redőnyök szolgálják.- A szünetmentes tápegység az épületen kívüli aggregátor csatlakozási helye kiépítve.- 21 m3-es fedett, fűtött medence, vízforgatóval, ellenáramoltatóval ellátott.
Parkolási lehetőség:
- Fedett gépkocsibeálló, tetején 2,65 kW-s napelem rendszer.- Telken belüli térköves területen 5 gépkocsi részére. - Elektromos fűtésű gépkocsilehajtó.
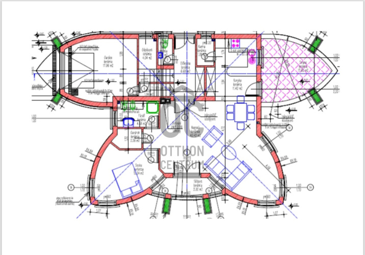
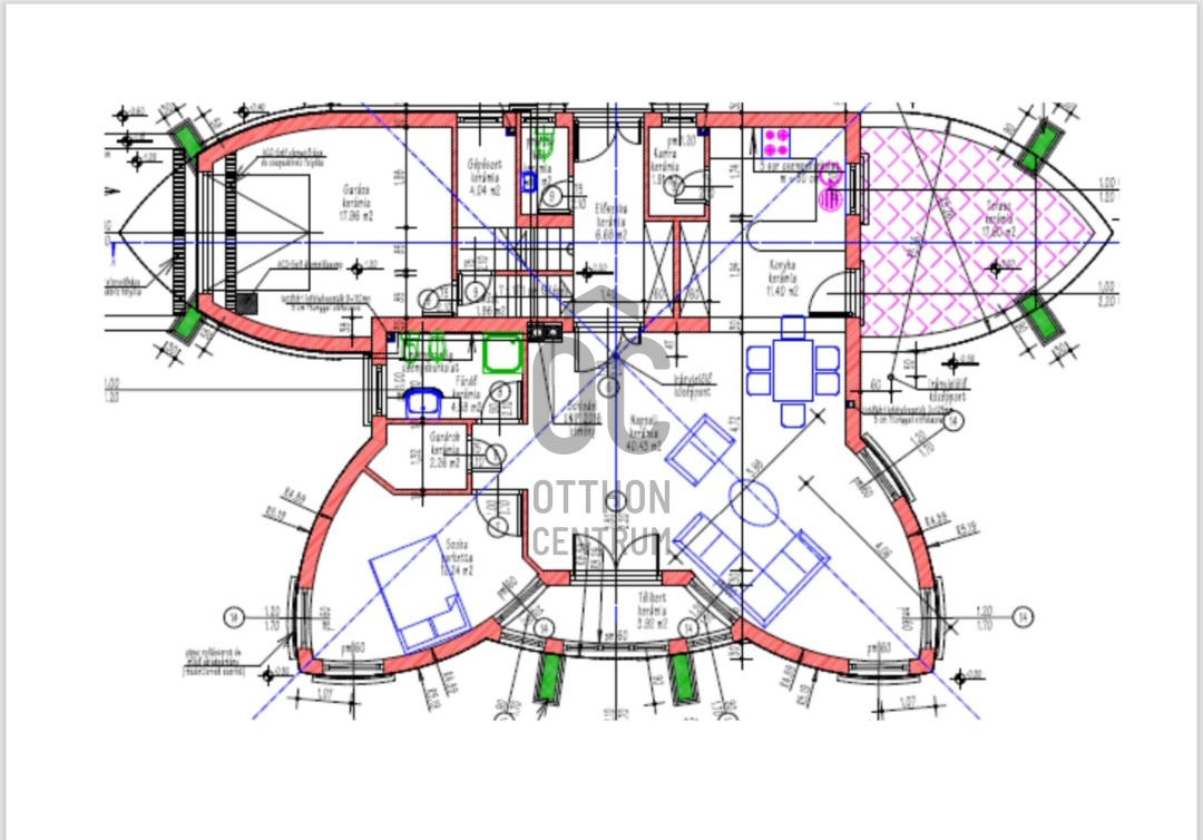
Az ingatlan felosztása: földszinti részben: vendég wc, amerikai konyhás világos nappali, előszoba, kamra, hálószoba hozzá tartozó fürdőszobával- wc-vel, télikert, garázs és egy fedett terasz tartozik. Felső szinten: lépcsőház, három hálószoba saját fürdőszobával -wc-vel, minden szoba erkély kapcsolattal, dolgozószoba, társalgó, szauna, háztartási helyiség található.
Az ingatlan akár két generációnak is alkalmas. A konyha AEG és Liebherr háztartási gépekkel berendezett.Az új tulajdonos kényelmét egy elektromos kapurendszer szolgálja, valamint biztonságát, kamera és riasztórendszer biztosítja.Az ingatlan büszkélkedhet egy infra és finn szaunával is, melyek tökéletes kikapcsolódást ígérnek.
A ház kertje a pihenés és szabadidő ideális helyszíne, köszönhetően a gondozott zöldterületeknek és a privát medencének, ahonnan a kertre nyíló kilátás különleges atmoszférát teremt.
Az otthon napfényes terei a minőségi tölgyfa ablakokon és ajtókon keresztül kapnak természetes fényt, melyek nem csupán eleganciát kölcsönöznek a belső térnek, hanem kiemelkedő hőszigetelést is biztosítanak a 12 cm vastagságú szigetelésükkel. A napenergiát kihasználva a napelem rendszer, napkollektorok csökkentik a rezsiköltségeket, míg a fúrt kút a kert zöldjeinek állandó locsolását teszi lehetővé.
Az ingatlan környéke nagyon népszerű minden korosztály körében, hiszen a parkosított környezethez a belváros, a Balaton közelsége mellett páratlan infrastuktúra is társul, gyönyörű strandokkal, páratlan panorámával és számtalan szabadidős lehetőséggel, mint a hajózás, Gömbkilátó, vidámpark, cirkusz, kalandpark, kerékpározás vagy kirándulás a környező hegyekben. Élvezze a nyugodt, de izgalmas életet, amit Balatonboglár kínál, ahol a természet szépsége és a kulturális élmények találkoznak.
Az ingatlan néhány százméteres körzetében megtalálható minden, amire a hétköznapi élethez szükségünk lehet, élelmiszerboltok, drogéria, pékség, bank, posta, vasútállomás üzletek sokasága várja a vásárlókat.
Balatonboglár varázslatos település a Balaton déli partján, gazdag kulturális és természeti kincsekkel. Itt minden adott a pihentető vagy éppen aktív kikapcsolódáshoz: strandok, színes programok, kiváló gasztronómia és borászatok várják az ide költöző embereket.
A ház kertje a pihenés és szabadidő ideális helyszíne, köszönhetően a gondozott zöldterületeknek és a privát medencének, ahonnan a kertre nyíló kilátás különleges atmoszférát teremt.
Rendezett, tehermentes ingatlan, rövid időn belül birtokba vehető. Amennyiben kínálatom felkeltette érdeklődését, kérem keressen bizalommal elérhetőségeim egyikén a hét bármely napján!NE MARADJON LE RÓLA!
A gondosan megtervezett és kivitelezett, egyedi lakóház 2008-ban, minőségi anyagokból, téglából épült.
Ez a csodálatos, gyönyörű növényekkel parkosított, 706 m2-es telken elhelyezkedő, nagyon jó fekvésű ingatlan Balatonboglár egyik nyugodt, átmenő forgalomtól mentes utcájában található, mindössze néhány lépésre a vízparttól.
Műszaki felszereltség:
- A ház melegéről, melegvízről Alpha Innotec talajszondás hőszivattyú, 3 db Roth napkollektor, valamint padló és mennyezetihűtés, fan-coil, cserépkandalló gondoskodik.- A hűtés, talajszondás mennyezethűtés, fan coil, 5 kW-s Daikin klíma nyújtja. - Warema hőszigetelt borítás és a kényelmet alumínium motoros redőnyök szolgálják.- A szünetmentes tápegység az épületen kívüli aggregátor csatlakozási helye kiépítve.- 21 m3-es fedett, fűtött medence, vízforgatóval, ellenáramoltatóval ellátott.
Parkolási lehetőség:
- Fedett gépkocsibeálló, tetején 2,65 kW-s napelem rendszer.- Telken belüli térköves területen 5 gépkocsi részére. - Elektromos fűtésű gépkocsilehajtó.
Az ingatlan felosztása: földszinti részben: vendég wc, amerikai konyhás világos nappali, előszoba, kamra, hálószoba hozzá tartozó fürdőszobával- wc-vel, télikert, garázs és egy fedett terasz tartozik. Felső szinten: lépcsőház, három hálószoba saját fürdőszobával -wc-vel, minden szoba erkély kapcsolattal, dolgozószoba, társalgó, szauna, háztartási helyiség található.
Az ingatlan akár két generációnak is alkalmas. A konyha AEG és Liebherr háztartási gépekkel berendezett.Az új tulajdonos kényelmét egy elektromos kapurendszer szolgálja, valamint biztonságát, kamera és riasztórendszer biztosítja.Az ingatlan büszkélkedhet egy infra és finn szaunával is, melyek tökéletes kikapcsolódást ígérnek.
A ház kertje a pihenés és szabadidő ideális helyszíne, köszönhetően a gondozott zöldterületeknek és a privát medencének, ahonnan a kertre nyíló kilátás különleges atmoszférát teremt.
Az otthon napfényes terei a minőségi tölgyfa ablakokon és ajtókon keresztül kapnak természetes fényt, melyek nem csupán eleganciát kölcsönöznek a belső térnek, hanem kiemelkedő hőszigetelést is biztosítanak a 12 cm vastagságú szigetelésükkel. A napenergiát kihasználva a napelem rendszer, napkollektorok csökkentik a rezsiköltségeket, míg a fúrt kút a kert zöldjeinek állandó locsolását teszi lehetővé.
Az ingatlan környéke nagyon népszerű minden korosztály körében, hiszen a parkosított környezethez a belváros, a Balaton közelsége mellett páratlan infrastuktúra is társul, gyönyörű strandokkal, páratlan panorámával és számtalan szabadidős lehetőséggel, mint a hajózás, Gömbkilátó, vidámpark, cirkusz, kalandpark, kerékpározás vagy kirándulás a környező hegyekben. Élvezze a nyugodt, de izgalmas életet, amit Balatonboglár kínál, ahol a természet szépsége és a kulturális élmények találkoznak.
Az ingatlan néhány százméteres körzetében megtalálható minden, amire a hétköznapi élethez szükségünk lehet, élelmiszerboltok, drogéria, pékség, bank, posta, vasútállomás üzletek sokasága várja a vásárlókat.
Balatonboglár varázslatos település a Balaton déli partján, gazdag kulturális és természeti kincsekkel. Itt minden adott a pihentető vagy éppen aktív kikapcsolódáshoz: strandok, színes programok, kiváló gasztronómia és borászatok várják az ide költöző embereket.
A ház kertje a pihenés és szabadidő ideális helyszíne, köszönhetően a gondozott zöldterületeknek és a privát medencének, ahonnan a kertre nyíló kilátás különleges atmoszférát teremt.
Rendezett, tehermentes ingatlan, rövid időn belül birtokba vehető. Amennyiben kínálatom felkeltette érdeklődését, kérem keressen bizalommal elérhetőségeim egyikén a hét bármely napján!NE MARADJON LE RÓLA!
Registration Number
DHZ099900
Property Details
Sales
for sale
Legal Status
used
Character
house
Construction Method
brick
Net Size
231 m²
Gross Size
231 m²
Plot Size
706 m²
Size of Terrace / Balcony
27.9 m²
Heating
other
Ceiling Height
270 cm
Number of Levels Within the Property
2
Orientation
North
Condition
Excellent
Condition of Facade
Excellent
Year of Construction
2008
Number of Bathrooms
5
Position
courtyard-facing
Water
Available
Electricity
Available
Sewer
Available
Connected to Garden
yes
Rooms
entryway
6.7 m²
toilet
1.6 m²
living room
40.4 m²
kitchen
11.4 m²
pantry
1.9 m²
room
14.5 m²
bathroom-toilet
4.6 m²
veranda
17.6 m²
staircase
1.6 m²
room
15.4 m²
bathroom-toilet
3.9 m²
room
9.4 m²
bathroom-toilet
3.8 m²
room
9.4 m²
bathroom-toilet
3.3 m²
wardrobe
3.1 m²
room
8.4 m²
bathroom-toilet
4.8 m²
balcony
2.7 m²
balcony
2.7 m²
balcony
4.9 m²
other
3.5 m²
Dienes László
Credit Expert