139,000,000 Ft
368,000 €
- 69m²
- 3 Rooms
- ground floor
Prémium földszinti otthon kertkapcsolattal a Balaton közelében – Balatonföldvár, Mistrál társasház
Balatonföldvár egyik legkedveltebb, modern társasházában, a Mistrálban kínálunk megvételre egy kivételes adottságú, földszinti lakást, amely ideális választás állandó otthonnak, nyaralónak vagy befektetésnek is.
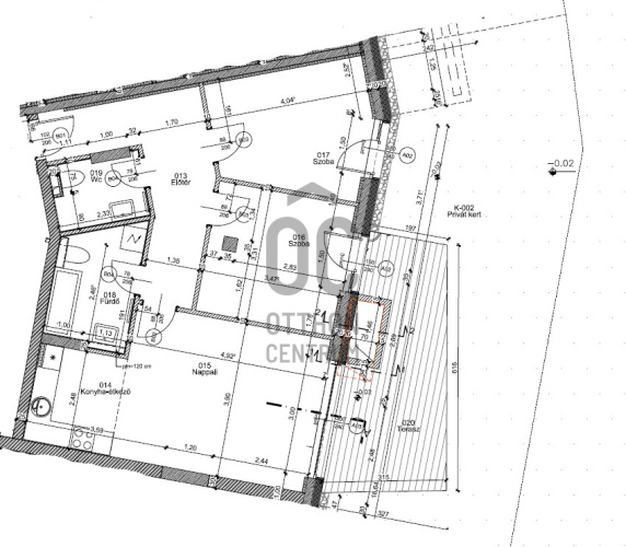
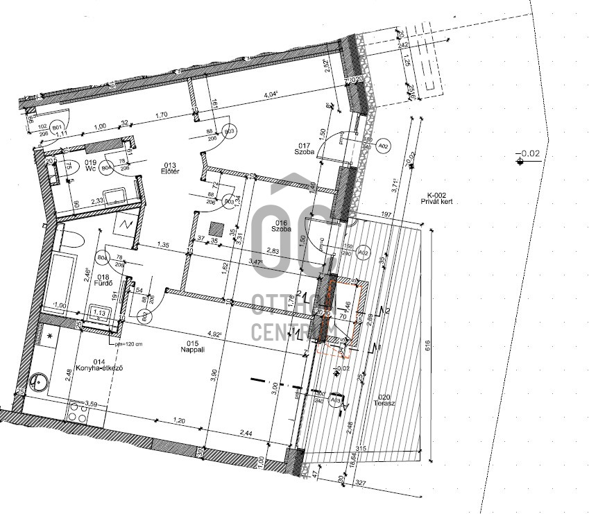
A lakás praktikus és élhető elrendezéssel rendelkezik: tágas, világos nappali + 2 külön nyíló hálószoba, 2 fürdőszoba, amely maximális kényelmet biztosít családok és vendégek számára egyaránt. A nappaliból közvetlen kijárat nyílik az erkélyre és a saját kertkapcsolatra, ahol a reggeli kávé vagy egy esti borozás valódi balatoni életérzéssé válik. A saját kertkapcsolat 42 nm, zöld növényzettel leválasztva.
Főbb jellemzők:
• Földszinti elhelyezkedés
• Nappali + 2 hálószoba
• 2 fürdőszoba
• Terasz + közvetlen kertkapcsolat
• Saját gépkocsi-beálló
• Zárt, önálló tároló
• Fűtött medence a társasház udvarán
• Rendezett, zárt lakóközösség
A fűtött udvari medence egész szezonban gondoskodik a kikapcsolódásról, míg a társasház igényes, karbantartott környezete valódi prémium életminőséget kínál. A Balaton, a sétányok, éttermek és kikötő mind rövid sétatávolságon belül elérhetők.
Ritka lehetőség Balatonföldváron, ahol a kényelem, az elhelyezkedés és az értékállóság tökéletes egyensúlyban van.
#azonnalköltözhető #modernotthon #családiotthon #kertesingatlan #gépkocsi beálló #balatonföldvár #balatondélipart #balatonközel #balatonhome #balatonlife #balatonimálom #otthontkeresek #újkezdet #állandólakhatás #nyaralóésotthon #értékálló
A lakás praktikus és élhető elrendezéssel rendelkezik: tágas, világos nappali + 2 külön nyíló hálószoba, 2 fürdőszoba, amely maximális kényelmet biztosít családok és vendégek számára egyaránt. A nappaliból közvetlen kijárat nyílik az erkélyre és a saját kertkapcsolatra, ahol a reggeli kávé vagy egy esti borozás valódi balatoni életérzéssé válik. A saját kertkapcsolat 42 nm, zöld növényzettel leválasztva.
Főbb jellemzők:
• Földszinti elhelyezkedés
• Nappali + 2 hálószoba
• 2 fürdőszoba
• Terasz + közvetlen kertkapcsolat
• Saját gépkocsi-beálló
• Zárt, önálló tároló
• Fűtött medence a társasház udvarán
• Rendezett, zárt lakóközösség
A fűtött udvari medence egész szezonban gondoskodik a kikapcsolódásról, míg a társasház igényes, karbantartott környezete valódi prémium életminőséget kínál. A Balaton, a sétányok, éttermek és kikötő mind rövid sétatávolságon belül elérhetők.
Ritka lehetőség Balatonföldváron, ahol a kényelem, az elhelyezkedés és az értékállóság tökéletes egyensúlyban van.
#azonnalköltözhető #modernotthon #családiotthon #kertesingatlan #gépkocsi beálló #balatonföldvár #balatondélipart #balatonközel #balatonhome #balatonlife #balatonimálom #otthontkeresek #újkezdet #állandólakhatás #nyaralóésotthon #értékálló
Registration Number
H513496
Property Details
Sales
for sale
Legal Status
used
Character
apartment
Construction Method
brick
Net Size
69 m²
Gross Size
84 m²
Size of Terrace / Balcony
15 m²
Heating
heat pump
Ceiling Height
265 cm
Orientation
South
Staircase Type
enclosed staircase
Condition
Excellent
Condition of Facade
Excellent
Condition of Staircase
Excellent
Neighborhood
quiet, good transport, green, central
Year of Construction
2023
Number of Bathrooms
2
Position
garden-facing
Water
Available
Electricity
Available
Sewer
Available
Elevator
available
Connected to Garden
yes
Storage
Independent
Distance to Waterfront
200 meters
Rooms
entryway
11.6 m²
room
11.71 m²
room
11.38 m²
open-plan living and dining room
19.06 m²
kitchen
5.53 m²
bathroom-toilet
3.61 m²
bathroom-toilet
6.31 m²
terrace
14.97 m²
Dienes László
Credit Expert