580 000 000 Ft
1 508 000 €
- 168m²
- 5 szoba
- 1. emelet
XII. ORBÁNHEGY, CSENDES, ÚJÉPÍTÉSŰ 3, 4, és 5 SZOBÁS PRÉMIUMKATEGÓRIÁS LAKÁSOK, LAKÁSON BELÜL SAJÁT LIFTTEL
XII. ORBÁNHEGY, CSENDES, ÚJÉPÍTÉSŰ 5 SZOBÁS, 53 m2 TERASSZAL
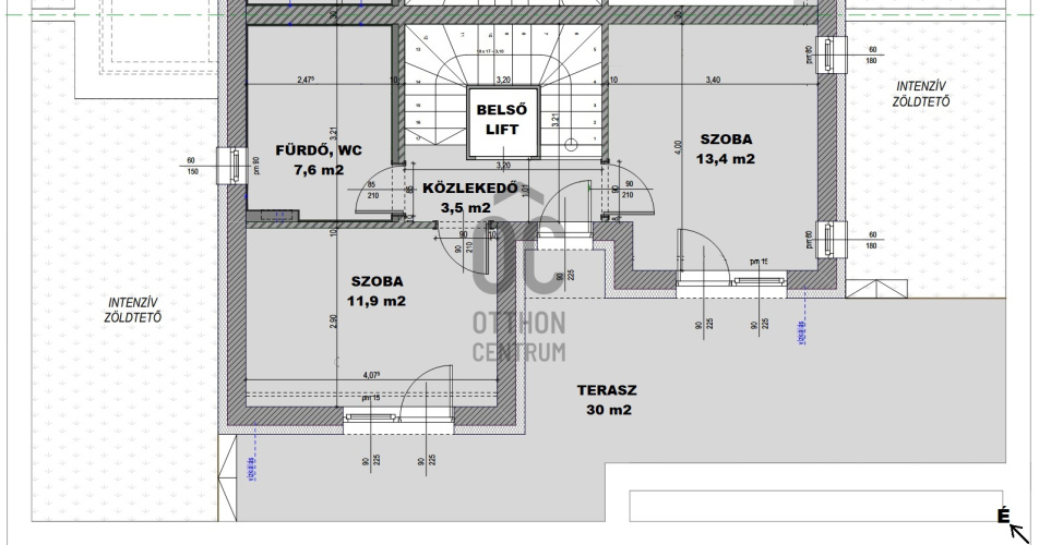
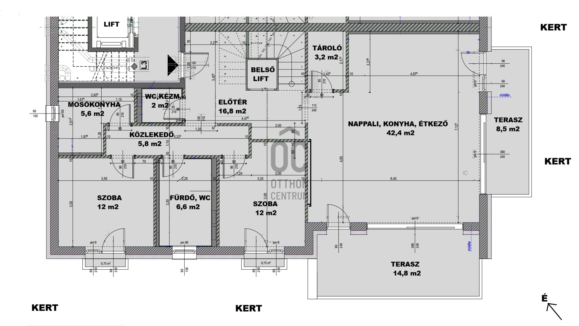
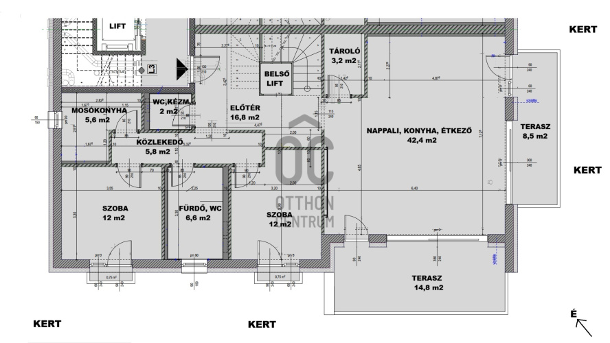
XII. Kerület ORBÁNHEGY körzetében, CSENDES (átmenőforgalomtól mentes), ZÖLDÖVEZETI ŐSFÁS MELLÉKUTCÁBAN, SÍK, téglalap alakú, 1127 m2-es TELKEN épülő, 4 LAKÁSOS, LIFTES TÁRSASHÁZBAN kínálunk eladásra, egy FÖLDSZINTI, DNY-i tájolású, KERTRE NÉZŐ, 168 m2-es (53 m2 terasz 1/3 méretének a beszámítása mellett. A terasz, és a lakáson belüli falak alatti területek nélküli méret 150 m2) 5 SZOBÁS, 2 FÜRDŐSZOBÁS, BELSŐ KÉT SZINTES, LAKÁSON BELÜL SAJÁT LIFTTEL, 2 db TEREMGARÁZS HELLYEL (+17 Mft/db), és egy db 14 m2 tárolóval (+18 Mft) rendelkező, PRÉMIUMKATEGÓRIÁS újépítésű lakást.
Az ingatlan autóval és tömegközlekedéssel is jól megközelíthető: buszmegálló 5 perc sétatávolságra, ill. a MOM PARK és a HEGYVIDÉK BEVÁSÁRLÓKÖZPONT is PERCEK ALATT ELÉRHETŐ.
Elérhető lakások
•L1 lakás: 105,63 m² + 12 m² terasz – 378 MFt
•L2 lakás: 113 m² + 12 m² terasz – 398 MFt
•L3 lakás: 150 m² + 53 m² terasz/erkély – 580 MFt
•L4 lakás: 150 m² + 46 m² terasz/erkély – 570 MFt
MŰSZAKI TARTALOM – PRÉMIUM SZINTŰ MEGOLDÁSOK
Az épület a 2022. évi AA+ energetikai követelményeknek megfelelően, a legmodernebb gépészeti technológiákkal és KNX intelligens épületautomatika rendszerrel kerül kivitelezésre.
Lakásonként egyedi gépészet:
•Mennyezeti hűtés–fűtés és padlófűtés, harmatpont-érzékelővel
•Panasonic víz–levegő hőszivattyús rendszer a fűtés és a használati melegvíz biztosítására
•KNX intelligens otthon rendszer, melynek segítségével akár mobiltelefonról, távolról is vezérelhető a fűtés, hűtés, világítás stb.
•Zehnder hővisszanyerős szellőztetőrendszer, folyamatos friss, szűrt levegővel
További műszaki és kényelmi elemek:
•Háromrétegű hőszigetelt üvegezésű fa nyílászárók
•Távirányítással működtethető alumínium redőnyrendszer
•Falsíkban záródó belső ajtók
•Minőségi hideg- és melegburkolatok
•Villeroy & Boch szaniterek és fürdőszobabútorok
•Hansgrohe csaptelepek
•Hüppe zuhanykabinok
•Okosotthon-kompatibilis kapcsolók és konnektorok
•Fűtött lehajtó a mélygarázsba
•Automata garázs- és kertkapu
•Riasztórendszer-, TV- és internet-előkészítés
•Videó kaputelefon
•Épített kert automata öntözőrendszerrel
•Kerti világítás
•Az épületben a teremgarázs szintről induló felvonó kerül beépítésre
BELSŐÉPÍTÉSZET ÉS EGYEDI IGÉNYEK:
A lakások a Geppetto Belsőépítész Iroda által készített részletes belsőépítészeti kiviteli tervek alapján valósulnak meg.
A kivitelezés során – a műszaki lehetőségek figyelembevételével – lehetőség van a lakások vevői igény szerinti egyedi módosítására.
A lakások átadásának időpontja: 2027. II. félév
FIZETÉSI ÜTEMEZÉS:
•Szerződéskötéskor: 10% foglaló + 10% vételárelőleg
•A fennmaradó vételár megfizetése a készültségi szintnek megfelelően, további 6 részletben történik
TISZTELT ÉRDEKLŐDŐ!
TÖBB MINT 20 ÉVE FOGLALKOZOM INGATLANOK ÉRTÉKESÍTÉSÉVEL MAGYARORSZÁG PIACVEZETŐ INGATLANKÖZVETÍTŐ HÁLÓZATÁNÁL, AZ OTTHON CENTRUMNÁL. AMENNYIBEN SZÁNDÉKÁBAN ÁLL INGATLANT ELADNI - A LEGRÖVIDEBB IDŐN BELÜL, GARANTÁLT JOGI, ÉS BANKI HÁTTÉRREL - KERESSEN BIZALOMMAL, HOGY EGY HELYSZÍNI FELMÉRÉST KÖVETŐ INGYENES ÉRTÉKMEGÁLLAPÍTÁS UTÁN, EGYÜTT TUDJUNK MŰKÖDNI AZ ÖN INGATLANÁNAK AZ ELADÁSÁBAN IS!
XII. Kerület ORBÁNHEGY körzetében, CSENDES (átmenőforgalomtól mentes), ZÖLDÖVEZETI ŐSFÁS MELLÉKUTCÁBAN, SÍK, téglalap alakú, 1127 m2-es TELKEN épülő, 4 LAKÁSOS, LIFTES TÁRSASHÁZBAN kínálunk eladásra, egy FÖLDSZINTI, DNY-i tájolású, KERTRE NÉZŐ, 168 m2-es (53 m2 terasz 1/3 méretének a beszámítása mellett. A terasz, és a lakáson belüli falak alatti területek nélküli méret 150 m2) 5 SZOBÁS, 2 FÜRDŐSZOBÁS, BELSŐ KÉT SZINTES, LAKÁSON BELÜL SAJÁT LIFTTEL, 2 db TEREMGARÁZS HELLYEL (+17 Mft/db), és egy db 14 m2 tárolóval (+18 Mft) rendelkező, PRÉMIUMKATEGÓRIÁS újépítésű lakást.
Az ingatlan autóval és tömegközlekedéssel is jól megközelíthető: buszmegálló 5 perc sétatávolságra, ill. a MOM PARK és a HEGYVIDÉK BEVÁSÁRLÓKÖZPONT is PERCEK ALATT ELÉRHETŐ.
Elérhető lakások
•L1 lakás: 105,63 m² + 12 m² terasz – 378 MFt
•L2 lakás: 113 m² + 12 m² terasz – 398 MFt
•L3 lakás: 150 m² + 53 m² terasz/erkély – 580 MFt
•L4 lakás: 150 m² + 46 m² terasz/erkély – 570 MFt
MŰSZAKI TARTALOM – PRÉMIUM SZINTŰ MEGOLDÁSOK
Az épület a 2022. évi AA+ energetikai követelményeknek megfelelően, a legmodernebb gépészeti technológiákkal és KNX intelligens épületautomatika rendszerrel kerül kivitelezésre.
Lakásonként egyedi gépészet:
•Mennyezeti hűtés–fűtés és padlófűtés, harmatpont-érzékelővel
•Panasonic víz–levegő hőszivattyús rendszer a fűtés és a használati melegvíz biztosítására
•KNX intelligens otthon rendszer, melynek segítségével akár mobiltelefonról, távolról is vezérelhető a fűtés, hűtés, világítás stb.
•Zehnder hővisszanyerős szellőztetőrendszer, folyamatos friss, szűrt levegővel
További műszaki és kényelmi elemek:
•Háromrétegű hőszigetelt üvegezésű fa nyílászárók
•Távirányítással működtethető alumínium redőnyrendszer
•Falsíkban záródó belső ajtók
•Minőségi hideg- és melegburkolatok
•Villeroy & Boch szaniterek és fürdőszobabútorok
•Hansgrohe csaptelepek
•Hüppe zuhanykabinok
•Okosotthon-kompatibilis kapcsolók és konnektorok
•Fűtött lehajtó a mélygarázsba
•Automata garázs- és kertkapu
•Riasztórendszer-, TV- és internet-előkészítés
•Videó kaputelefon
•Épített kert automata öntözőrendszerrel
•Kerti világítás
•Az épületben a teremgarázs szintről induló felvonó kerül beépítésre
BELSŐÉPÍTÉSZET ÉS EGYEDI IGÉNYEK:
A lakások a Geppetto Belsőépítész Iroda által készített részletes belsőépítészeti kiviteli tervek alapján valósulnak meg.
A kivitelezés során – a műszaki lehetőségek figyelembevételével – lehetőség van a lakások vevői igény szerinti egyedi módosítására.
A lakások átadásának időpontja: 2027. II. félév
FIZETÉSI ÜTEMEZÉS:
•Szerződéskötéskor: 10% foglaló + 10% vételárelőleg
•A fennmaradó vételár megfizetése a készültségi szintnek megfelelően, további 6 részletben történik
TISZTELT ÉRDEKLŐDŐ!
TÖBB MINT 20 ÉVE FOGLALKOZOM INGATLANOK ÉRTÉKESÍTÉSÉVEL MAGYARORSZÁG PIACVEZETŐ INGATLANKÖZVETÍTŐ HÁLÓZATÁNÁL, AZ OTTHON CENTRUMNÁL. AMENNYIBEN SZÁNDÉKÁBAN ÁLL INGATLANT ELADNI - A LEGRÖVIDEBB IDŐN BELÜL, GARANTÁLT JOGI, ÉS BANKI HÁTTÉRREL - KERESSEN BIZALOMMAL, HOGY EGY HELYSZÍNI FELMÉRÉST KÖVETŐ INGYENES ÉRTÉKMEGÁLLAPÍTÁS UTÁN, EGYÜTT TUDJUNK MŰKÖDNI AZ ÖN INGATLANÁNAK AZ ELADÁSÁBAN IS!
Regisztrációs szám
P4796-1-01-01-003
Az ingatlan adatai
Értékesités
eladó
Jogi státusz
új
Jelleg
lakás
Építési mód
tégla
Méret
168 m²
Bruttó méret
203 m²
Terasz / erkély mérete
53 m²
Kert méret
800 m²
Fűtés
megújuló
Belmagasság
270 cm
Tájolás
Dél-nyugat
Lépcsőház típusa
zárt lépcsőház
Állapot
Kiváló
Homlokzat állapota
Kiváló
Lépcsőház állapota
Kiváló
Környék
csendes, jó közlekedés, zöld, központi
Építés éve
2026
Fürdőszobák száma
2
Fekvés
kertre néző
Társaház kert
igen
Garázs
Külön vásárolható
Víz
Van
Villany
Van
Csatorna
Van
Lift
van
Tároló
Önálló
Helyiségek
nappali-konyha
42.4 m²
szoba
12 m²
szoba
12 m²
fürdőszoba-wc
6.6 m²
mosókonyha
5.6 m²
tároló
3.2 m²
wc-kézmosó
2 m²
terasz
23.3 m²
szoba
13.4 m²
szoba
11.9 m²
fürdőszoba-wc
7.6 m²
terasz
30 m²
Ruczek János
Hitelszakértő