Elérhető Otthon Start hitellel
Eladó panel lakás, OHH179908
Miskolc, Diósgyőr

21 700 000 Ft

57 000 €

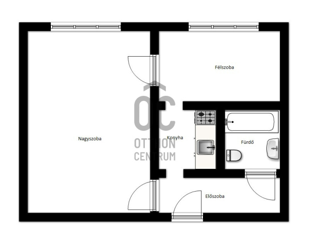
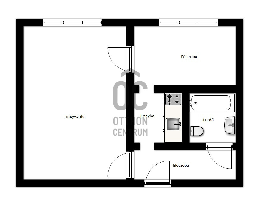
  • 35m²
  • 2 szoba
  • 10. emelet
Kiemelt megbízás


Napfényes kezdetek Diósgyőr szívében – ahol az első közös otthon története indulhat!

Miskolc egyik legkedveltebb, folyamatosan fejlődő diósgyőri részén várja új tulajdonosát ez a 35 m²-es, 1,5 szobás lakás, amely tökéletes választás lehet pároknak vagy első közös fészeknek.

A 10. emeleti elhelyezkedés nemcsak nyugalmat, hanem ragyogó panorámát és egész délutánon át tartó napfényt is biztosít.
A nyugati fekvésnek köszönhetően a lakás valódi napfürdő — itt a naplemente a mindennapok része.
A lakás felújítandó, ami nem hátrány, hanem lehetőség: saját ízlésed szerint alakíthatod ki azt az otthont, amely valóban rólatok szól.
A tehermentes ingatlan gyors és gördülékeny adásvételt tesz lehetővé.
Elhelyezkedése kiváló: a villamosmegálló szinte a ház mellett, így a város bármely pontja könnyedén elérhető.
A ház egyik legnagyobb értéke a kimagaslóan jó lakóközösség, amely ritka kincs a mai piacon.
Ha egy világos, jól alakítható lakást keresel frekventált környezetben, amelyből szerethető, személyes otthon születhet — ezt érdemes megnézned.

Kezdd itt a közös történetet

Regisztrációs szám

OHH179908

Az ingatlan adatai

Értékesités
eladó
Jogi státusz
használt
Jelleg
lakás
Építési mód
panel
Méret
35 m²
Fűtés
távfűtés
Állapot
Felújítandó
Építés éve
1980
Lift
van

Helyiségek

szoba
18 m²
szoba
8 m²
konyha
2 m²
előszoba
3 m²
fürdőszoba
2 m²
Varkolyné Viktória
Varkolyné Viktória

Hitelszakértő

Irodánk kínálatából - Miskolc - Szemere utca

eladó lakás

Index image
Elérhető Otthon Start hitellel
14

eladó sorház

Index image
Elérhető Otthon Start hitellel
25

eladó lakás

Index image
Elérhető Otthon Start hitellel
17

for sale family house

Index image
data_sheet.details.realestate.section.main.otthonstart_flag.label
14

eladó panel lakás

Index image
Elérhető Otthon Start hitellel
16