290 000 000 Ft
747 000 €
- 209m²
- 6 szoba
- 2. emelet
Real bourgeois apartment at the foot of Gellért Hill!
We offer for sale a truly authentic bourgeois apartment, located at the foot of Gellért Hill, near the Gellért Hotel.
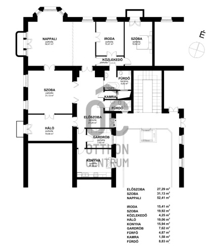
The apartment boasts impressive, spacious areas, currently consisting of 6 rooms plus a hall, but it can easily be converted to add another 1-2 rooms. With a size of 209 square meters and a ceiling height of 3.80 meters, it provides limitless space for its owner. The property has 3 balconies with wonderful views of Gellért Hill and the Citadel, as well as a partial view of the Danube. Thanks to a comprehensive renovation completed 9 years ago, the apartment is in very good condition (as seen in the pictures), with a completely renovated electrical system, plumbing, and heating system, ensuring that the new owner will not face significant investment costs. The parquet flooring and tiled surfaces are also in excellent condition. The old large double doors are in impeccable condition, further enhancing the apartment's bourgeois, period character. For anyone looking for such a property, this rarity is a perfect choice.
And if that’s not enough, the condominium is also in good condition, with the interior spaces and stairwell being continuously maintained. Consider that with the renovation and development of the Gellért Hotel, the properties in the area are expected to appreciate significantly...
In relation to its size, the apartment's maintenance costs are not high.
The common cost is 50,160 HUF per month, electricity ranges from 8,000 to 10,000 HUF monthly, and gas (thanks to the modern condensing boiler) has an annual consumption of around 1,500 m3, averaging 14,000 to 15,000 HUF per month. The property is free of encumbrances, with 1/1 ownership and can be occupied within 2 months.
If you have any questions regarding the property or would like to schedule a viewing, please feel free to call!
We support our buyer clients with free, independent mortgage advice to help them make the most advantageous financing decisions. With our optional additional services – such as legal assistance, energy certificates, or electrical safety inspections – we provide comprehensive professional support at every step of the purchasing process.
The apartment boasts impressive, spacious areas, currently consisting of 6 rooms plus a hall, but it can easily be converted to add another 1-2 rooms. With a size of 209 square meters and a ceiling height of 3.80 meters, it provides limitless space for its owner. The property has 3 balconies with wonderful views of Gellért Hill and the Citadel, as well as a partial view of the Danube. Thanks to a comprehensive renovation completed 9 years ago, the apartment is in very good condition (as seen in the pictures), with a completely renovated electrical system, plumbing, and heating system, ensuring that the new owner will not face significant investment costs. The parquet flooring and tiled surfaces are also in excellent condition. The old large double doors are in impeccable condition, further enhancing the apartment's bourgeois, period character. For anyone looking for such a property, this rarity is a perfect choice.
And if that’s not enough, the condominium is also in good condition, with the interior spaces and stairwell being continuously maintained. Consider that with the renovation and development of the Gellért Hotel, the properties in the area are expected to appreciate significantly...
In relation to its size, the apartment's maintenance costs are not high.
The common cost is 50,160 HUF per month, electricity ranges from 8,000 to 10,000 HUF monthly, and gas (thanks to the modern condensing boiler) has an annual consumption of around 1,500 m3, averaging 14,000 to 15,000 HUF per month. The property is free of encumbrances, with 1/1 ownership and can be occupied within 2 months.
If you have any questions regarding the property or would like to schedule a viewing, please feel free to call!
We support our buyer clients with free, independent mortgage advice to help them make the most advantageous financing decisions. With our optional additional services – such as legal assistance, energy certificates, or electrical safety inspections – we provide comprehensive professional support at every step of the purchasing process.
Regisztrációs szám
H515017
Az ingatlan adatai
Értékesités
eladó
Jogi státusz
használt
Jelleg
lakás
Építési mód
tégla
Méret
209 m²
Bruttó méret
220 m²
Terasz / erkély mérete
10 m²
Fűtés
Gáz cirkó
Belmagasság
380 cm
Lakáson belüli szintszám
1
Tájolás
Észak-nyugat
Lépcsőház típusa
zárt lépcsőház
Állapot
Jó
Homlokzat állapota
Átlagos
Lépcsőház állapota
Átlagos
Pince
Önálló
Építés éve
1905
Fürdőszobák száma
2
Fekvés
utcai
Közös költség
50160
Víz
Van
Gáz
Van
Villany
Van
Csatorna
Van
Lift
van
Tároló
Önálló
Vízpart távolsága
200 méterre
Helyiségek
nappali
52.4 m²
szoba
31 m²
szoba
19 m²
szoba
20 m²
szoba
15.4 m²
szoba
7.6 m²
konyha-étkező
16 m²
hall
27 m²
fürdőszoba-wc
8.8 m²
fürdőszoba-wc
4.9 m²
kamra
1.6 m²
Ruczek János
Hitelszakértő