118 900 000 Ft
304 000 €
- 55m²
- 3 szoba
- 2. emelet
Balatonszemes , vízparti nyaraló keresi új tulajdonosát.
A Szemespart 1 , Balatonszemes egyik legkülönlegesebb pontján, közvetlenül a kikötő mellett, a vízparton épült meg – ott, ahol a csendes zöld környezet és a balatoni élet pezsgése tökéletes egyensúlyt alkot.
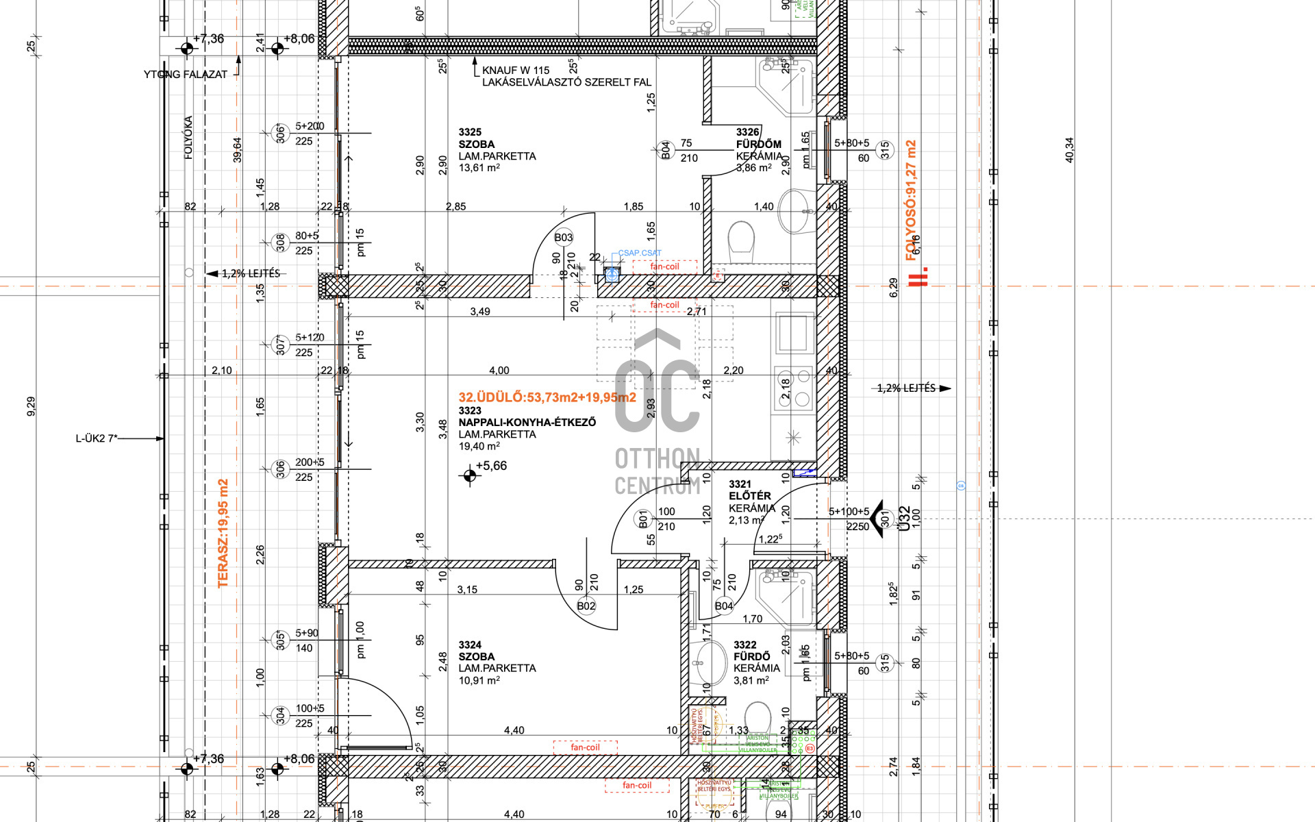
A 2019- ben átadott 55 nm-es lakás a második emeleten található , Balatonra néző panorámával.
Elosztása - 2 hálószoba, tágas nappali, amerikai konyha-étkező, fürdőszoba, 26 nm-es fedett teraszkapcsolattal.
Az otthon melegét padlófűtés és klíma berendezés biztosítja,
A hőszigetelt nyílászárók elektromos redőnnyel, szúnyoghálóval felszereltek.
Modern, gépesített konyha,stílusos ,igényes burkolatok, bútorok , napfényes terek jellemzik a keleti fekvés lakást.
Az akadálymentesítést üvegfalú lift biztosítja , az emeleti szintekhez.való feljutást.
A földszinten elhelyezett saját, zárt 4 nm-es tároló a vételár részét képezi.
Kiépített elektromos autótöltő, , áll a lakók rendelkezésére.
A társasház zárt udvarában a lakáshoz ,1 db felszíni parkolóhely biztosított, ami igény szerint megvásárolható.
A tulajdonos teljes berendezéssel együtt szeretné a lakást értékesíteni , ezt az irányár tartalmazza.
A közös költség 26.000,-Ft, amelyben egyebekben a felújítási alap, lakásbiztosítás, lépcsőház takarítás, liftkezelés, udvar, kert takarítása és ápolása is beletartozik.
Kifogástalan állapotú, modern nyaraló, mely meseszerű vízparti környezetben és panorámával várja új tulajdonosait.
Télen, nyáron ideális lakhatásra, pihenéshez, feltöltődéshez, de kiváló lehetőség befektetésként is.
A vízpart közvetlen közelsége, az Északi-part szemet gyönyörködtető látványa mellett, hívogatóak a hangulatos kis település minőségi éttermei, borászata, péksége, vagy cukrászdái.
A felújított kerékpárutakon könnyen megközelíthető bármelyik szomszédos település, miközben számos lehetőség nyílik a kikapcsolódáshoz, hajózáshoz.
Ha felkeltette az érdeklődését, hívjon bizalommal!
A Szemespart 1 , Balatonszemes egyik legkülönlegesebb pontján, közvetlenül a kikötő mellett, a vízparton épült meg – ott, ahol a csendes zöld környezet és a balatoni élet pezsgése tökéletes egyensúlyt alkot.
A 2019- ben átadott 55 nm-es lakás a második emeleten található , Balatonra néző panorámával.
Elosztása - 2 hálószoba, tágas nappali, amerikai konyha-étkező, fürdőszoba, 26 nm-es fedett teraszkapcsolattal.
Az otthon melegét padlófűtés és klíma berendezés biztosítja,
A hőszigetelt nyílászárók elektromos redőnnyel, szúnyoghálóval felszereltek.
Modern, gépesített konyha,stílusos ,igényes burkolatok, bútorok , napfényes terek jellemzik a keleti fekvés lakást.
Az akadálymentesítést üvegfalú lift biztosítja , az emeleti szintekhez.való feljutást.
A földszinten elhelyezett saját, zárt 4 nm-es tároló a vételár részét képezi.
Kiépített elektromos autótöltő, , áll a lakók rendelkezésére.
A társasház zárt udvarában a lakáshoz ,1 db felszíni parkolóhely biztosított, ami igény szerint megvásárolható.
A tulajdonos teljes berendezéssel együtt szeretné a lakást értékesíteni , ezt az irányár tartalmazza.
A közös költség 26.000,-Ft, amelyben egyebekben a felújítási alap, lakásbiztosítás, lépcsőház takarítás, liftkezelés, udvar, kert takarítása és ápolása is beletartozik.
Kifogástalan állapotú, modern nyaraló, mely meseszerű vízparti környezetben és panorámával várja új tulajdonosait.
Télen, nyáron ideális lakhatásra, pihenéshez, feltöltődéshez, de kiváló lehetőség befektetésként is.
A vízpart közvetlen közelsége, az Északi-part szemet gyönyörködtető látványa mellett, hívogatóak a hangulatos kis település minőségi éttermei, borászata, péksége, vagy cukrászdái.
A felújított kerékpárutakon könnyen megközelíthető bármelyik szomszédos település, miközben számos lehetőség nyílik a kikapcsolódáshoz, hajózáshoz.
Ha felkeltette az érdeklődését, hívjon bizalommal!
Regisztrációs szám
H514917
Az ingatlan adatai
Értékesités
eladó
Jogi státusz
használt
Jelleg
nyaraló
Típus
lakás
Építési mód
tégla
Méret
55 m²
Bruttó méret
55 m²
Terasz / erkély mérete
26 m²
Fűtés
Gáz cirkó
Belmagasság
275 cm
Tájolás
Dél-nyugat
Panoráma
folyóra tóra néző panoráma, Zöldre néző panoráma
Lépcsőház típusa
függőfolyosó
Állapot
Kiváló
Homlokzat állapota
Kiváló
Lépcsőház állapota
Kiváló
Környék
csendes, jó közlekedés, zöld, központi
Építés éve
2018
Fekvés
kertre néző
Közös költség
26000
Víz
Van
Gáz
Van
Villany
Van
Csatorna
Van
Lift
van
Tároló
Önálló
Helyiségek
hálószoba
1 m²
szoba
1 m²
nappali-konyha
1 m²
fürdőszoba
1 m²
terasz
1 m²
tároló
1 m²
Edve János
Hitelszakértő