309 000 000 Ft
791 000 €
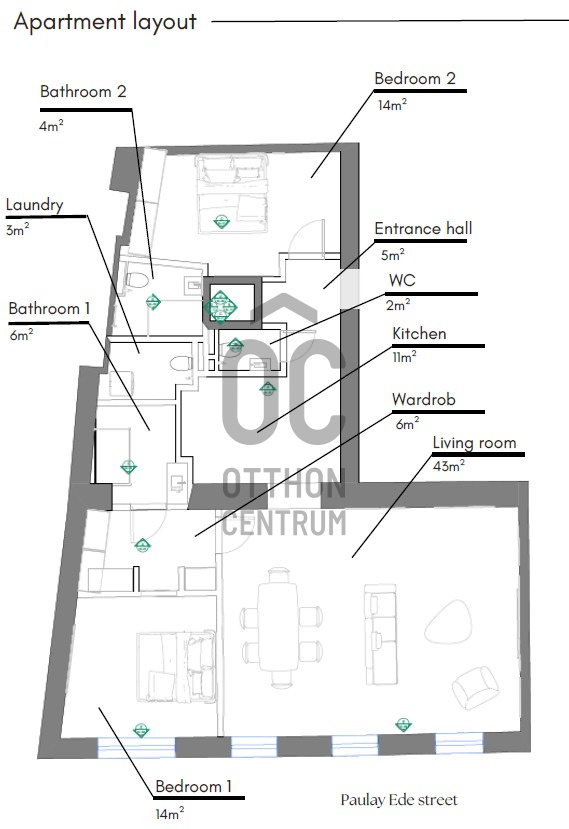
- 104m²
- 3 szoba
- 3. emelet
LUXURY RESIDENCE FOR SALE ON PAULAY EDE STREET — DISTRICT VI, BUDAPEST
Located on one of Budapest’s most prestigious streets, this exceptional residence on Paulay Ede Street offers a perfect blend of historic grandeur and contemporary luxury living.
Behind the elegant façade lies a beautifully designed 104 sqm apartment on the 3rd floor, facing south-east, filled with natural light and refined architectural character. High ceilings, carefully restored details, and premium finishes create a sophisticated atmosphere that reflects true European elegance.
The property is equipped with modern high-end features, including:
– Underfloor heating for year-round comfort
– Central air conditioning
– Advanced smart home (domotic) system
– Fully equipped contemporary kitchen
– Superior materials and craftsmanship throughout
The location is truly outstanding: Andrássy Avenue, the Hungarian State Opera House, fine dining, luxury boutiques, and major cultural landmarks are all just steps away, offering an unparalleled inner-city lifestyle.
This residence is an ideal choice as a primary home, a prestigious city apartment, or a secure long-term investment.
Contact us today to arrange a private viewing of this remarkable property.
Behind the elegant façade lies a beautifully designed 104 sqm apartment on the 3rd floor, facing south-east, filled with natural light and refined architectural character. High ceilings, carefully restored details, and premium finishes create a sophisticated atmosphere that reflects true European elegance.
The property is equipped with modern high-end features, including:
– Underfloor heating for year-round comfort
– Central air conditioning
– Advanced smart home (domotic) system
– Fully equipped contemporary kitchen
– Superior materials and craftsmanship throughout
The location is truly outstanding: Andrássy Avenue, the Hungarian State Opera House, fine dining, luxury boutiques, and major cultural landmarks are all just steps away, offering an unparalleled inner-city lifestyle.
This residence is an ideal choice as a primary home, a prestigious city apartment, or a secure long-term investment.
Contact us today to arrange a private viewing of this remarkable property.
Regisztrációs szám
H513825
Az ingatlan adatai
Értékesités
eladó
Jogi státusz
használt
Jelleg
lakás
Építési mód
tégla
Méret
104 m²
Bruttó méret
104 m²
Belmagasság
320 cm
Tájolás
Dél-kelet
Panoráma
városi panoráma
Lépcsőház típusa
körfolyosó
Állapot
Kiváló
Homlokzat állapota
Kiváló
Lépcsőház állapota
Kiváló
Környék
jó közlekedés, központi
Építés éve
1930
Fürdőszobák száma
2
Fekvés
utcai
Víz
Van
Gáz
Van
Villany
Van
Csatorna
Van
Lift
van
Helyiségek
nappali
43 m²
hálószoba
14 m²
hálószoba
14 m²
konyha
11 m²
fürdőszoba-wc
6 m²
fürdőszoba-wc
4 m²
wc
2 m²
mosókonyha
3 m²
gardrób
6 m²
előszoba
5 m²