220 000 000 Ft
570 000 €
- 105m²
- 4 szoba
- 1. emelet
Panoráma, nyugalom, elegancia – kompromisszumok nélkül.
Kinek ajánlom
Ezt az ingatlant azoknak ajánlom, akik az otthont nem pusztán élettérnek, hanem harmóniát adó helynek tekintik.
Akik szeretik, ha reggel a napfény tölti meg a szobákat, ha este a városi fényekkel a horizonton pihennek meg, és fontos számukra a nyugalom, a panoráma és a minőség.
Ideális választás családoknak, pároknak, vagy akár elfoglalt szakembereknek, akik egy rendezett, zöldövezeti környezetben szeretnének élni — kompromisszumok nélkül.
Elhelyezkedés
Az ingatlan Budaörs egyik legkedveltebb, dombos részén található, zöldövezeti, mégis kiválóan megközelíthető környezetben.
A városközpont, valamint a legfontosabb bevásárlási lehetőségek – IKEA, Auchan, Tesco, Decathlon, Rossmann, gyógyszertárak – mind néhány perces autóútra elérhetők.
Több iskola, óvoda és sportlétesítmény is a közelben található, a tömegközlekedés pedig kényelmesen használható: helyi buszjáratok biztosítanak kapcsolatot a budaörsi központ és Budapest irányába.
Az M1–M7 autópályák csomópontja mindössze pár percre található.
A környék hangulata
A budaörsi dombvidék egyik legcsendesebb és legápoltabb része.
A környék atmoszférája nyugalmat és természetközelséget sugároz, miközben modern, igényes családi házak és új építésű társasházak veszik körül.
A környék ideális választás azoknak, akik szeretik a reggeli sétákat, a friss levegőt, a csendes esték békéjét, és akik számára fontos, hogy a panoráma valóban elvehetetlen maradjon.
Az ingatlanról
A lakás egy kétlakásos társasház felső szintjén helyezkedik el – így teljes intimitást és privát életteret biztosít.
A ház elhelyezkedéséből adódóan 180 fokos, körpanorámás kilátás tárul elénk, amely a nappaliból, a teraszról és a kertből is élvezhető.
A lakás különlegessége a 33 m²-es, üvegkorlattal ellátott panorámaterasz, ahol minden napszakban más arcát mutatja a kilátás.
A tágas, egybenyitott nappali–étkező–konyha térben hatalmas üvegfelületek engedik be a fényt, így a lakás egész nap napfényben úszik.
A három hálószoba közül a legnagyobb közvetlen kertkapcsolattal rendelkezik.
A házhoz privát úton lehet feljutni, ami biztonságot és nyugalmat ad, a környezet pedig rendezett és igényes.
Műszaki felszereltség
Építés éve: 2018
Fa nyílászárók, prémium hőszigeteléssel
Hőszivattyús hűtés–fűtés rendszer, alacsony fenntartási költségekkel
Beépített konyhabútor és beépített gardróbszekrények
Frissen tisztított, üres állapot, azonnal költözhető
Modern, igényes kivitelezés, időtálló anyaghasználat
Parkolás és megközelítés
A lakáshoz tartozik egy 30 m²-es, zárható, privát garázs, amely kizárólag az ingatlan tulajdonosának használatában van.
Ezen felül a telken belül további 2–3 felszíni beállóhely is rendelkezésre áll.
A ház privát úton közelíthető meg, ami exkluzivitást és biztonságot nyújt a lakók számára.
Ez az otthon egyszerre sugároz letisztultságot, harmóniát és eleganciát – egy hely, ahol minden részlet a kényelmet és a nyugalmat szolgálja.
Ha felkeltette az érdeklődését, keressen bizalommal, örömmel mutatom be személyesen is ezt a különleges ingatlant.
Ezt az ingatlant azoknak ajánlom, akik az otthont nem pusztán élettérnek, hanem harmóniát adó helynek tekintik.
Akik szeretik, ha reggel a napfény tölti meg a szobákat, ha este a városi fényekkel a horizonton pihennek meg, és fontos számukra a nyugalom, a panoráma és a minőség.
Ideális választás családoknak, pároknak, vagy akár elfoglalt szakembereknek, akik egy rendezett, zöldövezeti környezetben szeretnének élni — kompromisszumok nélkül.
Elhelyezkedés
Az ingatlan Budaörs egyik legkedveltebb, dombos részén található, zöldövezeti, mégis kiválóan megközelíthető környezetben.
A városközpont, valamint a legfontosabb bevásárlási lehetőségek – IKEA, Auchan, Tesco, Decathlon, Rossmann, gyógyszertárak – mind néhány perces autóútra elérhetők.
Több iskola, óvoda és sportlétesítmény is a közelben található, a tömegközlekedés pedig kényelmesen használható: helyi buszjáratok biztosítanak kapcsolatot a budaörsi központ és Budapest irányába.
Az M1–M7 autópályák csomópontja mindössze pár percre található.
A környék hangulata
A budaörsi dombvidék egyik legcsendesebb és legápoltabb része.
A környék atmoszférája nyugalmat és természetközelséget sugároz, miközben modern, igényes családi házak és új építésű társasházak veszik körül.
A környék ideális választás azoknak, akik szeretik a reggeli sétákat, a friss levegőt, a csendes esték békéjét, és akik számára fontos, hogy a panoráma valóban elvehetetlen maradjon.
Az ingatlanról
A lakás egy kétlakásos társasház felső szintjén helyezkedik el – így teljes intimitást és privát életteret biztosít.
A ház elhelyezkedéséből adódóan 180 fokos, körpanorámás kilátás tárul elénk, amely a nappaliból, a teraszról és a kertből is élvezhető.
A lakás különlegessége a 33 m²-es, üvegkorlattal ellátott panorámaterasz, ahol minden napszakban más arcát mutatja a kilátás.
A tágas, egybenyitott nappali–étkező–konyha térben hatalmas üvegfelületek engedik be a fényt, így a lakás egész nap napfényben úszik.
A három hálószoba közül a legnagyobb közvetlen kertkapcsolattal rendelkezik.
A házhoz privát úton lehet feljutni, ami biztonságot és nyugalmat ad, a környezet pedig rendezett és igényes.
Műszaki felszereltség
Építés éve: 2018
Fa nyílászárók, prémium hőszigeteléssel
Hőszivattyús hűtés–fűtés rendszer, alacsony fenntartási költségekkel
Beépített konyhabútor és beépített gardróbszekrények
Frissen tisztított, üres állapot, azonnal költözhető
Modern, igényes kivitelezés, időtálló anyaghasználat
Parkolás és megközelítés
A lakáshoz tartozik egy 30 m²-es, zárható, privát garázs, amely kizárólag az ingatlan tulajdonosának használatában van.
Ezen felül a telken belül további 2–3 felszíni beállóhely is rendelkezésre áll.
A ház privát úton közelíthető meg, ami exkluzivitást és biztonságot nyújt a lakók számára.
Ez az otthon egyszerre sugároz letisztultságot, harmóniát és eleganciát – egy hely, ahol minden részlet a kényelmet és a nyugalmat szolgálja.
Ha felkeltette az érdeklődését, keressen bizalommal, örömmel mutatom be személyesen is ezt a különleges ingatlant.
Regisztrációs szám
H508624
Az ingatlan adatai
Értékesités
eladó
Jogi státusz
használt
Jelleg
lakás
Építési mód
tégla
Méret
105 m²
Bruttó méret
130,5 m²
Terasz / erkély mérete
51 m²
Kert méret
50 m²
Fűtés
hőszivattyú
Belmagasság
275 cm
Tájolás
Kelet
Panoráma
Zöldre néző panoráma
Lépcsőház típusa
nincs
Állapot
Jó
Homlokzat állapota
Jó
Lépcsőház állapota
Jó
Környék
csendes, jó közlekedés, zöld
Építés éve
2018
Fürdőszobák száma
1
Fekvés
kertre néző
Társaház kert
igen
Garázs
Benne van az árban
Garázs férőhely
1
Víz
Van
Gáz
Van
Villany
Van
Csatorna
Van
Kertkapcsolatos
igen
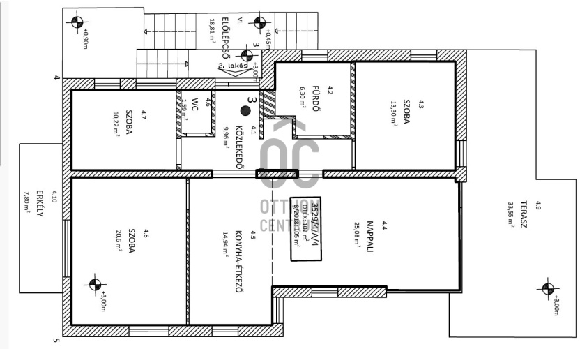
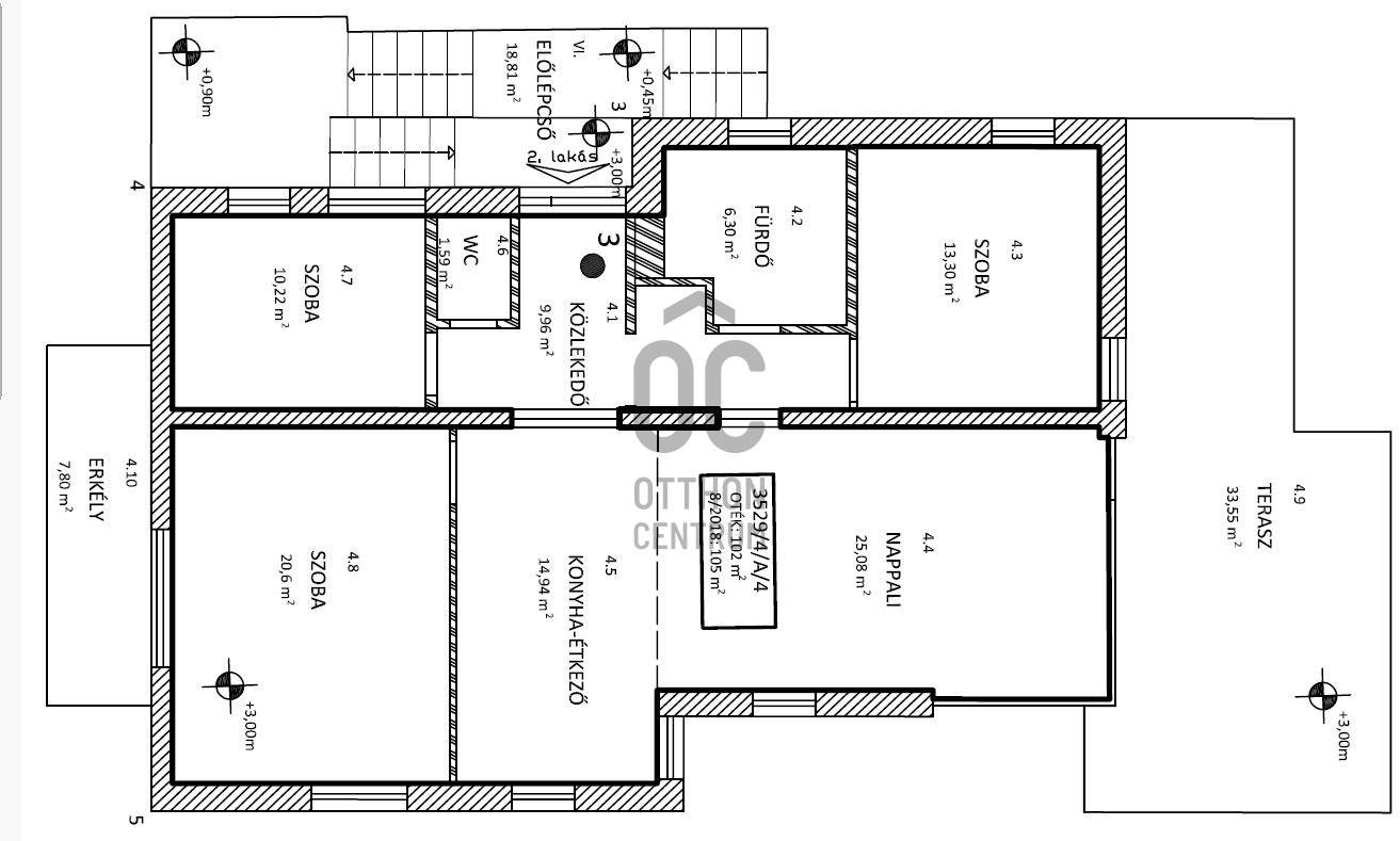
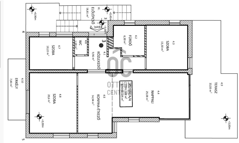
Helyiségek
nappali-konyha
40 m²
hálószoba
10.2 m²
hálószoba
20.6 m²
hálószoba
13.3 m²
fürdőszoba
6.3 m²
wc
1.6 m²
közlekedő
9.9 m²
terasz
33.5 m²
terasz
8 m²
garázs
33 m²
Ruczek Krisztina
Hitelszakértő