Elérhető Otthon Start hitellel
Eladó családi ház,
H509046
Budapest XVII. kerület, Rákoskert
94 000 000 Ft
242 000 €
- 160m²
- 7 szoba




















MERT VAN AMIT ÉRDEMES FELÚJÍTANI! JÓ HELYEN, JÓ TELKEN, JÓL MEGÉPÍTETT FELÚJTANDÓ HÁZ.
A Rákoskert domboldalában, a Fuvaros utcában található családi ház a felújítás után ideális otthona lehet nagycsaládnak vagy 2 generációnak is.
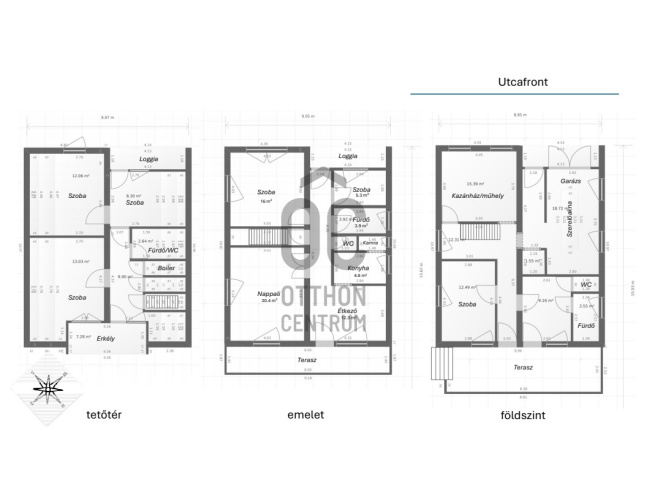
A ház egy 725 nm-es lejtős telekre épült a 80-as évek végén. Három szinten, 2 külön lakrész és akár 7 szoba is kialakítható. Az épület statikailag rendben van, nem sülyed, nem vizesedik.
ALSÓ SZINT:
Az utca felőli oldalon egy tágas garázs található, szerelőaknával. Mellette a kazánház-műhely-tároló. Az udvar felől egy garzon lakás lett kialakítva, lejtős telek révén ez egy földszinti lakás, nem szuterén. Szoba, konyha-étkező, fürdőszoba, WC. Közvetlen kijárattal a kertbe, egy nagy teraszra. A lakás a garázs felől ajtóval leválasztható, az utca és a kert felől is megközelíthető.
KÖZÉPSŐ SZINT:
Kis ráfordítással gyorsan lakhatóvá tehető, nappali + 2 szoba, étkező, konyha, kamra, fürdőszoba, WC kialakításban. Az étkezőhöz kapcsolódó terasz nyáron árnyékos, ideális kiterjesztése az étkezőnek, grillező és pihenőhely lehet.
TETŐTÉR:
A tetőtérben 3 szoba, fürdőszoba, WC, tároló helyiségek kialakítása kezdődött meg. A tetőtéri erkélyről a kert rendezése után a szemközti dombok panorámája tárulhat elénk.
GÉPÉSZET, MŰSZAKI PARAMÉTEREK:
A ház elkezdett felújítása során az elektromos hálózat teljesen elkészült. Új kondenzációs gázkazán került beépítésre, meghagyva a régi vegyestüzelésű lehetőséget is. Jelenleg a meleg vizet a tetőtérben elhelyezett 120 literes villanybojler szolgáltatja, de ráköthető az új gázkazánra is.
Az épület teherhordó falai 40 cm vastag falazóblokkból készültek, a fa nyílászárók hőszigetelt üvegezésűek.
Az udvar hátsó részén található még egy 30 nm hasznos alapterületű tégla épület, műhely-raktár funkciókkal.
Az utcáról lehetőség van még több gépkocsi beállására is.
RÁKOSKERT:
A zöldövezeti nyugalom Budapest szélén. Azoknak ideális, akik szeretnének Budapesten élni, de a kertes házas, zöldövezeti környezetet, a nyugalmat és a közösségi életet részesítik előnyben. Rákoskert népszerű lakóhely, ami főként a kertvárosi jellegének és a természeti közelségének köszönhető.
A természet közelség és a magasabb fekvés:
•Kertvárosi hangulat: A városrész jellege a budai kerületekhez hasonlít, sok utcája lejtős, ami egyedi látképet kölcsönöz neki. A kellemes környezet miatt kedvelt lakóterületnek számít.
•Vidadomb: Rákoskert legmagasabb pontja (kb. 200 méter), ahonnan szép panoráma nyílik a közeli védett Merzse-mocsárra és a Ferihegyi repülőtérre. A domb a helyi közösségi élet fontos helyszíne, ahol rendszeresen rendeznek koncerteket, ünnepségeket. Itt található játszótér, focipálya és felnőtt kondipark is.
•Merzse-mocsár: A XVII. kerület területén található a 27 hektáros Merzse-mocsár, amely Budapest egyik legháborítatlanabb vizes élőhelye és természetvédelmi terület, ami ideális célpont a természetkedvelőknek, futóknak, kirándulóknak.
Tömegközlekedéshez a buszmegálló pár perc séta. A XVII. kerület központja, a Fő tér (piac, szakorvosi rendelő, Polgármesteri Hivatal, bankfiókok, gyógyszertár, üzletek, cukrászda, ……..) 15 perc alatt elérhető.
Gépkocsival az M0 5 perc. A maglódi bevásárlóközpont (Auchan, Decathlon, Bauhaus) szintén. Liszt Ferenc Repülőtér 15 perc.
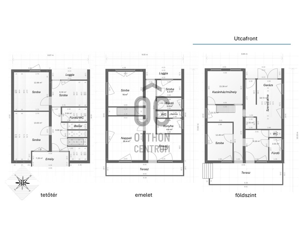
A ház egy 725 nm-es lejtős telekre épült a 80-as évek végén. Három szinten, 2 külön lakrész és akár 7 szoba is kialakítható. Az épület statikailag rendben van, nem sülyed, nem vizesedik.
ALSÓ SZINT:
Az utca felőli oldalon egy tágas garázs található, szerelőaknával. Mellette a kazánház-műhely-tároló. Az udvar felől egy garzon lakás lett kialakítva, lejtős telek révén ez egy földszinti lakás, nem szuterén. Szoba, konyha-étkező, fürdőszoba, WC. Közvetlen kijárattal a kertbe, egy nagy teraszra. A lakás a garázs felől ajtóval leválasztható, az utca és a kert felől is megközelíthető.
KÖZÉPSŐ SZINT:
Kis ráfordítással gyorsan lakhatóvá tehető, nappali + 2 szoba, étkező, konyha, kamra, fürdőszoba, WC kialakításban. Az étkezőhöz kapcsolódó terasz nyáron árnyékos, ideális kiterjesztése az étkezőnek, grillező és pihenőhely lehet.
TETŐTÉR:
A tetőtérben 3 szoba, fürdőszoba, WC, tároló helyiségek kialakítása kezdődött meg. A tetőtéri erkélyről a kert rendezése után a szemközti dombok panorámája tárulhat elénk.
GÉPÉSZET, MŰSZAKI PARAMÉTEREK:
A ház elkezdett felújítása során az elektromos hálózat teljesen elkészült. Új kondenzációs gázkazán került beépítésre, meghagyva a régi vegyestüzelésű lehetőséget is. Jelenleg a meleg vizet a tetőtérben elhelyezett 120 literes villanybojler szolgáltatja, de ráköthető az új gázkazánra is.
Az épület teherhordó falai 40 cm vastag falazóblokkból készültek, a fa nyílászárók hőszigetelt üvegezésűek.
Az udvar hátsó részén található még egy 30 nm hasznos alapterületű tégla épület, műhely-raktár funkciókkal.
Az utcáról lehetőség van még több gépkocsi beállására is.
RÁKOSKERT:
A zöldövezeti nyugalom Budapest szélén. Azoknak ideális, akik szeretnének Budapesten élni, de a kertes házas, zöldövezeti környezetet, a nyugalmat és a közösségi életet részesítik előnyben. Rákoskert népszerű lakóhely, ami főként a kertvárosi jellegének és a természeti közelségének köszönhető.
A természet közelség és a magasabb fekvés:
•Kertvárosi hangulat: A városrész jellege a budai kerületekhez hasonlít, sok utcája lejtős, ami egyedi látképet kölcsönöz neki. A kellemes környezet miatt kedvelt lakóterületnek számít.
•Vidadomb: Rákoskert legmagasabb pontja (kb. 200 méter), ahonnan szép panoráma nyílik a közeli védett Merzse-mocsárra és a Ferihegyi repülőtérre. A domb a helyi közösségi élet fontos helyszíne, ahol rendszeresen rendeznek koncerteket, ünnepségeket. Itt található játszótér, focipálya és felnőtt kondipark is.
•Merzse-mocsár: A XVII. kerület területén található a 27 hektáros Merzse-mocsár, amely Budapest egyik legháborítatlanabb vizes élőhelye és természetvédelmi terület, ami ideális célpont a természetkedvelőknek, futóknak, kirándulóknak.
Tömegközlekedéshez a buszmegálló pár perc séta. A XVII. kerület központja, a Fő tér (piac, szakorvosi rendelő, Polgármesteri Hivatal, bankfiókok, gyógyszertár, üzletek, cukrászda, ……..) 15 perc alatt elérhető.
Gépkocsival az M0 5 perc. A maglódi bevásárlóközpont (Auchan, Decathlon, Bauhaus) szintén. Liszt Ferenc Repülőtér 15 perc.
Regisztrációs szám
H509046
Az ingatlan adatai
Értékesités
eladó
Jogi státusz
használt
Jelleg
ház
Építési mód
tégla
Méret
160 m²
Bruttó méret
250 m²
Telek méret
725 m²
Terasz / erkély mérete
62 m²
Fűtés
Gáz cirkó
Belmagasság
270 cm
Lakáson belüli szintszám
3
Tájolás
Dél-kelet
Panoráma
városi panoráma
Állapot
Felújítandó
Homlokzat állapota
Átlagos
Pince
Önálló
Környék
csendes, jó közlekedés, zöld
Építés éve
1990
Fürdőszobák száma
3
Garázs
Benne van az árban
Garázs férőhely
1
Víz
Van
Gáz
Van
Villany
Van
Csatorna
Utcán
Tároló
Önálló
Helyiségek
garázs
17.8 m²
kazánház
15.5 m²
tároló
1.6 m²
közlekedő
4.2 m²
szoba
12.3 m²
wc
1 m²
fürdőszoba
3.2 m²
közlekedő
4.7 m²
szoba
20.9 m²
szoba
16.3 m²
szoba
5.5 m²
ebédlő
11.7 m²
konyha
4.5 m²
kamra
1.3 m²
wc
1 m²
fürdőszoba
4 m²
közlekedő
7.4 m²
szoba
10 m²
szoba
10.5 m²
szoba
6.1 m²
fürdőszoba-wc
2.2 m²
wc
1 m²
tároló
1 m²
tároló
2 m²

Ruczek Krisztina
Hitelszakértő