249 900 000 Ft
648 000 €
- 320m²
- 7 szoba
Otthon és vállalkozás egy fedél alatt
Budapest 16. kerületében, Rákosszentmihály csendes, biztonságos részén 2 külön bejáratú épületből álló ingatlan eladó, amely ideális választás családi otthon és üzleti vállalkozások számára is. A 320 nm-es alapterülettel rendelkező ingatlan 1082 nm-es, sík telken helyezkedik el. Mindkét épület a korábbi, svájci tulajdonos által magas precizitással megépített, szerkezetileg kifogástalan és időtálló állapotban várja új tulajdonosát. Az ingatlan elrendezése rendkívül praktikus, kiválóan alkalmas nagyobb családok, vagy akár több generáció együttélésére, illetve vállalkozás működtetésére is.
Az épületek falazata kívül-belül hőszigetelt (10 cm Nikecell, 38 cm tégla, 5 cm kőzetgyapot, hő-és párazáró fólia, 2,5 cm falemez). Fűtéséről és a melegvízről megbízható, karbantartott Vaillant gázkazán gondoskodik. Elektromos hálózat: 3*25A + H-Tarifa, 3*10A a klímákhoz. Rezsi: a víz-gáz-villanyra az elmúlt év átlagát tekintve összesen 30.000Ft/hó.
A 223 nm-es, 3 szintes épület jellemzői:
-Porotherm falazó elem betongerendás födémmel
-minőségi Bramac cseréptető
-kétrétegű üvegezett, fa nyílászárók
-a földszinten 80 nm lakótér (nappali, dolgozó- vagy hálószoba, külön konyha, wc kézmosóval, előszoba elosztású)
-az emelet nettó 63 nm (3 külön nyíló hálószoba, fürdőszoba).
A szuterén szint jellemzői:
-80 nm-en éléskamra, mosókonyha/gépészet, jelenleg műhely, szoba
-természetes fényt is kap és jól szellőztethető
-fűthető, klimatizált és körbejárható
A 97 nm-es, különálló épület jellemzői:
-külön bejárat
-fafödémes szerkezet
-minőségi Bramac cseréptető
-jól szigetelő, műanyag nyílászárók
-modern fűtési-hűtési rendszer
-közmű fogyasztás almérő szerint
-tágas, teraszra néző nappali
-padlófűtés, radiátor és korszerű klímák.
Kert, udvar:
-2 férőhelyes, téglaépítésű garázs (30 nm), távvezérelt kapuval
-15 nm-es tároló kerti szerszámoknak
-térkövezett kocsibeálló
-automata csepegtetőrendszer és öntöző almérővel ellátva
-ásott kút
-veteményes kert, fiatal gyümölcsfák bőséges terméssel.
Környék:
Csendes utcák, újszerű és karbantartott családi házak nagy kertekkel, egyre több fiatal családdal. Összetartó és jól szituált lakóközösség jellemzi a környéket.
M0 autópálya alig 20 km
Vásárlás:Pólus, Ázsia Center , Lidl kb. 5 percre van autóval
Rekreáció: uszoda, teniszpálya, edzőterem, Szilas-patak kerékpár út
Iskolák, óvodák
Az ingatlan rövid időn belül költözhető, tehermentes.
Átépítési igény esetén rendelkezésre áll egy díjnyertes tervező által készített koncepcióterv is.
Bővebb információ vagy megtekintés esetén várom hívását.
Az épületek falazata kívül-belül hőszigetelt (10 cm Nikecell, 38 cm tégla, 5 cm kőzetgyapot, hő-és párazáró fólia, 2,5 cm falemez). Fűtéséről és a melegvízről megbízható, karbantartott Vaillant gázkazán gondoskodik. Elektromos hálózat: 3*25A + H-Tarifa, 3*10A a klímákhoz. Rezsi: a víz-gáz-villanyra az elmúlt év átlagát tekintve összesen 30.000Ft/hó.
A 223 nm-es, 3 szintes épület jellemzői:
-Porotherm falazó elem betongerendás födémmel
-minőségi Bramac cseréptető
-kétrétegű üvegezett, fa nyílászárók
-a földszinten 80 nm lakótér (nappali, dolgozó- vagy hálószoba, külön konyha, wc kézmosóval, előszoba elosztású)
-az emelet nettó 63 nm (3 külön nyíló hálószoba, fürdőszoba).
A szuterén szint jellemzői:
-80 nm-en éléskamra, mosókonyha/gépészet, jelenleg műhely, szoba
-természetes fényt is kap és jól szellőztethető
-fűthető, klimatizált és körbejárható
A 97 nm-es, különálló épület jellemzői:
-külön bejárat
-fafödémes szerkezet
-minőségi Bramac cseréptető
-jól szigetelő, műanyag nyílászárók
-modern fűtési-hűtési rendszer
-közmű fogyasztás almérő szerint
-tágas, teraszra néző nappali
-padlófűtés, radiátor és korszerű klímák.
Kert, udvar:
-2 férőhelyes, téglaépítésű garázs (30 nm), távvezérelt kapuval
-15 nm-es tároló kerti szerszámoknak
-térkövezett kocsibeálló
-automata csepegtetőrendszer és öntöző almérővel ellátva
-ásott kút
-veteményes kert, fiatal gyümölcsfák bőséges terméssel.
Környék:
Csendes utcák, újszerű és karbantartott családi házak nagy kertekkel, egyre több fiatal családdal. Összetartó és jól szituált lakóközösség jellemzi a környéket.
M0 autópálya alig 20 km
Vásárlás:Pólus, Ázsia Center , Lidl kb. 5 percre van autóval
Rekreáció: uszoda, teniszpálya, edzőterem, Szilas-patak kerékpár út
Iskolák, óvodák
Az ingatlan rövid időn belül költözhető, tehermentes.
Átépítési igény esetén rendelkezésre áll egy díjnyertes tervező által készített koncepcióterv is.
Bővebb információ vagy megtekintés esetén várom hívását.
Regisztrációs szám
H506220
Az ingatlan adatai
Értékesités
eladó
Jogi státusz
használt
Jelleg
ház
Építési mód
tégla
Méret
320 m²
Bruttó méret
320 m²
Telek méret
1 082 m²
Terasz / erkély mérete
21,2 m²
Kert méret
650 m²
Fűtés
gáz kazán
Belmagasság
270 cm
Lakáson belüli szintszám
3
Tájolás
Dél-kelet
Állapot
Jó
Homlokzat állapota
Jó
Pince
Önálló
Környék
csendes, zöld
Építés éve
2000
Fürdőszobák száma
2
Társaház kert
igen
Garázs
Benne van az árban
Garázs férőhely
2
Víz
Van
Gáz
Van
Villany
Van
Csatorna
Van
Többgenerációs
igen
Tároló
Önálló
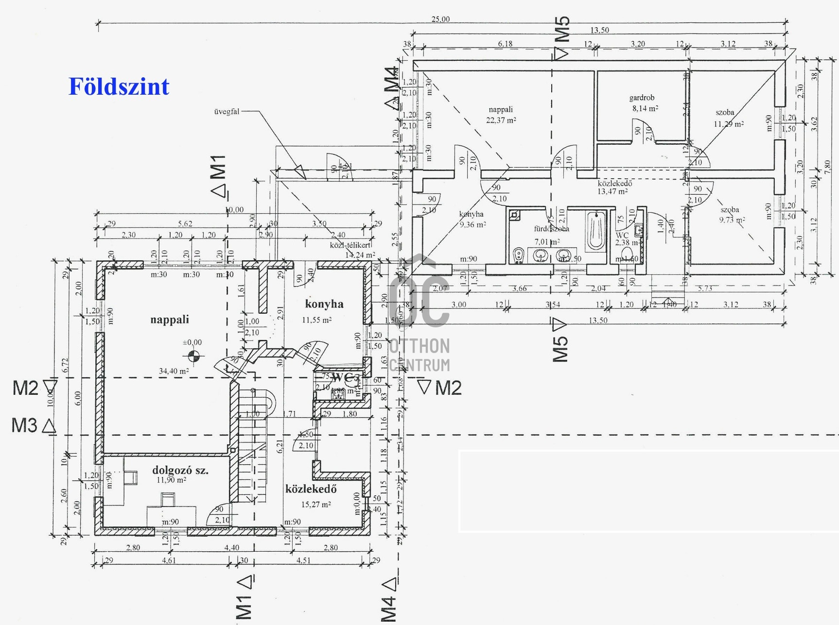
Helyiségek
nappali
34.4 m²
konyha
11.55 m²
wc-kézmosó
1.85 m²
dolgozószoba
11.9 m²
közlekedő
15.27 m²
hálószoba
15.38 m²
hálószoba
10.99 m²
hálószoba
10.83 m²
fürdőszoba-wc
7.97 m²
közlekedő
15.62 m²
terasz
6.21 m²
nappali
22.37 m²
konyha
9.36 m²
hálószoba
11.29 m²
hálószoba
9.73 m²
fürdőszoba
7 m²
wc-kézmosó
2.38 m²
gardrób
8.14 m²
közlekedő
13.47 m²
egyéb helyiség
21.58 m²
háztartási helyiség
31.92 m²
kamra
11.32 m²
kazánház
13.91 m²
garázs
30 m²
Lueff Péter
Hitelszakértő