156 000 000 Ft
401 000 €
- 92m²
- 3 szoba
- 2. emelet




















Budapest 1. kerületben a Várnegyed lábánál, eladó egy Horváth kertre panorámás 2. emeleti, 92 nm nagyságú erkélyes lakás.
A ház 1869-ben épült, megőrizvén a múlt hangulatát. Belső folyosói újra lettek kövezve, falai festve.
A lakás két apartmanra lett osztva, melynek bejáratai egy közös előszobából nyílnak.
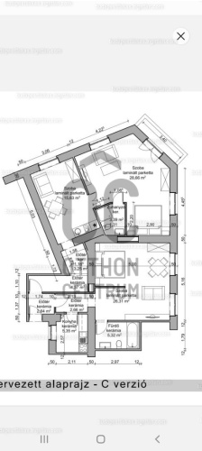
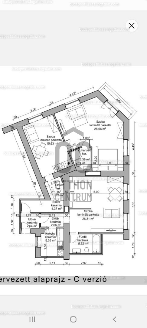
A nagyobbik lakrész 47 nm, helységei: előszoba, konyha étkezővel, fürdő WC-vel, zuhannyal, és egy 29 nm -es tágas sarokszoba, erkéllyel.
A kisebbik lakrész 39 nm, helységei: előszoba, konyha, fürdő WC-vel, káddal, és egy 26 nm-es tágas szoba.
Kiváló bérbeadásra, saját lakrész és iroda kialakítására, szülők és felnövekvő gyermekük 'együtt, de mégis külön' lakhatására.
A ház 1869-ben épült, megőrizvén a múlt hangulatát. Belső folyosói újra lettek kövezve, falai festve.
A lakás két apartmanra lett osztva, melynek bejáratai egy közös előszobából nyílnak.
A nagyobbik lakrész 47 nm, helységei: előszoba, konyha étkezővel, fürdő WC-vel, zuhannyal, és egy 29 nm -es tágas sarokszoba, erkéllyel.
A kisebbik lakrész 39 nm, helységei: előszoba, konyha, fürdő WC-vel, káddal, és egy 26 nm-es tágas szoba.
Kiváló bérbeadásra, saját lakrész és iroda kialakítására, szülők és felnövekvő gyermekük 'együtt, de mégis külön' lakhatására.
Regisztrációs szám
DLK037988
Az ingatlan adatai
Értékesités
eladó
Jogi státusz
használt
Jelleg
lakás
Építési mód
tégla
Méret
92 m²
Bruttó méret
92 m²
Fűtés
Gáz cirkó
Belmagasság
410 cm
Lakáson belüli szintszám
1
Tájolás
Észak-nyugat
Panoráma
Egyéb
Állapot
Jó
Homlokzat állapota
Jó
Építés éve
1869
Fürdőszobák száma
2
Kertkapcsolatos
igen
Helyiségek
előszoba
7 m²
előszoba
3.25 m²
nappali-konyha
15.63 m²
fürdőszoba-wc
3.39 m²
szoba
28.66 m²
erkély
3.4 m²
előszoba
2.66 m²
konyha
5.35 m²
szoba
26.31 m²
fürdőszoba-wc
5.32 m²

Tóth Róbert
Hitelszakértő