1,107,052 Ft
2,884 €
- 206m²
- 1st floor
KIADÓ IRODA - KRISZTINAVÁROS
KIADÓ egy központi elhelyezkedésű, I. kerületi irodaház I. emeletén lévő fél irodai szint.
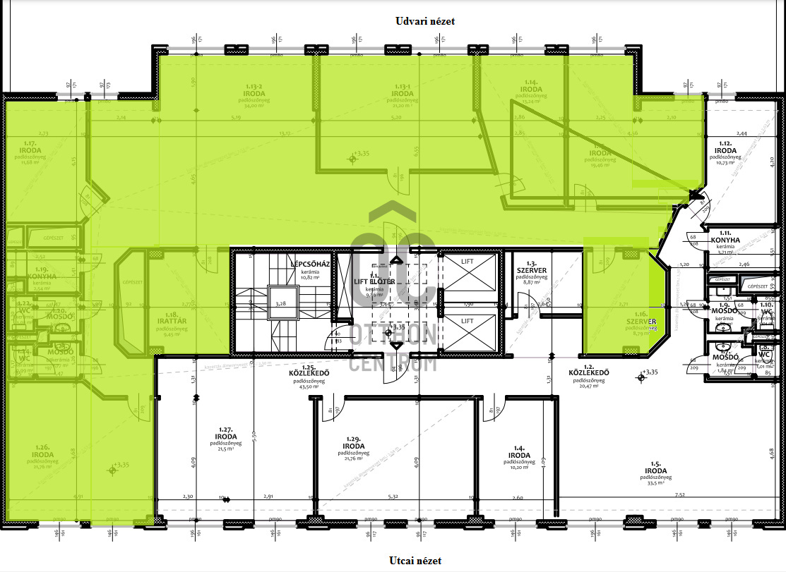
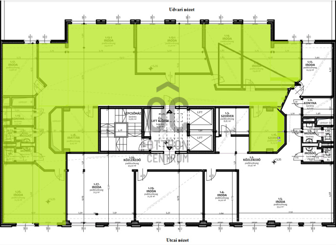
A szinten csupán két nagyobb iroda helyezkedik el.
Teljesen elkülönített, zárható irodai blokkok, saját teakonyhával, férfi- női mosdókkal és szerverszobával kialakított bérlemény várja hosszabb távú bérlőjét.
Az irodaházról:
- frekventált helyen a Krisztina tértől 150m -re található irodaház
- 24 éve épült, folyamatosan karbantartott épület
- 3 szintes parkolóház, ehhez az irodai részhez 2 db parkolóhely bérelhető
- portaszolgálat 7-17 óráig, igényes- modern ügyfélfogadó tér
- jelenleg is magasan minősített cégek bérlik az irodákat. Pénzügyi, ingatlanfejlesztési, tévécsatorna tevékenységi körrel.
Az irodáról:
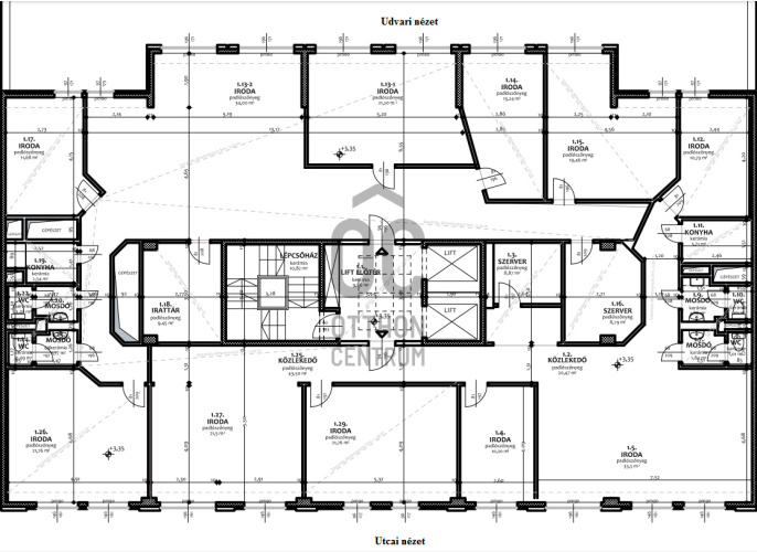
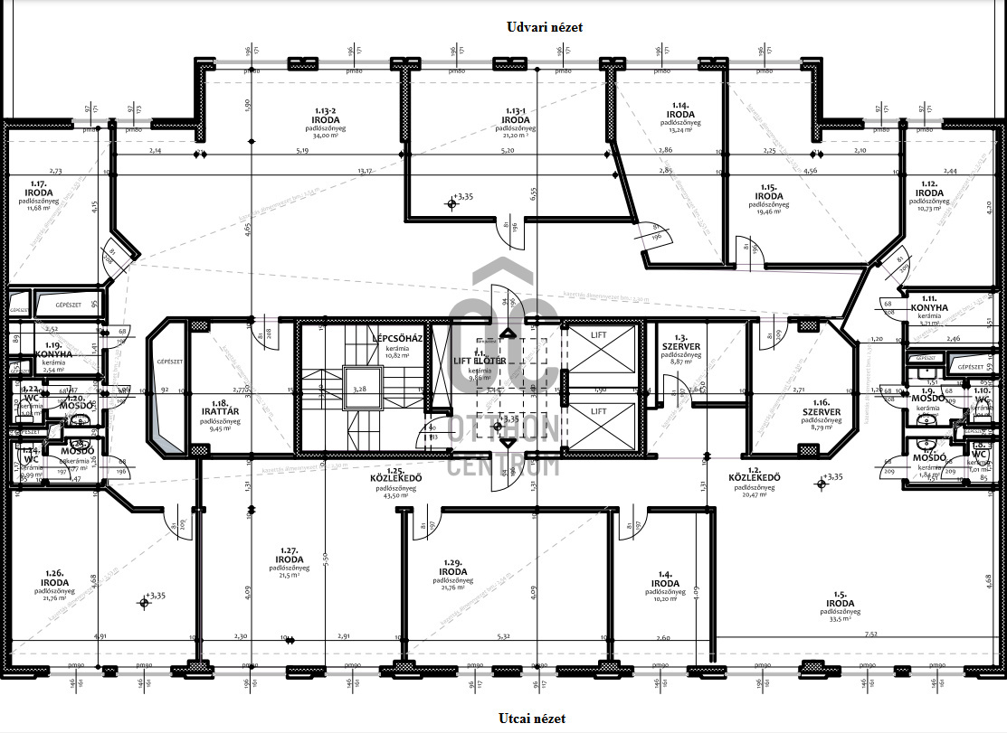
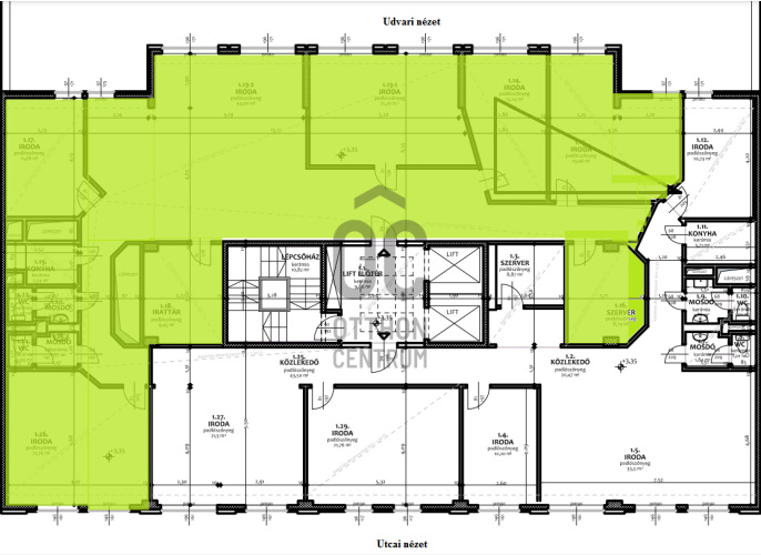
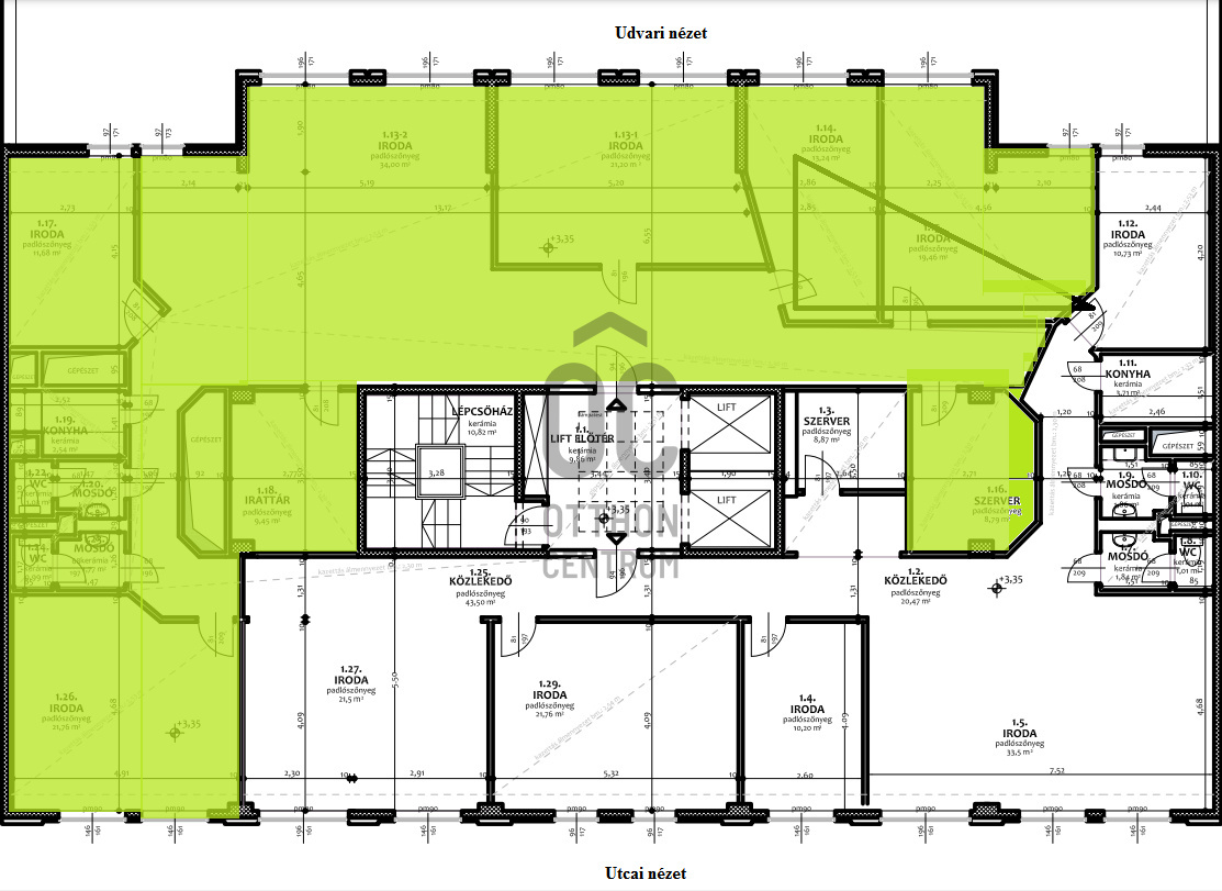
- br. 206 nm
- udvari+ utcai nézetű
- több irodai blokk, több zárható és elkülönített tárgyaló
- korszerűsített hűtés- fűtés rendszer
- bérleti díj: 14 euro+ ÁFA/nm
- 2400,- + ÁFA/nm fenntartási költség+ áram használat (külön mérőóra felszerelve)
- a bérbeadás 3 havi bérleti díj megfizetése ellenében tud megtörténni
- a bérlemény azonnal költözhető hosszabb távra
Amennyiben felkeltette érdeklődését az ingatlan kérem keressen bizalommal.
A szinten csupán két nagyobb iroda helyezkedik el.
Teljesen elkülönített, zárható irodai blokkok, saját teakonyhával, férfi- női mosdókkal és szerverszobával kialakított bérlemény várja hosszabb távú bérlőjét.
Az irodaházról:
- frekventált helyen a Krisztina tértől 150m -re található irodaház
- 24 éve épült, folyamatosan karbantartott épület
- 3 szintes parkolóház, ehhez az irodai részhez 2 db parkolóhely bérelhető
- portaszolgálat 7-17 óráig, igényes- modern ügyfélfogadó tér
- jelenleg is magasan minősített cégek bérlik az irodákat. Pénzügyi, ingatlanfejlesztési, tévécsatorna tevékenységi körrel.
Az irodáról:
- br. 206 nm
- udvari+ utcai nézetű
- több irodai blokk, több zárható és elkülönített tárgyaló
- korszerűsített hűtés- fűtés rendszer
- bérleti díj: 14 euro+ ÁFA/nm
- 2400,- + ÁFA/nm fenntartási költség+ áram használat (külön mérőóra felszerelve)
- a bérbeadás 3 havi bérleti díj megfizetése ellenében tud megtörténni
- a bérlemény azonnal költözhető hosszabb távra
Amennyiben felkeltette érdeklődését az ingatlan kérem keressen bizalommal.
Registration Number
UZ019103
Property Details
Sales
for rent
Legal Status
used
Character
commercial
Type of Business Property
part of building
Construction Method
brick
Net Size
206 m²
Above-Ground Net Size
206 m²
Heating
values.realestate.futes.26
Ceiling Height
289 cm
Number of Levels Within the Property
1
Condition
Excellent
Condition of Facade
Excellent
Condition of Staircase
Excellent
Year of Construction
2000
Water
Available
Electricity
Available
Sewer
Available
Elevator
available
Possible Functions
office
Visibility
Easily visible on a high foot traffic street
Accessibility
Entrance from busy main road
Utilization
vacant
Tóth Róbert
Credit Expert