Elérhető Otthon Start hitellel
Eladó lakás,
DLK025747
Budapest XVIII. kerület, Bókaytelep
100 000 000 Ft
261 000 €
- 135m²
- 3 szoba
XVIII. KERÜLET BÓKAY-KERT SZÍVÉBEN!
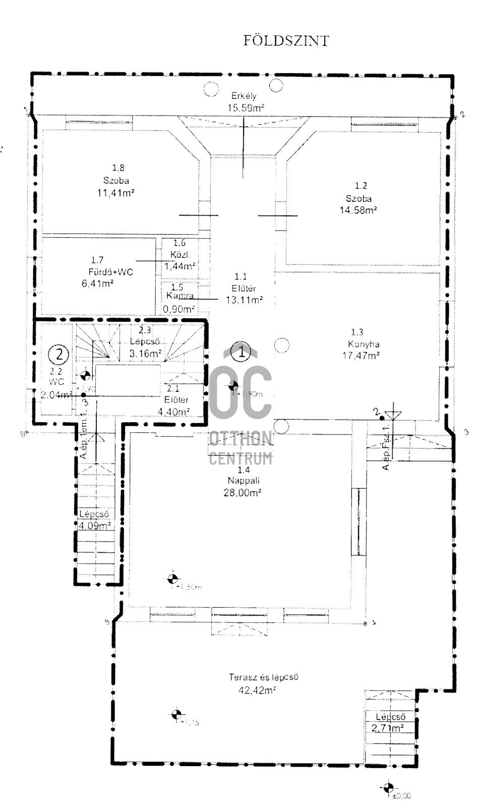
XVIII. kerület közkedvelt részén a Bókay kert szomszédságában eladó egy otthonos, hangulatos, nettó 93 nm-es földszinti társasházi lakás.
Kiemelném a lakás külön helyrajzi számmal és külön mérőórákkal, külön bejárattal, kertrésszel rendelkezik, jogilag rendezett, hitelezhető.
Az ingatlanhoz 99 nm-es telekrész és 42 nm-es terasz tartozik.
Az épület 2000-ben épült. A jelenleg is zajló felújítási munkák várhatóan 2025. évben illetve 2026. év első negyedévében érnek véget.
MŰSZAKI TARTALOM:
- az épület 15 cm szigeteléssel ellátott ,
- a fűtést 3 db klíma biztosítja, a melegvíz ellátást villanybojler látja el,
- a nyílászárók műanyag típusúak, redőnnyel és szúnyoghálóval ellátva,
- a melegvíz ellátását villanybojler biztosítja, a fűtést 3 db inverteres klíma látja el,
- a villanyvezeték rézcsővel kiépített,
- a vízvezetékek cseréje megtörtént,
- minden helyiség felújított,
- a tető zsindellyel borított,
- a lakás belmagassága, 2,8 m,
- a térburkolatok kövesek,
- a lakásban a szobák parkettásak, a közlekedő helyiségek és a vizesblokkok járólaposak,
- az utcafronton több autó parkolására van lehetőség.
A konyhabútor kivitelezése az új tulajdonos feladata!
Az ingatlan elosztása: tágas közlekedőből, önállóan nyíló kettő darab keleti tájolású 15 nm-es és 12 nm-es szobából, illetve egy zuhanyzós fürdőszobából és külön WC helyiségből áll. A keleti tájolású konyhához, az egy légterű a 28 nm-es nappali tartozik, mely nyugati fekvésű. A nappali a 42 nm-es terasszal kapcsolatos.
A családi otthon tájolását tekintve előnyös, mert ablakai mind a négy égtájra nyílnak, ezáltal világos és hangulatos az épület.
Az lakás teher-, per-, jog- és igénymentes, hitelezhető.
Aki ismeri ezt a környéket pontosan tudja, hogy csendes, kertvárosias, fás utcák alkotják, adott a nyugalom, mégis kiváló a közlekedése jellemzi, minden, ami a minden napokhoz szükséges percek alatt elérhető.
Az ingatlanhoz séta közelben több üzlet (Lidl Spar, Aldi, DM, stb.) és általános iskola, óvoda és bölcsőde, illetve rendelőintézet, valamint buszmegálló található. Bármely busszal az M3-as metróvonal 10 perc alatt elérhető. Az M0 autóút negyedórán belül elérhető.
Amennyiben felkeltette érdeklődését, és úgy érzi, hogy a hirdetéssel rátalált ideális otthonára, további információért és megtekintéssel kapcsolatban keressen bizalommal!
Jöjjön el és tekintse meg leendő otthonát, várom megtisztelő hívását!
XVIII. kerület közkedvelt részén a Bókay kert szomszédságában eladó egy otthonos, hangulatos, nettó 93 nm-es földszinti társasházi lakás.
Kiemelném a lakás külön helyrajzi számmal és külön mérőórákkal, külön bejárattal, kertrésszel rendelkezik, jogilag rendezett, hitelezhető.
Az ingatlanhoz 99 nm-es telekrész és 42 nm-es terasz tartozik.
Az épület 2000-ben épült. A jelenleg is zajló felújítási munkák várhatóan 2025. évben illetve 2026. év első negyedévében érnek véget.
MŰSZAKI TARTALOM:
- az épület 15 cm szigeteléssel ellátott ,
- a fűtést 3 db klíma biztosítja, a melegvíz ellátást villanybojler látja el,
- a nyílászárók műanyag típusúak, redőnnyel és szúnyoghálóval ellátva,
- a melegvíz ellátását villanybojler biztosítja, a fűtést 3 db inverteres klíma látja el,
- a villanyvezeték rézcsővel kiépített,
- a vízvezetékek cseréje megtörtént,
- minden helyiség felújított,
- a tető zsindellyel borított,
- a lakás belmagassága, 2,8 m,
- a térburkolatok kövesek,
- a lakásban a szobák parkettásak, a közlekedő helyiségek és a vizesblokkok járólaposak,
- az utcafronton több autó parkolására van lehetőség.
A konyhabútor kivitelezése az új tulajdonos feladata!
Az ingatlan elosztása: tágas közlekedőből, önállóan nyíló kettő darab keleti tájolású 15 nm-es és 12 nm-es szobából, illetve egy zuhanyzós fürdőszobából és külön WC helyiségből áll. A keleti tájolású konyhához, az egy légterű a 28 nm-es nappali tartozik, mely nyugati fekvésű. A nappali a 42 nm-es terasszal kapcsolatos.
A családi otthon tájolását tekintve előnyös, mert ablakai mind a négy égtájra nyílnak, ezáltal világos és hangulatos az épület.
Az lakás teher-, per-, jog- és igénymentes, hitelezhető.
Aki ismeri ezt a környéket pontosan tudja, hogy csendes, kertvárosias, fás utcák alkotják, adott a nyugalom, mégis kiváló a közlekedése jellemzi, minden, ami a minden napokhoz szükséges percek alatt elérhető.
Az ingatlanhoz séta közelben több üzlet (Lidl Spar, Aldi, DM, stb.) és általános iskola, óvoda és bölcsőde, illetve rendelőintézet, valamint buszmegálló található. Bármely busszal az M3-as metróvonal 10 perc alatt elérhető. Az M0 autóút negyedórán belül elérhető.
Amennyiben felkeltette érdeklődését, és úgy érzi, hogy a hirdetéssel rátalált ideális otthonára, további információért és megtekintéssel kapcsolatban keressen bizalommal!
Jöjjön el és tekintse meg leendő otthonát, várom megtisztelő hívását!
Regisztrációs szám
DLK025747
Az ingatlan adatai
Értékesités
eladó
Jogi státusz
használt
Jelleg
lakás
Építési mód
tégla
Méret
135 m²
Bruttó méret
135 m²
Belmagasság
280 cm
Lakáson belüli szintszám
3
Tájolás
Kelet
Lépcsőház típusa
zárt lépcsőház
Állapot
Kiváló
Homlokzat állapota
Kiváló
Építés éve
2000
Fürdőszobák száma
1
Fekvés
udvari
Helyiségek
nappali
28 m²
terasz
42 m²
konyha-étkező
17 m²
szoba
14.5 m²
szoba
11.4 m²
fürdőszoba-wc
5.4 m²
wc
2 m²
lépcsőház
3.16 m²
közlekedő
13.1 m²
Joó Krisztina
Hitelszakértő