129,900,000 Ft
334,000 €
- 93m²
- 3 Rooms




























XVIII. KERÜLET BÓKAY-KERT SZÍVÉBEN!
Bókaytelepen kínálok eladásra kettő darab önálló társasházi lakást, mely lakások egy nagyméretű, háromszintes családi házból kerültek igényes kialakítás után eladásra.
Az ingatlan egyben vagy lakásonként külön is megvásárolhatóak az alábbi jellemzőkkel.
XVIII. kerület közkedvelt részén a Bókay kert szomszédságában található az ingatlan, mely parkosított, ősfás kerttel rendelkezik.
Az épület összes nettó alapterülete: 386 nm, bruttó 456 nm.
A ház nem utcafronti, körbejárható családi ház.
Az ingatlan tájolását tekintve előnyös, mert ablakai mind a négy égtájra nyílnak, ezáltal világos és hangulatos az épület.
Az ingatlan teher-, per-, jog- és igénymentes, hitelezhető.
A telek össz mérete 745 nm.
Az ingatlanhoz séta közelben több üzlet (Lidl Spar, Aldi, DM, stb.) és általános iskola, óvoda és bölcsőde, illetve rendelőintézet valamint buszmegálló található. Bármely busszal az M3-as metróvonal 10 perc alatt elérhető. Az M0 autóút negyedórán belül elérhető.
Az ingatlanban kialakításra került egy földszinti, illetve egy első emeleti és a műszakilag hozzá tartozó tetőtéri részből álló önálló lakás.
Mindkét lakás önálló helyrajzi számmal, önálló mérőórákkal, önálló kertrésszel és bejárattal rendelkezik.
Az ingatlanokhoz tartozó telekméret: 372 nm, 372.nm.
A ház szuterén részén egy 106 nm-es pince húzódik, mely külső és belső lépcsőtéren egyaránt megközelíthető.
Vállalkozás, illetve garázs céljára egyaránt alkalmas a szuterén. A pincerész két önálló részre bontott.
Az ingatlan 2000-ben épült. A jelenleg is zajló felújítási munkák várhatóan 2025. évben illetve 2026. év első negyedévében érnek véget.
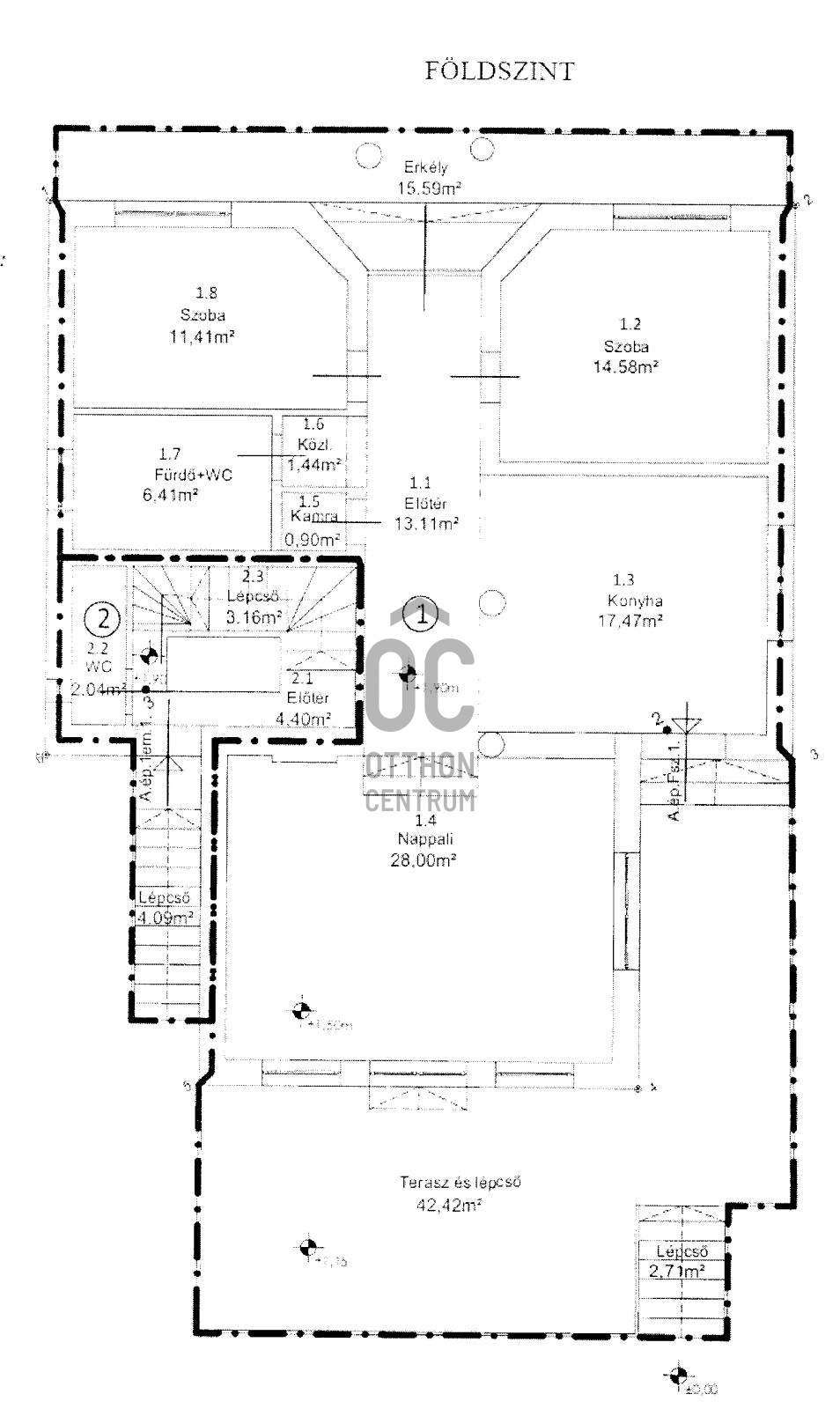
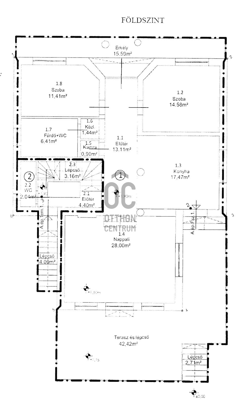
A földszinti lakás hasznos alapterülete: 93 nm, a terasz: 42 nm, és a saját pince rész 33 nm.
Az emeleti lakás hasznos alapterülete: 143 nm, a saját szuterén rész: 73,67 nm.
A telek végében egy 44 nm-es épület található, mely választása szerint akár az Öné is lehet!
Az ingatlan 1 szoba plusz amerikai konyhás nappaliból, kis előtérből és zuhanyzós fürdő WC helységből áll.
A fűtést és a meleg vizet kondenzációs kazán biztosítja.
Az egész épületre jellemző műszaki adatok:
- az épület 15 cm szigeteléssel ellátott ,
- a nyílászárók műanyag típusúak, redőnnyel és szúnyoghálóval ellátva,
- a földszinten a melegvíz ellátását villanybojler biztosítja, a fűtést 3 db inverteres klíma látja el,
- az első emeleten és a tetőtéren kondenzációs kazán biztosítja a fűtést és a meleg vizet, valamint egy napkollektor is üzemel,
- a villanyvezeték rézcsővel kiépített,
- a vízvezetékek cseréje megtörtént,
- minden helyiség felújított,
- a tető zsindellyel borított,
- a földszinti lakás belmagassága, 2,8 m az emeleti lakás belmagassága: 2,6 m,
- a térburkolatok kövesek,
- a lakásokban a szobák parkettásak, a közlekedő helyiségek és a vizesblokkok járólaposak,
- az utcafronton több autó parkolására van lehetőség.
A konyhabútor kivitelezése mindhárom lakásban az új tulajdonos feladata!
A földszinti lakás:
A földszinti lakás tágas közlekedőből, önállóan nyíló kettő darab keleti tájolású 15 nm-es és 12 nm-es szobából, illetve egy zuhanyzós fürdőszobából és külön WC helyiségből áll. A keleti tájolású konyhához, az egy légterű a 28 nm-es nappali tartozik, mely nyugati fekvésű. A nappali a 42 nm-es terasszal kapcsolatos.
Első emeleti és műszakilag hozzá tartozó tetőtéri lakás:
Az első emeleti és tetőtéri lakásban található: az első emeleten a nyugati tájolású 27 nm-es amerikai konyhás nappalin kívül, a három szoba került kialakításra, az első lakószoba 16 nm-es, a második, 15 nm-es a harmadik 12 nm-es melyből kettő keleti és egy déli tájolású. A zuhanyzós fürdőszoba WC-vel együtt nyugati fekvésű, illetve külön kialakításra került egy WC helyiség is. A közlekedő igen tágas, a szobák önállóan nyílnak (egyik sem zsákszoba!). Az emeleti részen két terasz is található, egyik keleti (kisebb és utcafronti), a másik nyugati tájolású (nagyobb és kertre néző), mindkettő kényelmes elrendezésű.
A tetőtérben található két nagyobb és egy kisebb helyiség, melyben, konyha is kialakításra kerül. . A tetőtérben kialakításra került egy zuhanyzós fürdőszoba WC-vel együtt.
Az ingatlan méretét tekintve, alkalmas több generáció összeköltözésére, vállalkozás üzemeltetésére.
Amennyiben felkeltette érdeklődését, és úgy érzi, hogy a hirdetéssel rátalált ideális otthonára, további információért és megtekintéssel kapcsolatban keressen bizalommal!
Jöjjön el és tekintse meg leendő otthonát, várom megtisztelő hívását!
Bókaytelepen kínálok eladásra kettő darab önálló társasházi lakást, mely lakások egy nagyméretű, háromszintes családi házból kerültek igényes kialakítás után eladásra.
Az ingatlan egyben vagy lakásonként külön is megvásárolhatóak az alábbi jellemzőkkel.
XVIII. kerület közkedvelt részén a Bókay kert szomszédságában található az ingatlan, mely parkosított, ősfás kerttel rendelkezik.
Az épület összes nettó alapterülete: 386 nm, bruttó 456 nm.
A ház nem utcafronti, körbejárható családi ház.
Az ingatlan tájolását tekintve előnyös, mert ablakai mind a négy égtájra nyílnak, ezáltal világos és hangulatos az épület.
Az ingatlan teher-, per-, jog- és igénymentes, hitelezhető.
A telek össz mérete 745 nm.
Az ingatlanhoz séta közelben több üzlet (Lidl Spar, Aldi, DM, stb.) és általános iskola, óvoda és bölcsőde, illetve rendelőintézet valamint buszmegálló található. Bármely busszal az M3-as metróvonal 10 perc alatt elérhető. Az M0 autóút negyedórán belül elérhető.
Az ingatlanban kialakításra került egy földszinti, illetve egy első emeleti és a műszakilag hozzá tartozó tetőtéri részből álló önálló lakás.
Mindkét lakás önálló helyrajzi számmal, önálló mérőórákkal, önálló kertrésszel és bejárattal rendelkezik.
Az ingatlanokhoz tartozó telekméret: 372 nm, 372.nm.
A ház szuterén részén egy 106 nm-es pince húzódik, mely külső és belső lépcsőtéren egyaránt megközelíthető.
Vállalkozás, illetve garázs céljára egyaránt alkalmas a szuterén. A pincerész két önálló részre bontott.
Az ingatlan 2000-ben épült. A jelenleg is zajló felújítási munkák várhatóan 2025. évben illetve 2026. év első negyedévében érnek véget.
A földszinti lakás hasznos alapterülete: 93 nm, a terasz: 42 nm, és a saját pince rész 33 nm.
Az emeleti lakás hasznos alapterülete: 143 nm, a saját szuterén rész: 73,67 nm.
A telek végében egy 44 nm-es épület található, mely választása szerint akár az Öné is lehet!
Az ingatlan 1 szoba plusz amerikai konyhás nappaliból, kis előtérből és zuhanyzós fürdő WC helységből áll.
A fűtést és a meleg vizet kondenzációs kazán biztosítja.
Az egész épületre jellemző műszaki adatok:
- az épület 15 cm szigeteléssel ellátott ,
- a nyílászárók műanyag típusúak, redőnnyel és szúnyoghálóval ellátva,
- a földszinten a melegvíz ellátását villanybojler biztosítja, a fűtést 3 db inverteres klíma látja el,
- az első emeleten és a tetőtéren kondenzációs kazán biztosítja a fűtést és a meleg vizet, valamint egy napkollektor is üzemel,
- a villanyvezeték rézcsővel kiépített,
- a vízvezetékek cseréje megtörtént,
- minden helyiség felújított,
- a tető zsindellyel borított,
- a földszinti lakás belmagassága, 2,8 m az emeleti lakás belmagassága: 2,6 m,
- a térburkolatok kövesek,
- a lakásokban a szobák parkettásak, a közlekedő helyiségek és a vizesblokkok járólaposak,
- az utcafronton több autó parkolására van lehetőség.
A konyhabútor kivitelezése mindhárom lakásban az új tulajdonos feladata!
A földszinti lakás:
A földszinti lakás tágas közlekedőből, önállóan nyíló kettő darab keleti tájolású 15 nm-es és 12 nm-es szobából, illetve egy zuhanyzós fürdőszobából és külön WC helyiségből áll. A keleti tájolású konyhához, az egy légterű a 28 nm-es nappali tartozik, mely nyugati fekvésű. A nappali a 42 nm-es terasszal kapcsolatos.
Első emeleti és műszakilag hozzá tartozó tetőtéri lakás:
Az első emeleti és tetőtéri lakásban található: az első emeleten a nyugati tájolású 27 nm-es amerikai konyhás nappalin kívül, a három szoba került kialakításra, az első lakószoba 16 nm-es, a második, 15 nm-es a harmadik 12 nm-es melyből kettő keleti és egy déli tájolású. A zuhanyzós fürdőszoba WC-vel együtt nyugati fekvésű, illetve külön kialakításra került egy WC helyiség is. A közlekedő igen tágas, a szobák önállóan nyílnak (egyik sem zsákszoba!). Az emeleti részen két terasz is található, egyik keleti (kisebb és utcafronti), a másik nyugati tájolású (nagyobb és kertre néző), mindkettő kényelmes elrendezésű.
A tetőtérben található két nagyobb és egy kisebb helyiség, melyben, konyha is kialakításra kerül. . A tetőtérben kialakításra került egy zuhanyzós fürdőszoba WC-vel együtt.
Az ingatlan méretét tekintve, alkalmas több generáció összeköltözésére, vállalkozás üzemeltetésére.
Amennyiben felkeltette érdeklődését, és úgy érzi, hogy a hirdetéssel rátalált ideális otthonára, további információért és megtekintéssel kapcsolatban keressen bizalommal!
Jöjjön el és tekintse meg leendő otthonát, várom megtisztelő hívását!
Registration Number
DLK025747
Property Details
Sales
for sale
Legal Status
used
Character
apartment
Construction Method
brick
Net Size
93 m²
Gross Size
93 m²
Ceiling Height
280 cm
Number of Levels Within the Property
3
Orientation
East
Staircase Type
enclosed staircase
Condition
Excellent
Condition of Facade
Excellent
Year of Construction
2000
Number of Bathrooms
1
Position
courtyard-facing
Rooms
living room
28 m²
terrace
42 m²
open-plan kitchen and dining room
17 m²
room
14.5 m²
room
11.4 m²
bathroom-toilet
5.4 m²
toilet
2 m²
staircase
3.16 m²
corridor
13.1 m²
other
44 m²

Joó Krisztina
Credit Expert