Elérhető Otthon Start hitellel
Eladó újépítésű ikerház,
DHZ016242
Sóskút,
99 900 000 Ft
258 000 €
- 98,9m²
- 4 szoba
MINTHA ÖNÁLLÓ LENNE !
Szolgalmi út nélküli ikerház eladó Sóskút hangulatos részén !
Sóskút keresett részen prémium minőségű ikerház épül. Az épületek dupla fallal és légréssel elválasztva, így semmilyen hang nem zavarhatja a nyugalmát. Teljesen külön megközelíthető, nincs szolgalmi út.
Az ingatlant a 2025-ös év kedvezményes feltételeivel tudja megvásárolni.
CSOK Plusz igényelhető és Illeték kedvezmény egyaránt.
Foglalja le már most leendő otthonát 10%-al. Az építkezés szerkezetkész állapotnál tart.
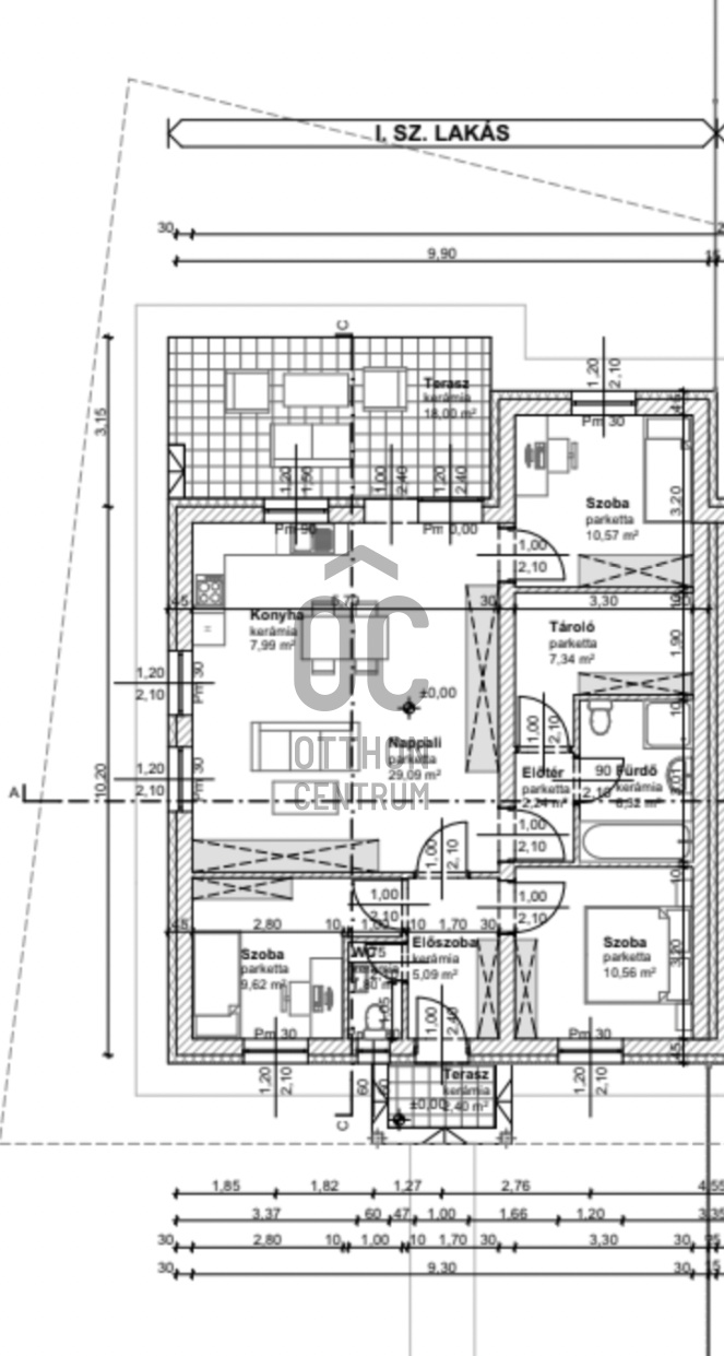
Az ingatlan nettó 90,62 m2 + 15 m2-es terasz és saját 443 m2 kertkapcsolattal. A helyiségek napfényesek, köszönhetően a jó tájolásnak és a jó méretű egyedi nyílászáróknak.
Elosztását tekintve:
- Előszoba
- 3 jó méretű hálószoba- Gardrób/Tároló
- Tágas amerikai konyhás nappali
- Fürdőszoba
- Külön mellékhelyiség
- Terasz
- kb. 443 m2-es saját telek terület
EXTRÁK:
- Elektromos alumínium redőnyök barna színben
Műszaki adatok:
- 30-as Porotherm tégla, 10 cm Ytong válaszfalak
- 15 cm grafitos homlokzati szigetelés
- Hőszivattyús fűtés
- Minden helyiségben padlófűtés
- Betoncserép
- 3 rétegű 6 légkamrás nyílászárók, kívül barna kivitelben
- 2 db autónak kocsibeálló
- Riasztó előkészítése
- Szaniterek
- Hideg/meleg burkolatok ( 7000 Ft/m2 meleg: 7000 Ft/ m2 )
- Beltéri ajtók
- Bejárati ajtó
Ezek mind kiemelkedő minőségben és az átlagnál magasabb áron választhatóak. Árlista tőlem kérhető.Az építkezés megtekintése után minden a házzal kapcsolatos dokumentáció rendelkezésre áll.
Megbízható kivitelezés, rugalmasság.
Környék rendezett, minden perceken belül elérhető. Iskola, óvoda, bevásárlási lehetőségek, M7 autópálya.
Várható átadás: 2026 Január
További információkért hívjon bizalommal.
Szolgalmi út nélküli ikerház eladó Sóskút hangulatos részén !
Sóskút keresett részen prémium minőségű ikerház épül. Az épületek dupla fallal és légréssel elválasztva, így semmilyen hang nem zavarhatja a nyugalmát. Teljesen külön megközelíthető, nincs szolgalmi út.
Az ingatlant a 2025-ös év kedvezményes feltételeivel tudja megvásárolni.
CSOK Plusz igényelhető és Illeték kedvezmény egyaránt.
Foglalja le már most leendő otthonát 10%-al. Az építkezés szerkezetkész állapotnál tart.
Az ingatlan nettó 90,62 m2 + 15 m2-es terasz és saját 443 m2 kertkapcsolattal. A helyiségek napfényesek, köszönhetően a jó tájolásnak és a jó méretű egyedi nyílászáróknak.
Elosztását tekintve:
- Előszoba
- 3 jó méretű hálószoba- Gardrób/Tároló
- Tágas amerikai konyhás nappali
- Fürdőszoba
- Külön mellékhelyiség
- Terasz
- kb. 443 m2-es saját telek terület
EXTRÁK:
- Elektromos alumínium redőnyök barna színben
Műszaki adatok:
- 30-as Porotherm tégla, 10 cm Ytong válaszfalak
- 15 cm grafitos homlokzati szigetelés
- Hőszivattyús fűtés
- Minden helyiségben padlófűtés
- Betoncserép
- 3 rétegű 6 légkamrás nyílászárók, kívül barna kivitelben
- 2 db autónak kocsibeálló
- Riasztó előkészítése
- Szaniterek
- Hideg/meleg burkolatok ( 7000 Ft/m2 meleg: 7000 Ft/ m2 )
- Beltéri ajtók
- Bejárati ajtó
Ezek mind kiemelkedő minőségben és az átlagnál magasabb áron választhatóak. Árlista tőlem kérhető.Az építkezés megtekintése után minden a házzal kapcsolatos dokumentáció rendelkezésre áll.
Megbízható kivitelezés, rugalmasság.
Környék rendezett, minden perceken belül elérhető. Iskola, óvoda, bevásárlási lehetőségek, M7 autópálya.
Várható átadás: 2026 Január
További információkért hívjon bizalommal.
Regisztrációs szám
DHZ016242
Az ingatlan adatai
Értékesités
eladó
Jogi státusz
új
Jelleg
ház
Építési mód
tégla
Méret
98,9 m²
Bruttó méret
98,9 m²
Telek méret
443 m²
Terasz / erkély mérete
15 m²
Fűtés
egyéb
Lakáson belüli szintszám
1
Tájolás
Dél-nyugat
Állapot
Jó
Homlokzat állapota
Jó
Építés éve
2025
Fürdőszobák száma
1
Fekvés
udvari
Víz
Van
Villany
Van
Csatorna
Van
Helyiségek
előszoba
5.09 m²
wc
1.8 m²
szoba
9.62 m²
közlekedő
2.24 m²
gardrób
7.34 m²
szoba
10.57 m²
szoba
10.56 m²
konyha
7.99 m²
nappali
29.09 m²
terasz
15 m²
Bitó István
Hitelszakértő