For sale new construction semi-detached house, U0048908
Törökbálint, Tükörhegy

329,000,000 Ft

862,000 €

  • 168m²
  • 5 Rooms

Discover your dream home in the heart of Törökbálint – a 5-room new house awaits you!

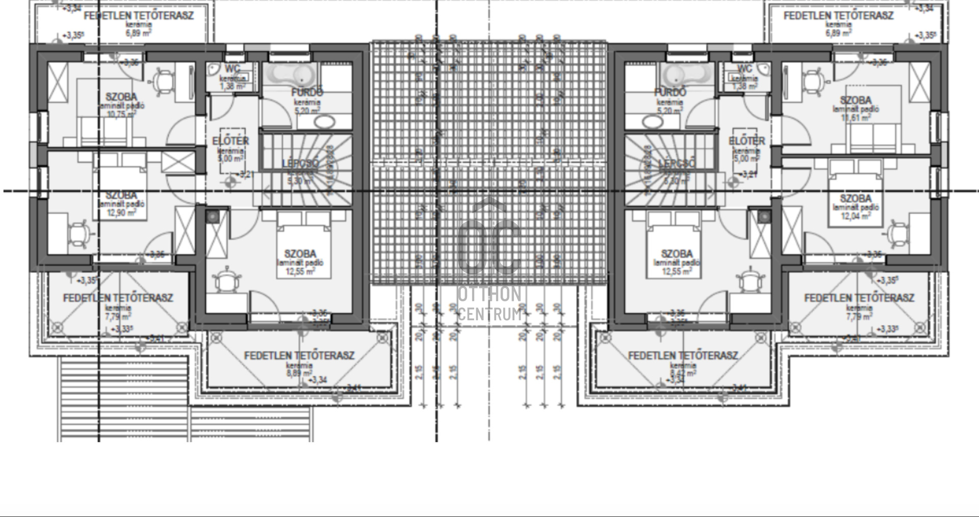
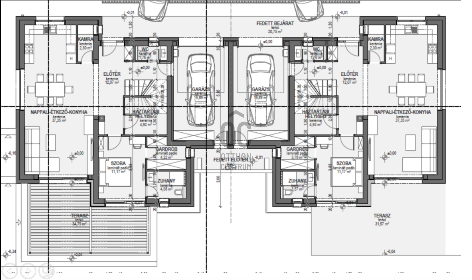
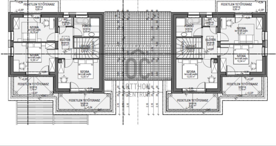
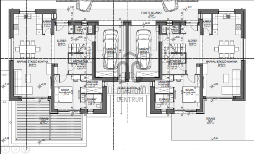
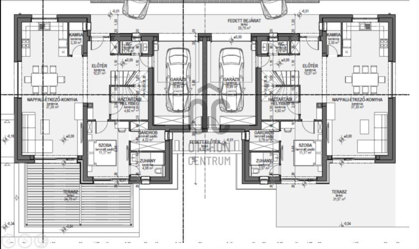
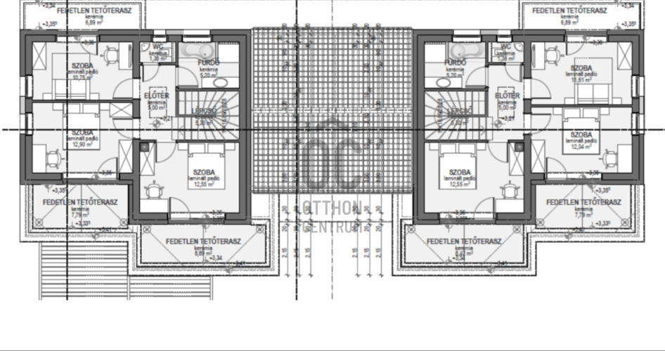
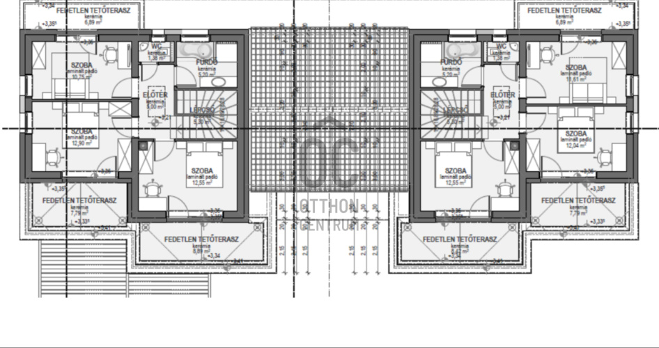
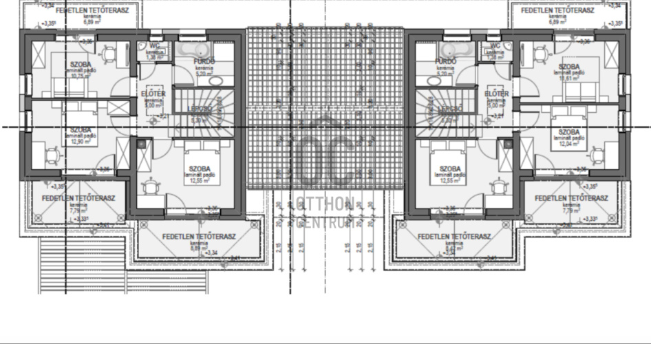
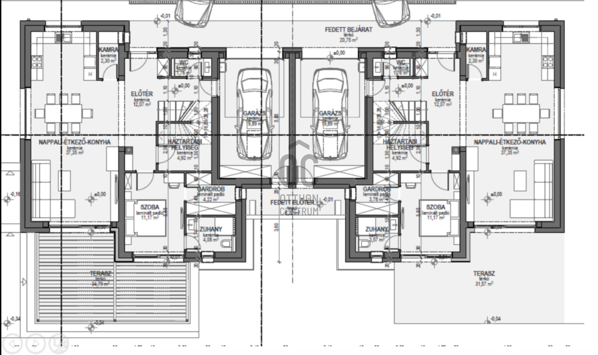
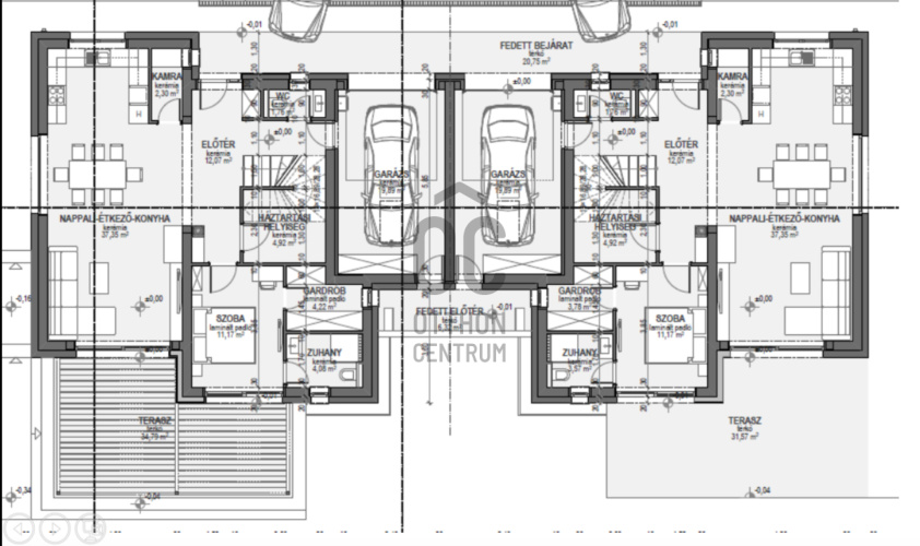
**DREAM HOME** In the most exclusive private street of Törökbálint ✨ Premium quality, panoramic, completely separate semi-detached house – ready to move in If you are looking for a modern, carefully designed home just a few minutes from Budapest, in a green environment — then this house is being built for you! Not a base price — includes all listed amenities! Land area: 648 m² with a private, intimate garden Living space: 150 m² Ground floor terrace: 40 m² Upper roof terrace: 23 m² Attic + storage: 55 m² (insulated, parquet flooring) Delivery: by November 30, 2025 **Exclusive location** In one of the most sought-after, paved, organized, panoramic streets. South orientation = spaces bathed in light ☀️ The visual plans illustrate a possible furnishing. **Room layout** Ground floor – 102.1 m² + 40 m² terrace** • Spacious living room + kitchen + dining area – 37.35 m² • Bedroom + walk-in closet + bathroom • Pantry • Utility room • Guest toilet • Private, gallery garage (19.9 m² + ~15 m² storage) Upper floor – 47.78 m² + 23.1 m² roof terrace • 3 bedrooms — **each with its own terrace** • Bathroom + separate toilet **Technical specifications — Everything is included in the price!** ⭐ ✅ 13 kW heat pump ✅ Underfloor heating + ceiling cooling-heating + fresh air system ✅ Fireplace preparation, chimney, and permit ✅ Shutters / blinds ✅ Solar panel preparation ✅ Legrand Valena Allure switches, premium electrical fittings ✅ External fence + garden prepared ✅ Paved street (private character) ✨ Optional interior finishes: up to HUF 10,000/m² + VAT ✨ Optional interior doors: HUF 100,000/piece + VAT **Why this house?** ✔ Demanding, safe, quiet street ✔ Excellent layout, livable spaces ✔ Premium engineering, energy efficiency ✔ Interior solutions can already be chosen now

Registration Number

U0048908

Property Details

Sales
for sale
Legal Status
new
Character
house
Construction Method
brick
Net Size
168 m²
Gross Size
200 m²
Plot Size
648 m²
Heating
heat pump
Ceiling Height
279 cm
Number of Levels Within the Property
2
Orientation
South
Condition
Excellent
Condition of Facade
Excellent
Neighborhood
quiet, good transport
Year of Construction
2025
Number of Bathrooms
2
Water
Available
Electricity
Available
Sewer
Available

Rooms

entryway
12 m²
open-plan kitchen and living room
37.35 m²
bedroom
11.17 m²
bathroom
3.57 m²
garage
19.9 m²
bedroom
10 m²
bedroom
12.04 m²
Bitó István
Bitó István

Credit Expert

From Our Office Listings - Budaörs - Templom tér

for sale semi-detached house

Index image
32

for sale new construction semi-detached house

Index image
data_sheet.details.realestate.section.main.otthonstart_flag.label
5

for sale new construction semi-detached house

Index image
data_sheet.details.realestate.section.main.otthonstart_flag.label
6

for rent apartment

Index image
11

for sale apartment

Index image
24

for sale family house

Index image
14

for sale apartment

Index image
17

for sale family house

Index image
25

for sale new construction family house

Index image
11