For sale commercial property, UZ019164
Törökbálint

333,000,000 Ft

862,000 €

  • 352.9m²
Splitting Contract

Discover the business opportunities in Törökbálint – an ideal property is waiting for you!

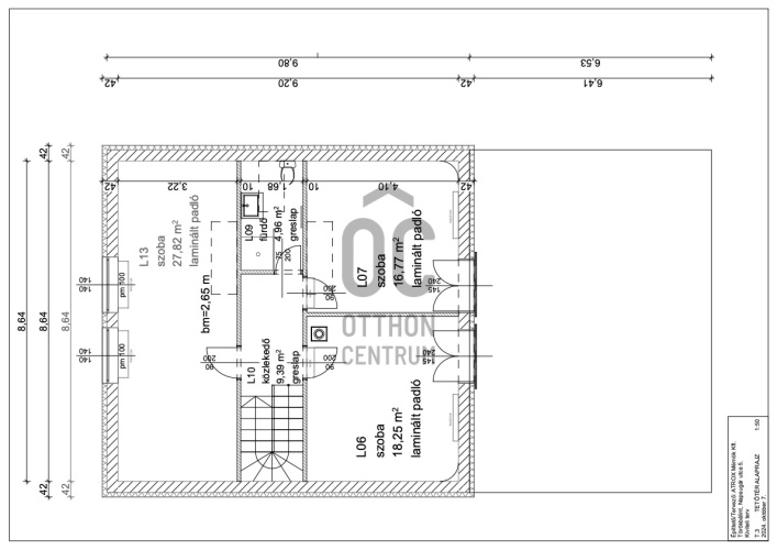
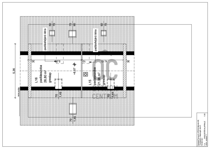
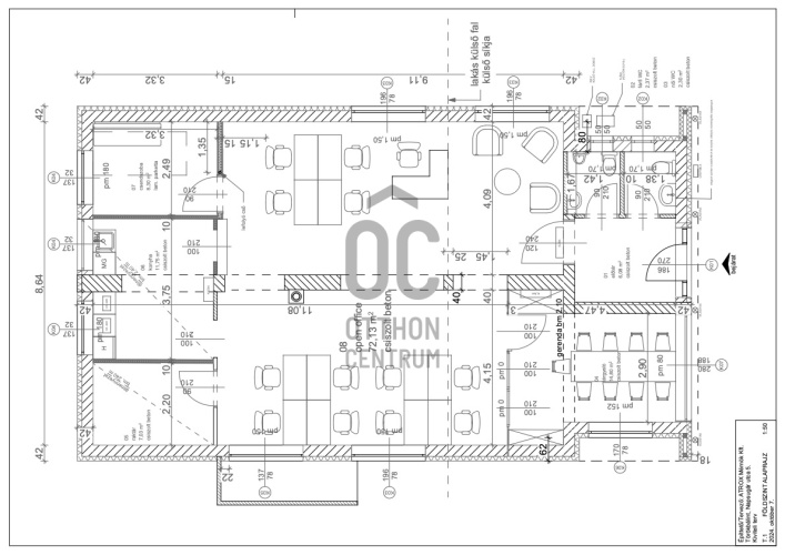
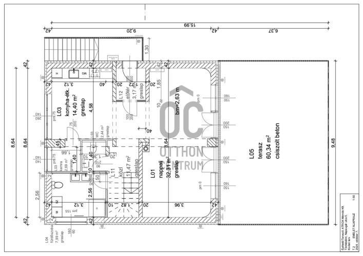
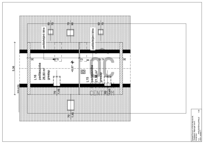
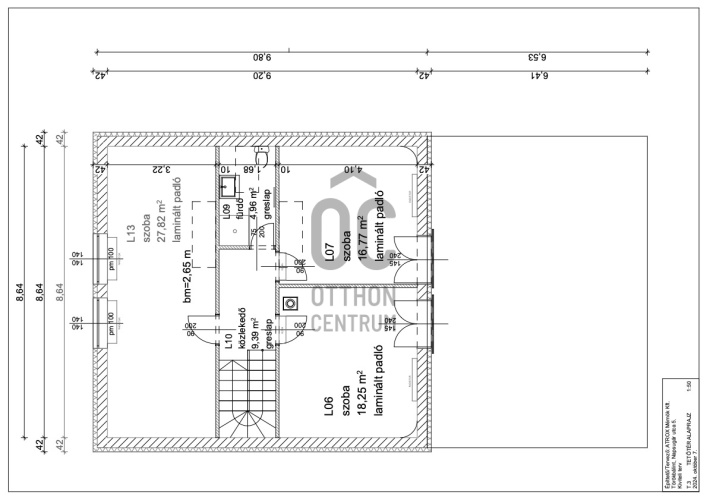
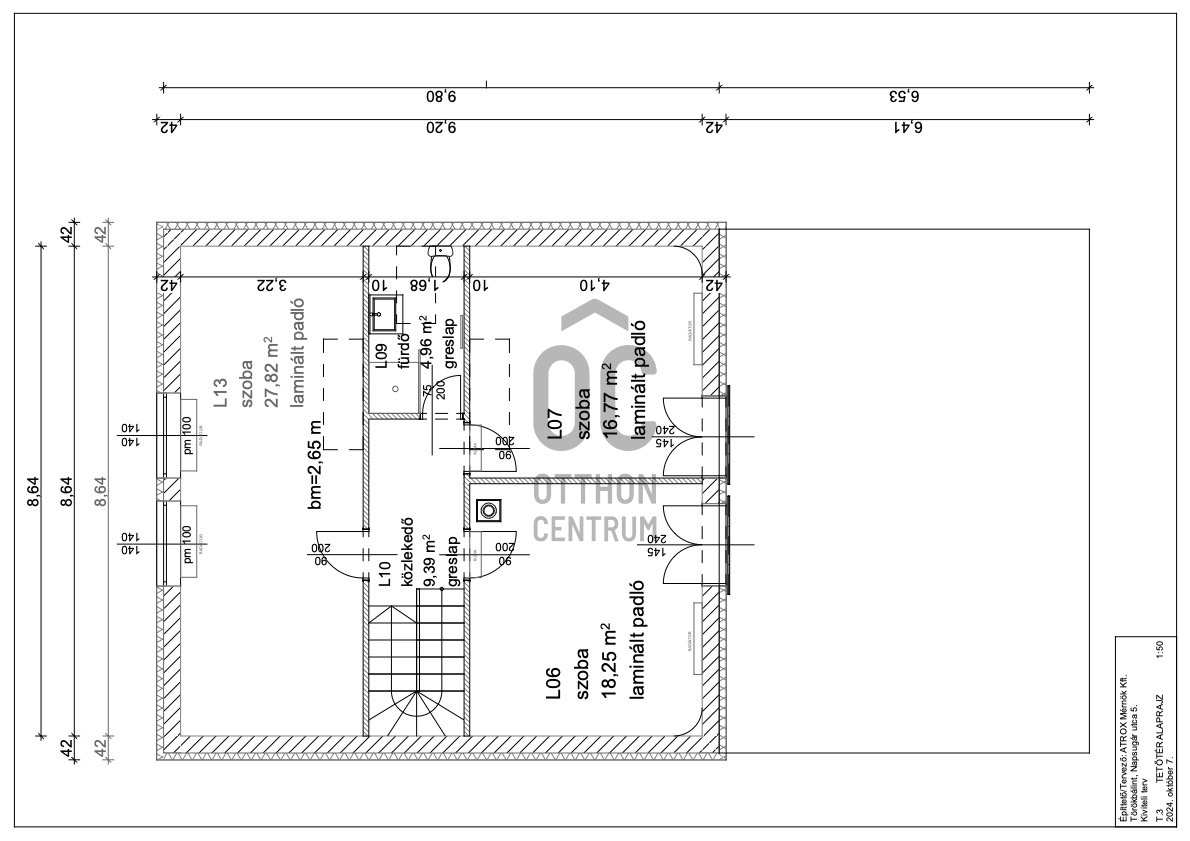
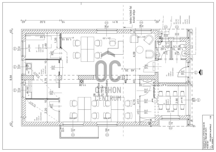
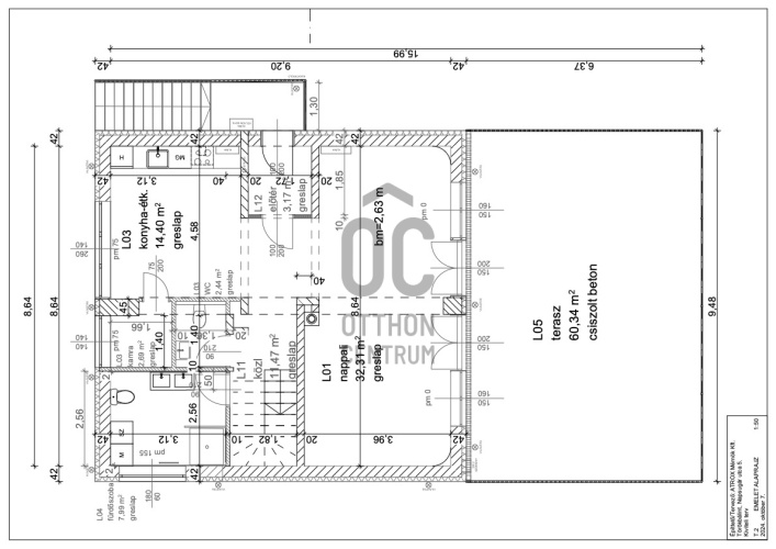
We are now offering you an exceptional business opportunity that is not just a property but also an investment opportunity. Our property, located in the heart of Pest County in Törökbálint, is a freshly renovated, exclusive office and movement studio, making it an ideal choice for those seeking a business property. The property has a floor area of 352.93 square meters, while the plot size is 541 square meters, providing ample space for the realization of creative ideas. The terrace measures 60.34 square meters, suitable not only for outdoor relaxation but also for hosting various events. The condition of the property is excellent, so you won’t have to worry about renovation costs. Its current function allows it to operate as a showroom or office, but the potential functions cover a wide spectrum, easily adapting to future needs. The characteristics of the area are outstanding: Törökbálint is a dynamically developing municipality offering numerous business opportunities. Thanks to the transportation hubs near the property, the rest of the city is easily accessible, making logistics favorable as well. A wide range of public transportation options ensures that clients and employees can easily reach the property, whether by car or public transport. The area is safe and quiet, creating an ideal environment for business activities. Nearby shops, restaurants, and services provide additional convenience, making the property not just a workplace but also a community space where business relationships can be easily established. This property is not just a place to work; it is an opportunity to partake in the continuous development of the region. If you are looking for an investment opportunity that will yield returns in the long term, then this property is the perfect choice. Please do not hesitate to reach out with confidence and ask your questions, as we are happy to assist you in making your decision. Your interest in the property and any potential questions you may have are important to us, and we are eager to share every detail with you.

Registration Number

UZ019164

Property Details

Sales
for sale
Legal Status
used
Character
commercial
Type of Business Property
entire building
Construction Method
brick
Net Size
352.9 m²
Plot Size
541 m²
Size of Terrace / Balcony
60.3 m²
Above-Ground Net Size
352 m²
Ceiling Height
263 cm
Number of Levels Within the Property
4
Condition
Excellent
Condition of Facade
Excellent
Water
Available
Gas
Available
Electricity
Available
Sewer
Available

 

Possible Functions
hospitality unit, office, office and showroom or shop, guesthouse, hostel
Visibility
Easily visible from busy main road
Accessibility
Entrance from busy main road
Utilization
rented out
Monthly Rental Fee
1750000

From Our Office Listings - IX. kerület - Ráday utca

for sale commercial property

Index image
25

for sale new construction apartment

Index image
17

for sale family house

Index image
24

for sale commercial property

Index image
34

for sale commercial property

Index image
21

for sale family house

Index image
10

for sale plot

Index image
5

for sale family house

Index image
data_sheet.details.realestate.section.main.otthonstart_flag.label
24

for sale row house

Index image
data_sheet.details.realestate.section.main.otthonstart_flag.label
24

for sale new construction family house

Index image
29