200,000,000 Ft
515,000 €
- 245m²















Ahol a minőség találkozik a lehetőséggel
Egyedülálló vendéglátóipari lehetőség Velencén – cukrászda és külön lakás eladó
Főbb paraméterek:
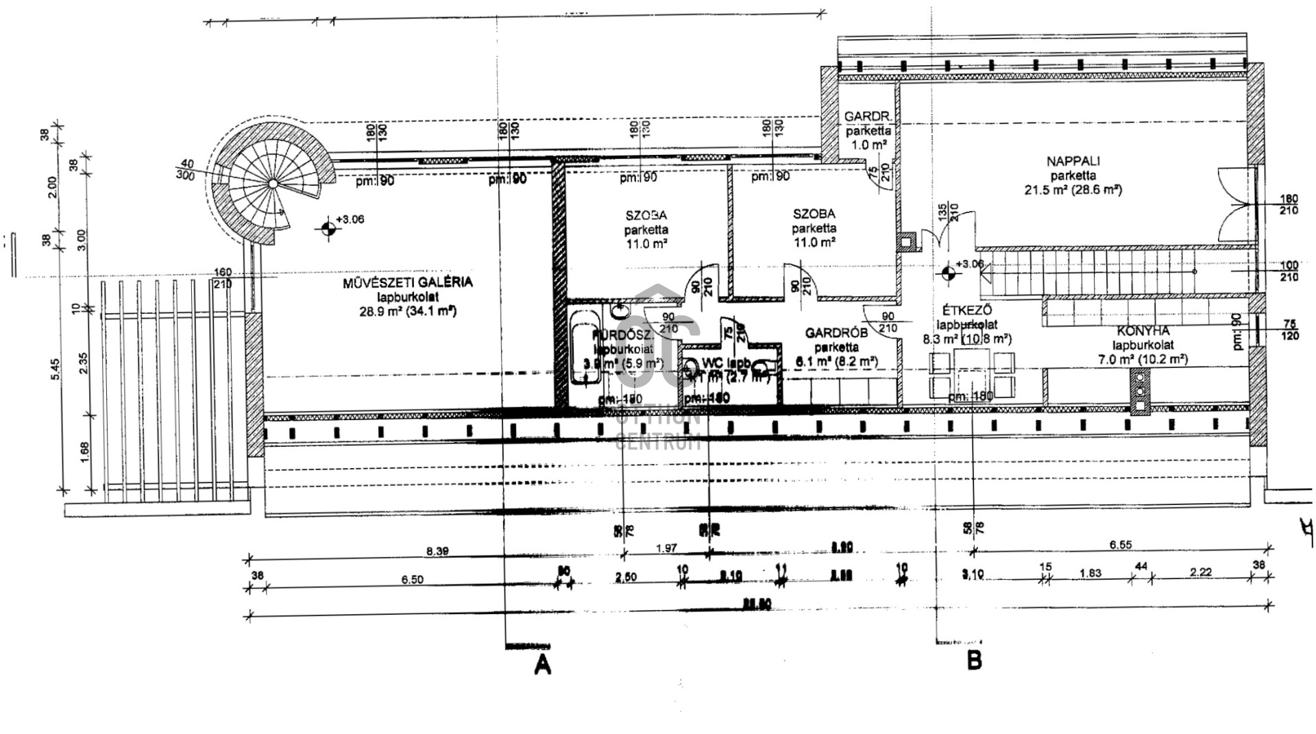
• Teljes alapterület: 245 m²
◦ Vendéglátó egység: 160 m² (üzlettér, műhely, kamra, tároló, iroda, öltöző, zuhanyzó)
◦ Külön bejáratú lakás az emeleten: 85 m² (nappali, konyha-étkező, 2 szoba, fürdőszoba, külön mellékhelyiség)
• Az épület nem átalakított családi ház, hanem célzottan cukrászdának, cukrászműhelynek épült
Egyedülálló üzleti lehetőség:
• A Velencei-tó környékének egyetlen 100%-ban gluténmentes cukrászdája és műhelye
• Napi átlagosan 100-150 vásárló
• Stabil, egész éves forgalom, nem szezonális működés
• Bejáratott viszonteladói hálózat: 8-10 megbízható partner
• Helyi jómódú törzsvásárlói kör biztosítja a kiszámítható bevételt
• Az ár tartalmazza a teljes professzionális berendezést, 25 millió forint értékben
További előnyök és extrák:
• Saját parkoló 11 autó számára
• Igényes, rendezett kert
• Napelem rendszer: 29,240 kWp kapacitás
• Elektromos autó töltő kiállás
• Fúrt kút, amely ellátja az automata locsolórendszert és a mellékhelyiségek vízellátását
• Külső-belső kamerarendszer, mobilapplikációval vezérelhető
Kinek ajánljuk?
• Vállalkozóknak, akik azonnal működtethető, bejáratott vendéglátó egységet keresnek
• Befektetőknek, akik stabil hozamot biztosító ingatlant vásárolnának
• Cukrászoknak, pékmestereknek, gasztronómiai vállalkozóknak, akik saját műhelyt és üzlethelyiséget keresnek
• Családoknak vagy pároknak, akik a vállalkozás mellett lakhatást is egy helyen szeretnének
Lokáció: Velence, forgalmas főút mellett, kiváló megközelíthetőséggel, az M7-es autópálya lehajtójától mindössze 2 percre autóval.
#VelenceIngatlan #EladóCukrászda #GluténmentesÜzlet #BefektetésVelencén #VendéglátóIngatlan #KézművesCukrászda #VelenceiTó #IngatlanBefektetés #GluténmentesCukrászda #KávézóEladó #ÜzletiLehetőség #EladóIngatlan #Vendéglátás #VállalkozásEladó #GasztroIngatlan
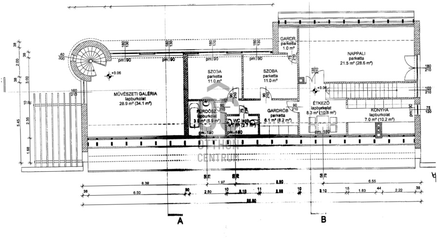
Főbb paraméterek:
• Teljes alapterület: 245 m²
◦ Vendéglátó egység: 160 m² (üzlettér, műhely, kamra, tároló, iroda, öltöző, zuhanyzó)
◦ Külön bejáratú lakás az emeleten: 85 m² (nappali, konyha-étkező, 2 szoba, fürdőszoba, külön mellékhelyiség)
• Az épület nem átalakított családi ház, hanem célzottan cukrászdának, cukrászműhelynek épült
Egyedülálló üzleti lehetőség:
• A Velencei-tó környékének egyetlen 100%-ban gluténmentes cukrászdája és műhelye
• Napi átlagosan 100-150 vásárló
• Stabil, egész éves forgalom, nem szezonális működés
• Bejáratott viszonteladói hálózat: 8-10 megbízható partner
• Helyi jómódú törzsvásárlói kör biztosítja a kiszámítható bevételt
• Az ár tartalmazza a teljes professzionális berendezést, 25 millió forint értékben
További előnyök és extrák:
• Saját parkoló 11 autó számára
• Igényes, rendezett kert
• Napelem rendszer: 29,240 kWp kapacitás
• Elektromos autó töltő kiállás
• Fúrt kút, amely ellátja az automata locsolórendszert és a mellékhelyiségek vízellátását
• Külső-belső kamerarendszer, mobilapplikációval vezérelhető
Kinek ajánljuk?
• Vállalkozóknak, akik azonnal működtethető, bejáratott vendéglátó egységet keresnek
• Befektetőknek, akik stabil hozamot biztosító ingatlant vásárolnának
• Cukrászoknak, pékmestereknek, gasztronómiai vállalkozóknak, akik saját műhelyt és üzlethelyiséget keresnek
• Családoknak vagy pároknak, akik a vállalkozás mellett lakhatást is egy helyen szeretnének
Lokáció: Velence, forgalmas főút mellett, kiváló megközelíthetőséggel, az M7-es autópálya lehajtójától mindössze 2 percre autóval.
#VelenceIngatlan #EladóCukrászda #GluténmentesÜzlet #BefektetésVelencén #VendéglátóIngatlan #KézművesCukrászda #VelenceiTó #IngatlanBefektetés #GluténmentesCukrászda #KávézóEladó #ÜzletiLehetőség #EladóIngatlan #Vendéglátás #VállalkozásEladó #GasztroIngatlan
Registration Number
UZ018901
Property Details
Sales
for sale
Legal Status
used
Character
commercial
Type of Business Property
entire building
Construction Method
brick
Net Size
245 m²
Plot Size
805 m²
Above-Ground Net Size
245 m²
Heating
Gas circulator
Ceiling Height
262 cm
Number of Levels Within the Property
2
View
city view
Condition
Excellent
Condition of Facade
Excellent
Year of Construction
2007
Water
Available
Gas
Available
Electricity
Available
Sewer
Available
Distance to Waterfront
500 meters
Possible Functions
retail, hospitality unit, office, office and showroom or shop, office and warehouse, showroom, guesthouse, hostel, healthcare center, educational center, rental building
Visibility
Easily visible from busy main road
Accessibility
Entrance from high foot traffic street
Utilization
owner-occupied

Leitner-Paraidi Beáta Tímea
Credit Expert