159,000,000 Ft
409,000 €
- 806m²









Móricz Zsigmond körtérnél 809 nm nagyságú kereskedemi ingatlan eladó!
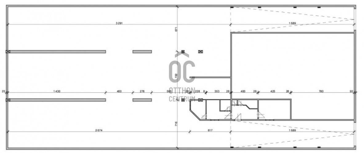
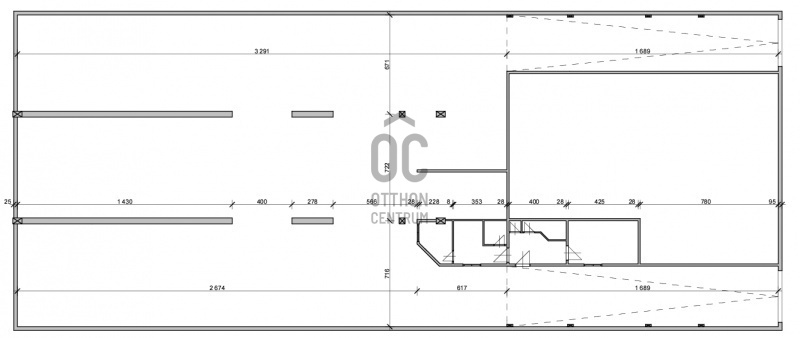
Budapest egyik legnagyobb forgalmú közlekedési csomópontjánál a Móricz Zsigmond körtérnél 809 nm nagyságú kereskedelmi ingatlan eladó.
Az 1942-43 épült ingatlan alagsorában, belső udvarában elhelyezkedő ingatlan két önálló bejárattal rendelkezik megkönnyítve a ki és behajtást.
A 809 nm területből a lehajtókat és a szociális részeket leszámítva 600nm egybefüggő terület állrendelkezésre ahol szinte bármilyen felhasználás elképzelhető.
Az ingatlan azonnal használható azonban a födémszerkezet és a kiszolgáló helyiségek felújításra szorulnak.
Közös költség 90.000Ft rezsi átlag 30.000Ft /hó
Ideális választás lehet amennyiben nagy alapterületű, központi helyen elhelyezkedő, gépkocsi beállóval is rendelkező ingatlanra van szüksége.
Az 1942-43 épült ingatlan alagsorában, belső udvarában elhelyezkedő ingatlan két önálló bejárattal rendelkezik megkönnyítve a ki és behajtást.
A 809 nm területből a lehajtókat és a szociális részeket leszámítva 600nm egybefüggő terület állrendelkezésre ahol szinte bármilyen felhasználás elképzelhető.
Az ingatlan azonnal használható azonban a födémszerkezet és a kiszolgáló helyiségek felújításra szorulnak.
Közös költség 90.000Ft rezsi átlag 30.000Ft /hó
Ideális választás lehet amennyiben nagy alapterületű, központi helyen elhelyezkedő, gépkocsi beállóval is rendelkező ingatlanra van szüksége.
Registration Number
UZ018818
Property Details
Sales
for sale
Legal Status
used
Character
commercial
Type of Business Property
part of building
Construction Method
brick
Net Size
806 m²
Above-Ground Net Size
806 m²
Ceiling Height
380 cm
Condition
To be renovated
Condition of Facade
Good
Condition of Staircase
Good
Water
Available
Electricity
Available
Sewer
Available
Utilization
owner-occupied

Vitéz Kornél
Credit Expert