125 000 000 Ft
321 000 €
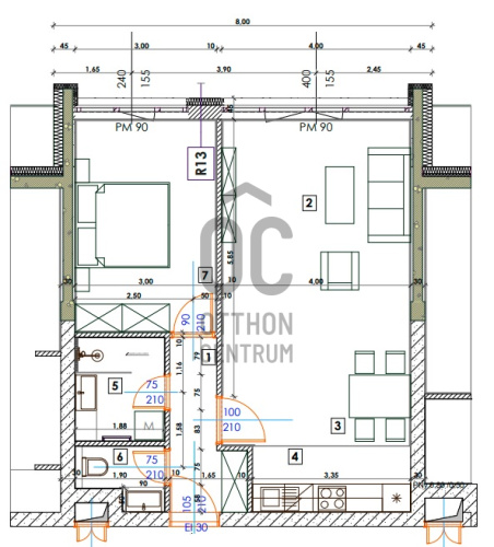
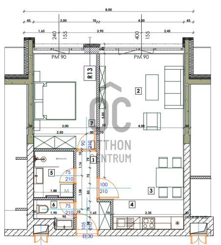
- 57m²
- 2 szoba
- 4. emelet



















Új ! ÚJ ! Új! MÉG SENKI ÁLTAL NEM LAKOTT, 2021-ben átadott 2 szobás lakás eladó, Kissvábhegyen, központi, frekventált utcában, igényes, PRÉMIUM burkolatokkal, PRÉMIUM bútorokkal, háztartási gépekkel és PRÉMIUM háztartási eszközökkel teljes körűen felszerelve
- M2 Metró, fonódó villamoshálózat, busz vonalak, pár perc alatt elérhetők, Városmajor Park, uszoda, bevásárlóközpontok, MOM, Mammut közelében
- 5 emeletes liftes épület, 4-ik emeletén belső parkra néző, napfényes 57 nm-es amerikai konyhás lakás
- Geotermikus Stiebel Eltron hőszivattyú által biztosított, mennyezet, hűtés-fűtés, vizes helyiségekben padlófűtés, távolról vezérelhető elektromos hálózat, elektromos redőnyök, szúnyoghálók
- Ablakok belül fa, kivülről aluminium szerkezetűek, 3 rétegű hőszigetelő üvegezéssel, Roto vasalatokkal, ajtók közepén homokfúvott üveggel
- Hideg burkolatok Atlas - keramik prémium termékei, gyönyörű zsályazöld csempe, mozaik betétekkel, Laufen szaniterek, Hangsrohe csaptelepek AEG mosógép
- Konyhabútor, nappaliban szekrénysor, gardróbszekrények, franciaágy minőségi anyagokból egyedileg gyártott
- Konyha beépített Bosch készülékekkel ( hűtőszekrény fagyasztóval, gözölős sütő, mikró, mosogatógép )Blanco csaptelep, Nespresso kávéfőző
- Nappaliban Bo Concept bútorok: gyöngyházfényű kanapé, hozzá illő dohányzó, étkezőasztal, székek, szőnyeg
- Konyha minőségi Tescoma rozsdamentes edényekkel,Villeroy&Boch porcelán étkészlettel, Luigi Bormioli boros, üditős poharakkal és mindennel, ami a főzéshez, tálaláshoz elengedhetetlen, kiváló minőségben
- Energiatakarékos mennyezeti lámpák, fali lámpák, álló lámpa.
MINDEN BERENDEZÉS, FELSZERELÉS ÚJ, AZ INGATLAN ÁRÁBAN EZ JELENTŐS ÉRTÉKET KÉPVISEL !!!!!
Mélygarázsban, minusz 3 szinten kettő darab egymás mellett lévő gk. beálló tartozik a lakáshoz, ahonnan 2 db teherlifttel tudunk feljutni az utca szintjére. Ugyanezen a szinten, a gk. beállók mellett egy 5 nm tároló is tartozik a lakáshoz.
A beállók és a tároló a lakással együtt kötelezően megvásárolandók.
Gk. beálló 13 millió Ft/ db, tároló 3 millió Ft.
Amennyiben Budán, pár éve átadott, kitűnő minőségű épületben, alacsony rezsivel keres azonnal költözhető prémium lakást, prémium berendezéssel, felszereléssel, gk. beállókkal, akár befektetésnek, akár saját részre, várom megtisztelő megkeresését.
Jöjjön nézze meg, a valóság szebb, mint, amit az ajánlásom és fotók vissza tudnak adni..
- M2 Metró, fonódó villamoshálózat, busz vonalak, pár perc alatt elérhetők, Városmajor Park, uszoda, bevásárlóközpontok, MOM, Mammut közelében
- 5 emeletes liftes épület, 4-ik emeletén belső parkra néző, napfényes 57 nm-es amerikai konyhás lakás
- Geotermikus Stiebel Eltron hőszivattyú által biztosított, mennyezet, hűtés-fűtés, vizes helyiségekben padlófűtés, távolról vezérelhető elektromos hálózat, elektromos redőnyök, szúnyoghálók
- Ablakok belül fa, kivülről aluminium szerkezetűek, 3 rétegű hőszigetelő üvegezéssel, Roto vasalatokkal, ajtók közepén homokfúvott üveggel
- Hideg burkolatok Atlas - keramik prémium termékei, gyönyörű zsályazöld csempe, mozaik betétekkel, Laufen szaniterek, Hangsrohe csaptelepek AEG mosógép
- Konyhabútor, nappaliban szekrénysor, gardróbszekrények, franciaágy minőségi anyagokból egyedileg gyártott
- Konyha beépített Bosch készülékekkel ( hűtőszekrény fagyasztóval, gözölős sütő, mikró, mosogatógép )Blanco csaptelep, Nespresso kávéfőző
- Nappaliban Bo Concept bútorok: gyöngyházfényű kanapé, hozzá illő dohányzó, étkezőasztal, székek, szőnyeg
- Konyha minőségi Tescoma rozsdamentes edényekkel,Villeroy&Boch porcelán étkészlettel, Luigi Bormioli boros, üditős poharakkal és mindennel, ami a főzéshez, tálaláshoz elengedhetetlen, kiváló minőségben
- Energiatakarékos mennyezeti lámpák, fali lámpák, álló lámpa.
MINDEN BERENDEZÉS, FELSZERELÉS ÚJ, AZ INGATLAN ÁRÁBAN EZ JELENTŐS ÉRTÉKET KÉPVISEL !!!!!
Mélygarázsban, minusz 3 szinten kettő darab egymás mellett lévő gk. beálló tartozik a lakáshoz, ahonnan 2 db teherlifttel tudunk feljutni az utca szintjére. Ugyanezen a szinten, a gk. beállók mellett egy 5 nm tároló is tartozik a lakáshoz.
A beállók és a tároló a lakással együtt kötelezően megvásárolandók.
Gk. beálló 13 millió Ft/ db, tároló 3 millió Ft.
Amennyiben Budán, pár éve átadott, kitűnő minőségű épületben, alacsony rezsivel keres azonnal költözhető prémium lakást, prémium berendezéssel, felszereléssel, gk. beállókkal, akár befektetésnek, akár saját részre, várom megtisztelő megkeresését.
Jöjjön nézze meg, a valóság szebb, mint, amit az ajánlásom és fotók vissza tudnak adni..
Regisztrációs szám
H508926
Az ingatlan adatai
Értékesités
eladó
Jogi státusz
használt
Jelleg
lakás
Építési mód
tégla
Méret
57 m²
Bruttó méret
57 m²
Fűtés
hőszivattyú
Belmagasság
265 cm
Lakáson belüli szintszám
1
Tájolás
Észak-kelet
Lépcsőház típusa
zárt lépcsőház
Állapot
Kiváló
Homlokzat állapota
Kiváló
Lépcsőház állapota
Kiváló
Építés éve
2020
Fürdőszobák száma
1
Fekvés
kertre néző
Közös költség
41000
Garázs
Kötelezően vásárolandó
Víz
Van
Villany
Van
Csatorna
Van
Lift
van
Tároló
Kötelezően vásárolandó
Helyiségek
nappali-konyha
32 m²
hálószoba
14 m²
fürdőszoba
4 m²
wc-kézmosó
3 m²
közlekedő
5 m²

Vitéz Kornél
Hitelszakértő