583,245,000 Ft
1,500,000 €
- 1,700m²




Logisztikai befektetés Alsónémediben!
Alsónémedi Budapest déli agglomerációjában található. Pest vármegye egyik jelentős logisztikai és ipari központjaként van számontartva. Magyarország legnagyobb és legfejlettebb logisztikai területe az M0-ás autópálya déli szakaszának a vonzáskörzete, hiszen az M0-ás segítségével az ország összes autópályája elérhető Budapest kikerülésével. Az elmúlt években nagy fejlesztések történtek ebben a régióban. Budapest térségében a kisebb gyártóipari-termelő beruházást folytató cégek ezt a térséget preferálják most is. Az itt található Gksz vagy Gip besorolású telkek jellemző ára eléri a 80-100 EUR+ÁFA/m2-t is, tehát az ingatlant alig magasabb áron kínáljuk, mint a telekár.
Az ingatlan egy három helyrajzi számból álló telekegyüttes összességének része. A másik két hrsz-en található ingatlan is eladó.
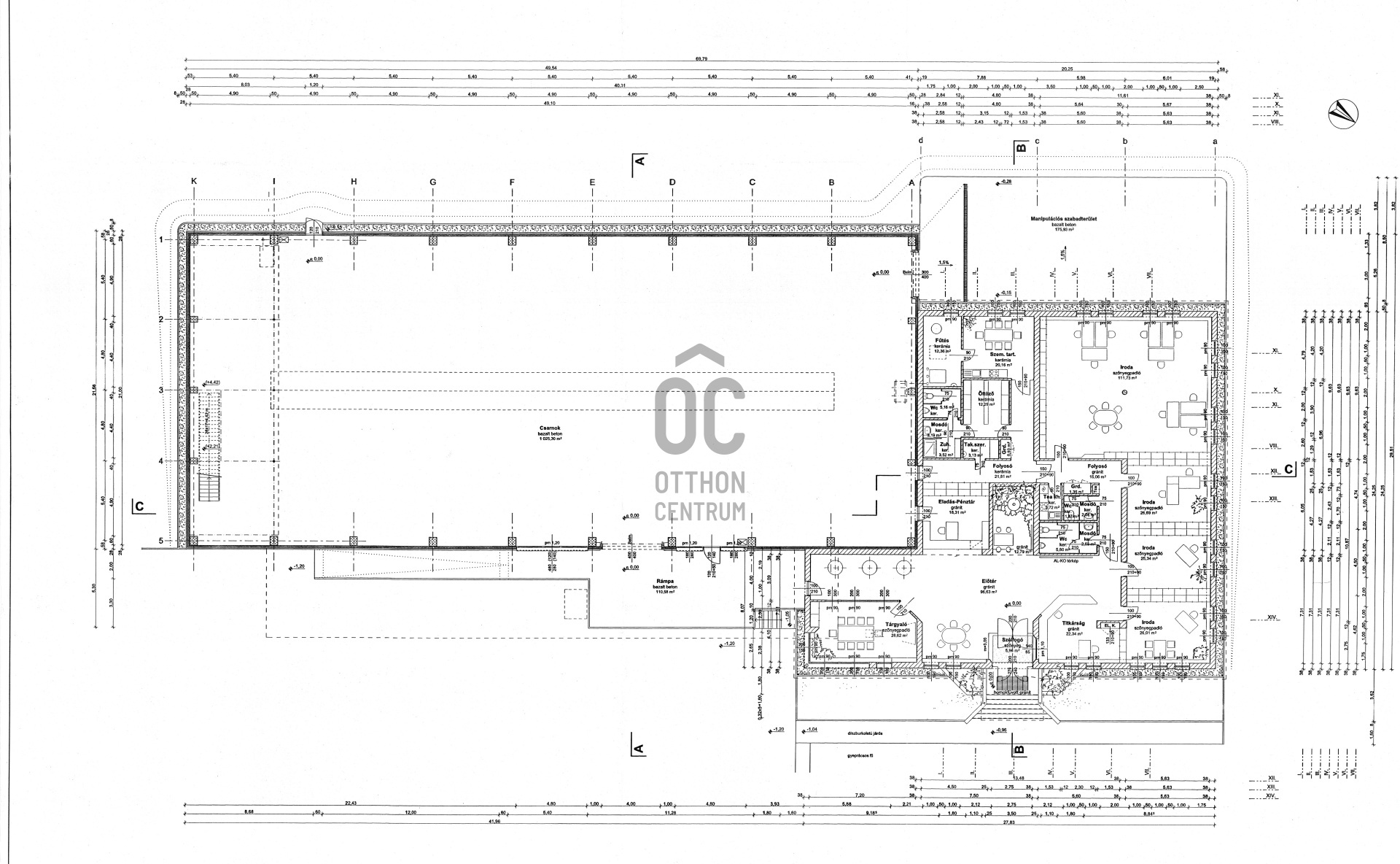
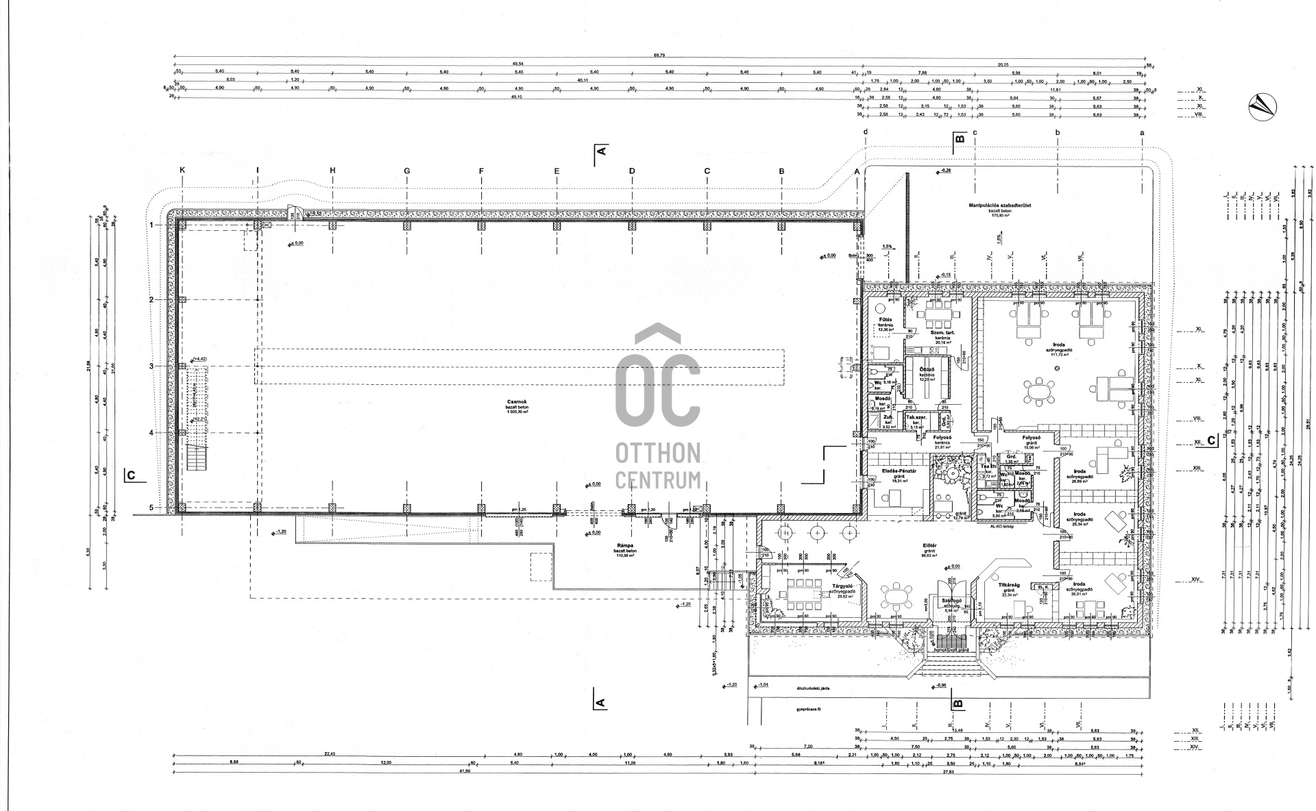
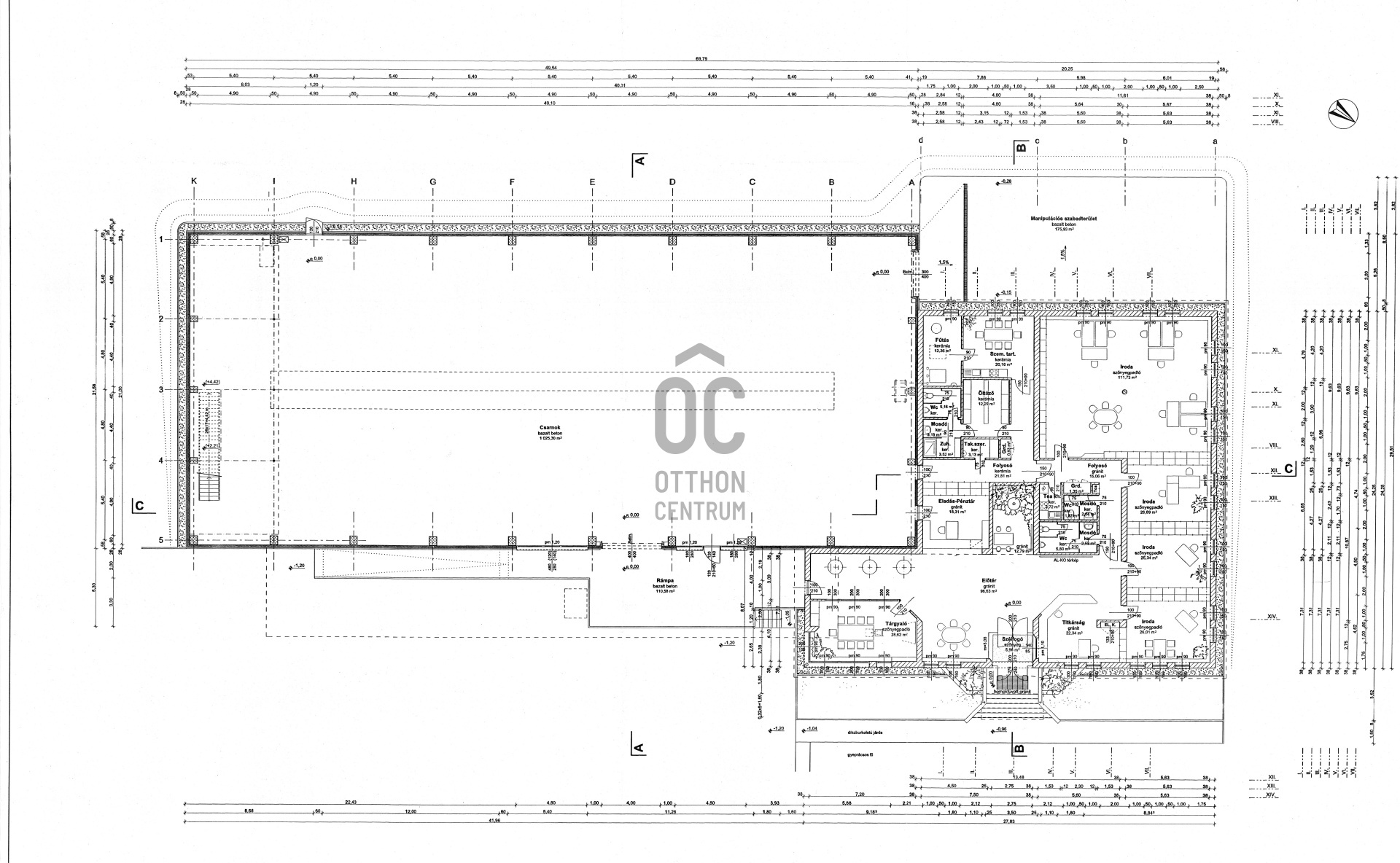
A telken egy nagyjából 5 éve épült modern cégközpont épülete áll. Ez az épület körülbelül 700 m2 irodát és bemutatótermet, valamint egy 1000 m2-es, 8 m belmagasságú modern raktárat foglal magába, amelyek egy szinten helyezkednek el. Az épület esztétikailag és energetikailag korszerű, "A" kategóriás.
Bérleti konstrukció:
Az ingatlan bérbe van adva, de ha a vevő saját használatra vásárolná az ingatlant, akkor megoldható a bérleti szerződés megszüntetése.
Övezeti paraméterek
• Övezeti kód: GKSZ-2-es övezet
• Min teleknagyság 2000 m2
• Beépíthetőség: 45%
• Kötelező előkert: 7 méter
• Legnagyobb épületmagasság: 7,5 méter
• Szintterület-mutató: 1,0 m2/m2
Az ingatlan irányára: 1.500.000 EUR
Bármilyen az ingatlannal kapcsolatos kérdéssel keressen bizalommal!
Az ingatlan egy három helyrajzi számból álló telekegyüttes összességének része. A másik két hrsz-en található ingatlan is eladó.
A telken egy nagyjából 5 éve épült modern cégközpont épülete áll. Ez az épület körülbelül 700 m2 irodát és bemutatótermet, valamint egy 1000 m2-es, 8 m belmagasságú modern raktárat foglal magába, amelyek egy szinten helyezkednek el. Az épület esztétikailag és energetikailag korszerű, "A" kategóriás.
Bérleti konstrukció:
Az ingatlan bérbe van adva, de ha a vevő saját használatra vásárolná az ingatlant, akkor megoldható a bérleti szerződés megszüntetése.
Övezeti paraméterek
• Övezeti kód: GKSZ-2-es övezet
• Min teleknagyság 2000 m2
• Beépíthetőség: 45%
• Kötelező előkert: 7 méter
• Legnagyobb épületmagasság: 7,5 méter
• Szintterület-mutató: 1,0 m2/m2
Az ingatlan irányára: 1.500.000 EUR
Bármilyen az ingatlannal kapcsolatos kérdéssel keressen bizalommal!
Registration Number
UZ018788
Property Details
Sales
for sale
Legal Status
used
Character
commercial
Type of Business Property
entire building
Construction Method
brick
Net Size
1,700 m²
Plot Size
7,572 m²
Above-Ground Net Size
1,700 m²
Ceiling Height
800 cm
Condition
Good
Condition of Facade
Good
Water
Available
Gas
Available
Electricity
Available
Sewer
Available
Possible Functions
office and warehouse
Utilization
vacant
Monthly Rental Fee
145230