48,000,000 Ft
127,000 €
- 139m²
- cellar
Szív utcában az Andrássy út mellett nagy méretű felújitandó, szuterén műhely, üzlet eladó
- Kitűnő közlekedési feltételek mellett, M1 Metro
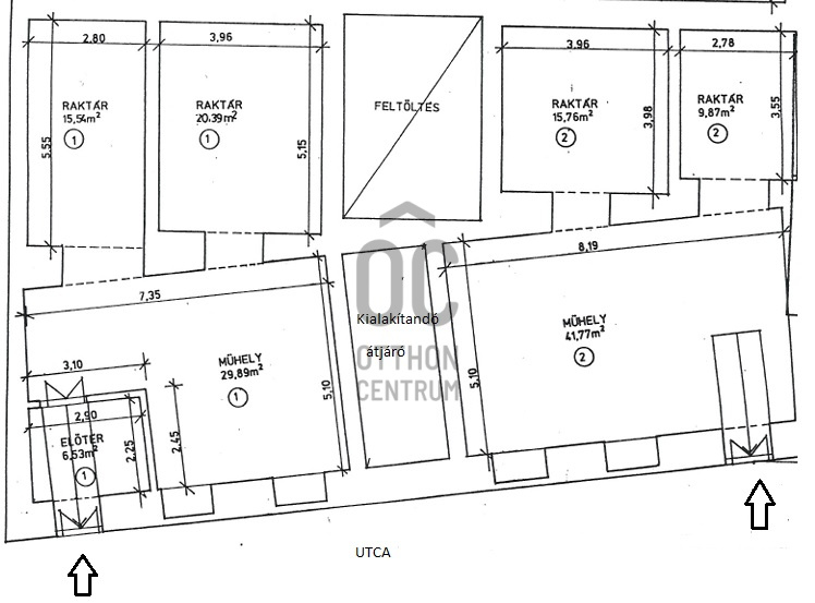
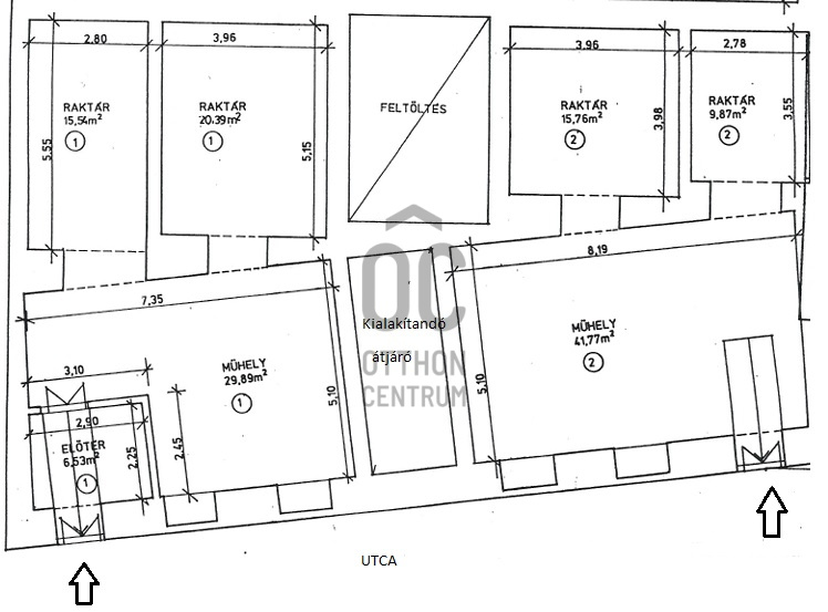
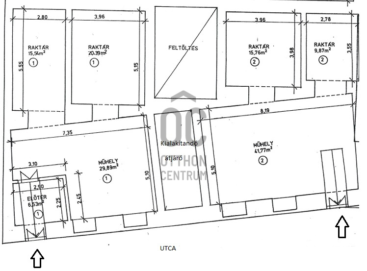
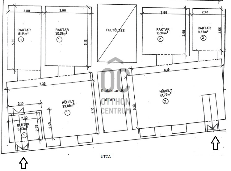
- Nagy méretű, 72 + 67 nm, több helyiségből álló, két helyrajzi számmal rendelkező műhely, mely kis átalakítással egybe nyitható
- Utcáról megközelíthető, két külön bejárattal
- Közművekkel ellátott
- Felújitandó
- Több hasznosításra alkalmas, felújítás esetén üzletnek, kávézónak, cégképviseletnek, bemutatóteremnek, műhelyként hasznosítható
- A társasház tetőterében luxus lakások lesznek kialakítva, vélhetően igény lehet a továbbiakban a társasház részére akár fitnesz teremre, akár bármilyen közösségi térre is kiválóan alkalmas az ingatlan.
Amennyiben a belvárosban, bejárattalközponti helyen keres, több célra alkalmas kitűnő ár-értékarányú nagy alapterületű felújítandó műhelyt, üzlethelyiséget, várom megtisztelő megkeresését.
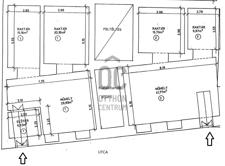
- Nagy méretű, 72 + 67 nm, több helyiségből álló, két helyrajzi számmal rendelkező műhely, mely kis átalakítással egybe nyitható
- Utcáról megközelíthető, két külön bejárattal
- Közművekkel ellátott
- Felújitandó
- Több hasznosításra alkalmas, felújítás esetén üzletnek, kávézónak, cégképviseletnek, bemutatóteremnek, műhelyként hasznosítható
- A társasház tetőterében luxus lakások lesznek kialakítva, vélhetően igény lehet a továbbiakban a társasház részére akár fitnesz teremre, akár bármilyen közösségi térre is kiválóan alkalmas az ingatlan.
Amennyiben a belvárosban, bejárattalközponti helyen keres, több célra alkalmas kitűnő ár-értékarányú nagy alapterületű felújítandó műhelyt, üzlethelyiséget, várom megtisztelő megkeresését.
Registration Number
UZ018706
Property Details
Sales
for sale
Legal Status
used
Character
commercial
Type of Business Property
part of building
Construction Method
brick
Net Size
139 m²
Above-Ground Net Size
139 m²
Ceiling Height
300 cm
View
city view
Condition
To be renovated
Condition of Facade
Average
Condition of Staircase
Average
Year of Construction
1920
Water
Available
Gas
Available
Electricity
Available
Sewer
Available
Elevator
available
Possible Functions
hospitality unit, office, office and warehouse, showroom, showroom and service or warehouse
Visibility
Located on a side street
Accessibility
Entrance from side street
Utilization
vacant
Vitéz Kornél
Credit Expert