180,000,000 Ft
459,000 €
- 700m²









Perfect choice for business purposes! Rental property in Hódmezővásárhely.
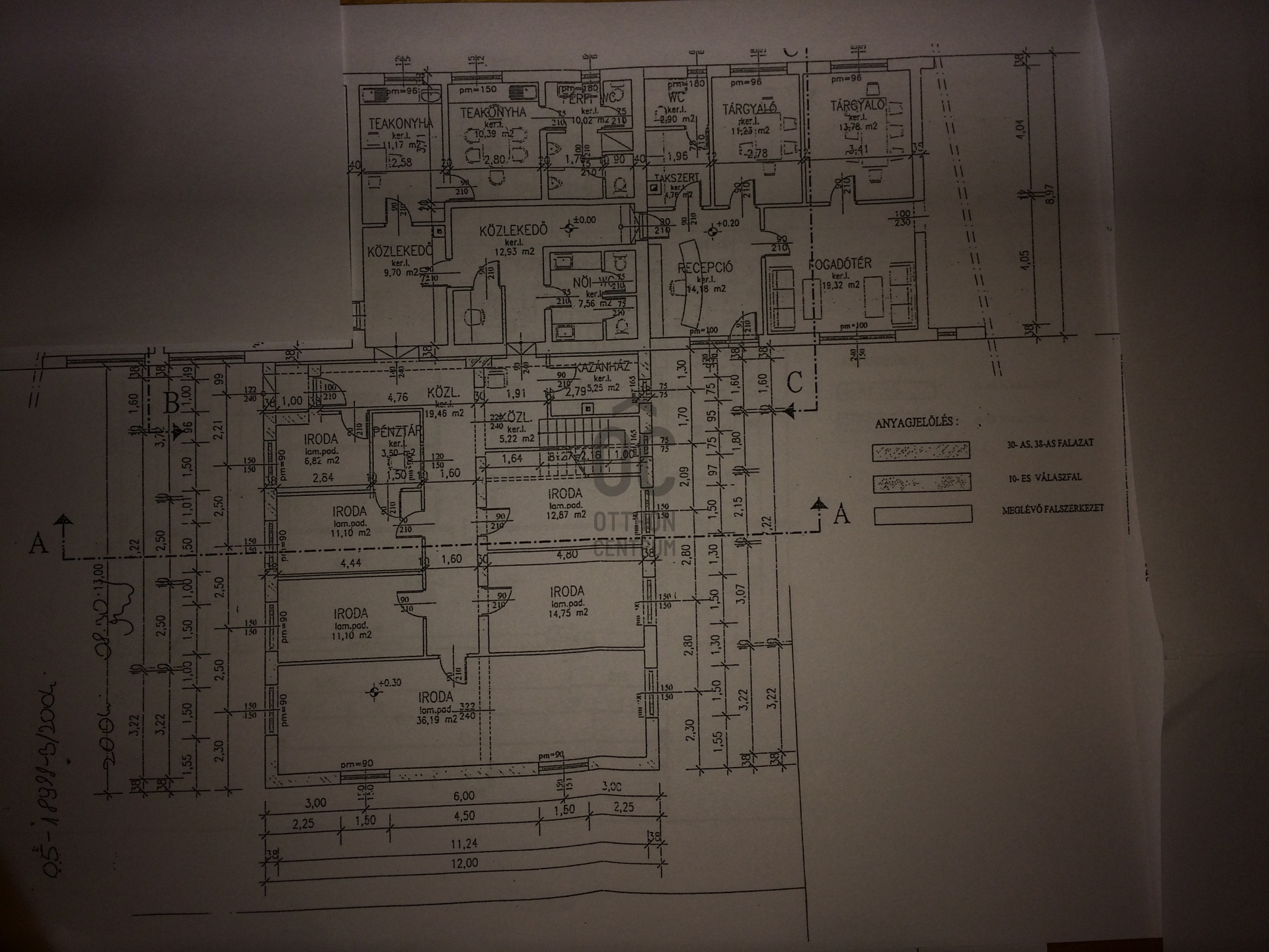
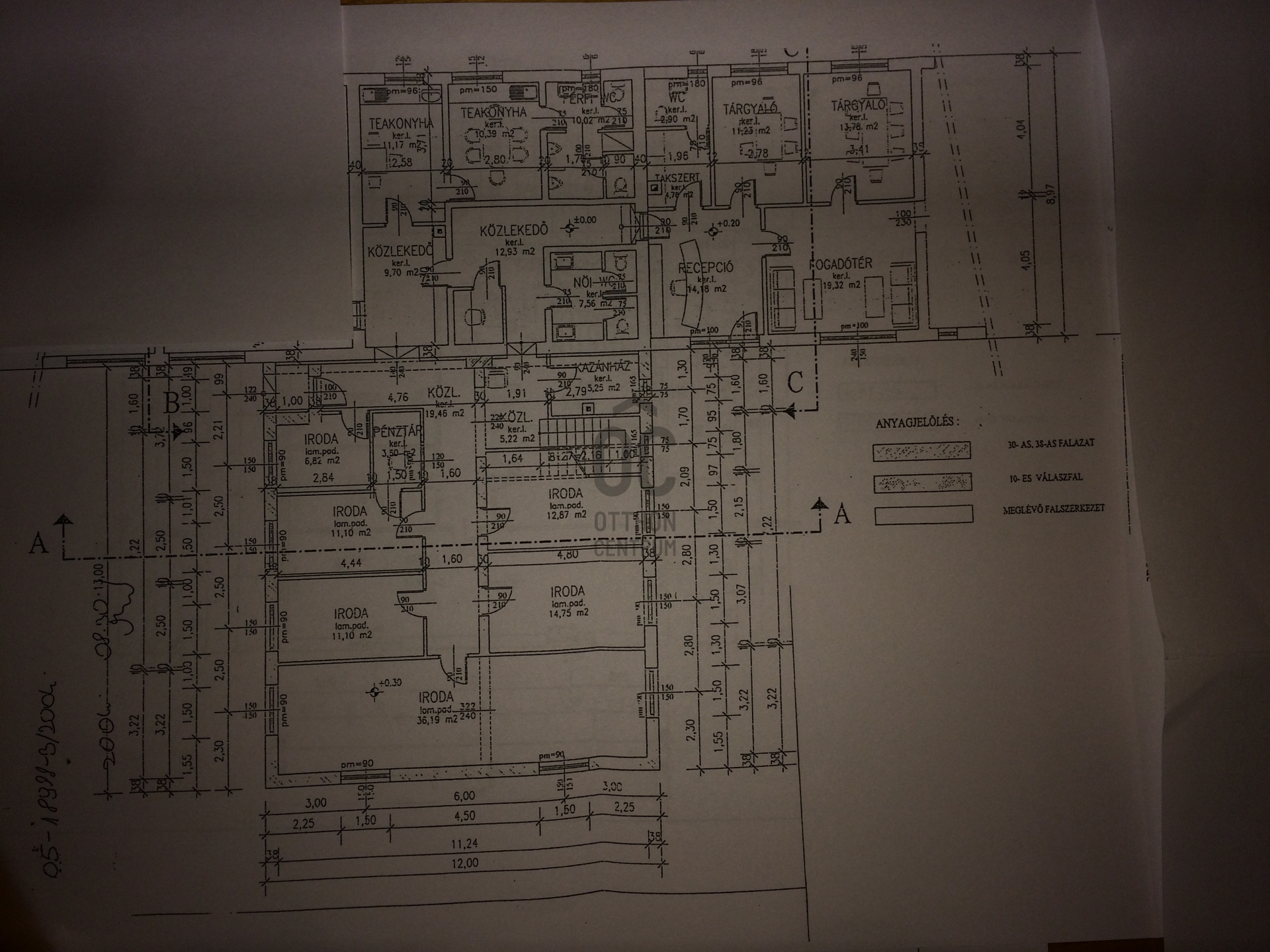
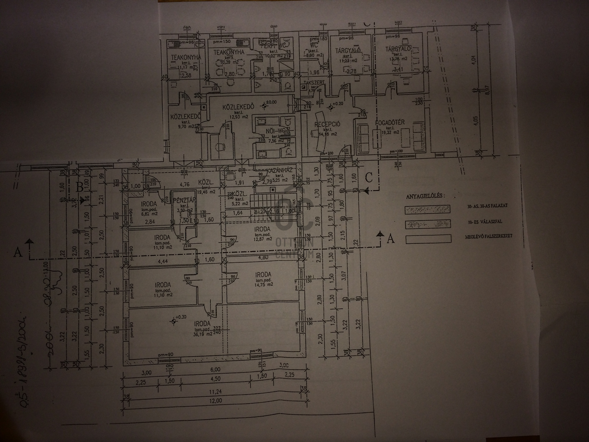
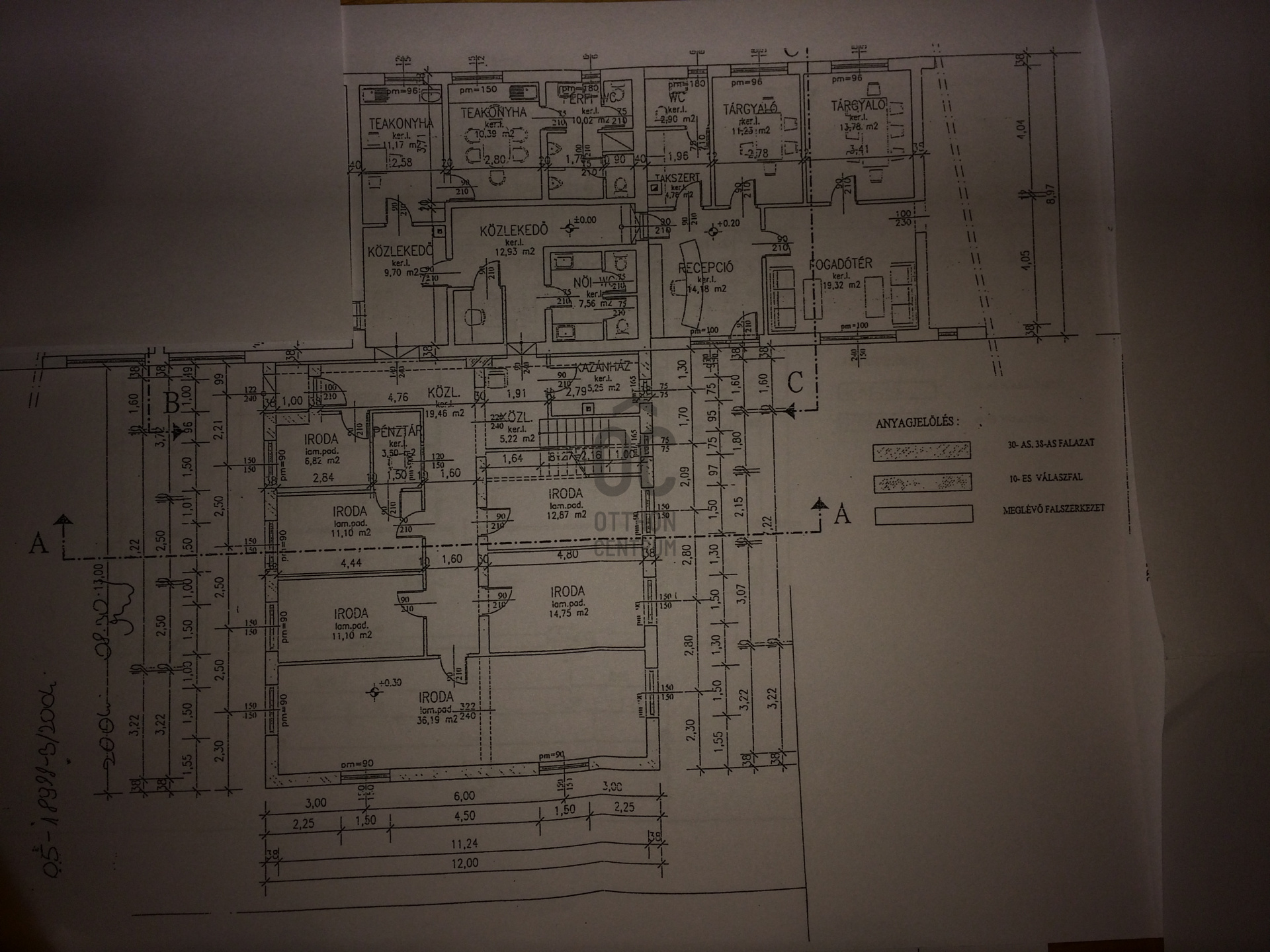
EXCELLENT, LOCATION, INVESTMENT OPPORTUNITY!! For sale in Hódmezővásárhely, in the Industrial Park, a property covering 3000 m2. The multi-story office building features divisible, separately sectionable offices, as well as a 140 m2 office and social facilities accessible from the courtyard. Additionally, the property includes a 1200 m2 warehouse with a clear height of 540 cm and side height of 380 cm, constructed with sandwich panel walls, and equipped with 2 Hörmann entrance gates. The warehouse is suitable for forklift and truck use. There is space in the courtyard for approximately 15 cars to park. Currently, there are tenants in part of the office building and in the 1200 m2 warehouse. (The offices cover an area of 700 m2, and the courtyard-parking area is 900 m2.) Free parking is available in the courtyard. Easily accessible from the main road, with truck parking facilities. The property is also suitable for multiple purposes. The property can be viewed after prior appointment. If you are interested in the property, please feel free to call! #hódmezővásárhely #for sale #industrial property #offices #warehouse #
Registration Number
UZ013202
Property Details
Sales
for sale
Legal Status
used
Character
commercial
Type of Business Property
entire building
Construction Method
brick
Net Size
700 m²
Plot Size
4,200 m²
Above-Ground Net Size
700 m²
Heating
gas boiler
Ceiling Height
300 cm
Number of Levels Within the Property
2
View
Other
Condition
Good
Condition of Facade
Good
Condition of Staircase
Good
Water
Available
Gas
Available
Electricity
Available
Sewer
Available
Possible Functions
office and showroom or shop
Visibility
Easily visible from busy main road
Accessibility
Entrance from busy main road
Utilization
vacant