data_sheet.details.realestate.section.main.otthonstart_flag.label
For sale new construction semi-detached house, U0049262
Siófok, Sóstó

114,900,000 Ft

296,000 €

  • 90.2m²
  • 4 Rooms

Discover your dream home in Siófok Sóstó – a new, spacious 4-room house is waiting for you!

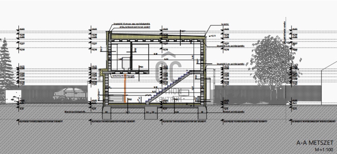
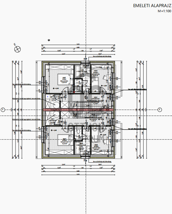
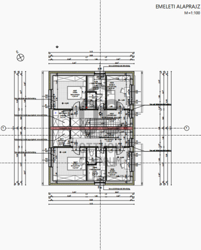
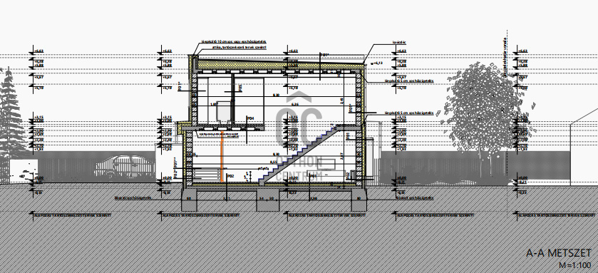
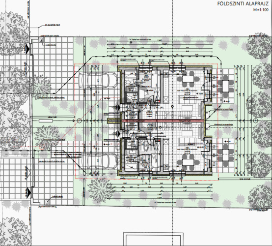
We are offering you a truly unique opportunity if you are currently looking for a new home or investment opportunity in the city of Siófok. During the design process, we took into account the application of renewable energy systems and environmentally friendly solutions. Our modern, premium-quality twin house located in the Sóstó neighborhood (one building with two residential units) has everything you could possibly need. The property has a floor area of 90.2 square meters, which includes four spacious rooms and two bathrooms. The bright, minimalist-designed home serves comfort and functionality in every detail, as the open-plan kitchen and spacious living room provide the perfect space for friendly gatherings or family moments. We aimed for a symmetrical design in the massing and layout of the two apartments. The ground floor accommodates the communal spaces (living room, dining room, kitchen), a guest room/home office with an attached bathroom, and a separate toilet. The finishes can be chosen according to taste within the amount specified by the contractor. On the upper floor, there are two additional rooms and another bathroom planned. The ground floor living room connects to the courtyard, which features a partially covered terrace. A fence is planned to be placed between the courtyard areas of the two apartments. The house is situated on a 508 square meter plot, surrounded by a well-maintained garden. The 11 square meter terrace offers a pleasant panorama of the surrounding landscape, where the proximity to Lake Balaton and the quiet neighborhood guarantees a peaceful life. The garden measures 190.5 square meters and includes a carport, which is part of the purchase price. The property is newly built and heated by renewable energy sources: outdoor H-tariff heat pump heating, with Fan-Coil and underfloor heating. Solar panel installation is optional. The aluminum electric shutters are not only practical but also part of a modern lifestyle (equipped with mosquito nets as well). Among the advantages of the area, the excellent transportation links deserve mention, allowing you to easily reach the city center. A wide range of public transport options is available, making it easy to travel by car or bus. Zoning classification: ÜH-1-sz (Weekend house holiday area). The Sóstó neighborhood is quiet and safe, making it an ideal choice if you are looking for both the closeness of nature and the benefits of urban life. This debt-free property is also pet-friendly, so if you have a favorite pet, they will be welcome in your new home. Thanks to its unique design and modern solutions, this house is not just a property, but an embodiment of a lifestyle. Don't hesitate; if you have any questions, feel free to contact us! There is also an opportunity to view the property in person, so you can experience this special atmosphere for yourself. Don't miss out on this unparalleled opportunity!

Registration Number

U0049262

Property Details

Sales
for sale
Legal Status
new
Character
house
Construction Method
brick
Net Size
90.2 m²
Gross Size
103.7 m²
Plot Size
508 m²
Size of Terrace / Balcony
12.2 m²
Heating
renewable
Ceiling Height
265 cm
Number of Levels Within the Property
1
Orientation
South-West
View
Green view
Condition
Excellent
Condition of Facade
Excellent
Neighborhood
quiet, good transport, green
Year of Construction
2026
Number of Bathrooms
2
Water
Available
Electricity
Available
Sewer
Available

Rooms

room
8.46 m²
bathroom
3.56 m²
open-plan kitchen and living room
26.12 m²
terrace
3.07 m²
entryway
4.78 m²
toilet-washbasin
1.31 m²
room
8.94 m²
room
12.64 m²
bathroom
6.78 m²
corridor
11.33 m²
storage
3.21 m²
terrace
12.25 m²

From Our Office Listings - Siófok - Petőfi sétány

for sale family house

Index image
data_sheet.details.realestate.section.main.otthonstart_flag.label
15

for sale apartment

Index image
18

for sale apartment

Index image
28

for sale family house

Index image
3