data_sheet.details.realestate.section.main.otthonstart_flag.label
For sale new construction family house, U0049251
Siófok, Sóstó

114,900,000 Ft

306,000 €

  • 90.2m²
  • 4 Rooms

Discover your dream home in Siófok Sóstó – a new, spacious 4-room house is waiting for you!

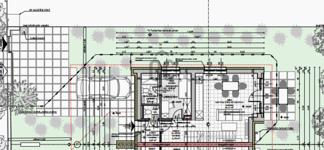
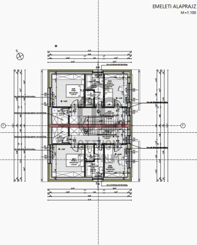
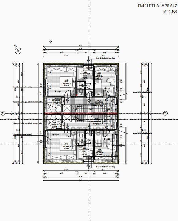
We offer you a truly special opportunity if you are currently looking for a new home or investment option in the city of Siófok. In our planning, we took into account the application of renewable energy systems and environmentally friendly solutions. Our modern, premium-quality duplex house (one building with two residential units) located in the Sóstó district has everything you could possibly need. The property has a floor area of 90.2 square meters, which includes four spacious rooms and two bathrooms. In this bright, minimalist-designed home, every detail serves comfort and functionality, as the American kitchen and the spacious living room provide the perfect space for friendly gatherings or family moments. In shaping the building's mass and layout, we aimed for a symmetrical design for the two residential units. The communal areas (living room, dining room, kitchen) are located on the ground floor, along with a guest room/office that has its own bathroom and a separate toilet. The flooring can be chosen according to taste within a specified budget by the contractor. On the upper floor, two additional rooms and a bathroom are planned. The ground floor living room connects to the courtyard, which features a partially covered terrace. A fence is planned to be placed between the courtyard areas belonging to the two residences. The house is situated on a 508 square meter plot, surrounded by a well-maintained garden. From the 11 square meter terrace, there is a pleasant panorama of the surrounding landscape, where the proximity to Lake Balaton and the quiet neighborhood guarantee a peaceful life. The garden is 190.5 square meters and includes a carport, which is part of the purchase price. The property is newly built, and its heating is powered by renewable energy sources: outdoor H-tariff heat pump heating, with fan coils and underfloor heating. Solar panel installation is optional. The aluminum electric shutters are not only practical but also part of a modern lifestyle (equipped with mosquito nets). Among the advantages of the area, excellent transportation deserves mention, allowing you to easily reach the city center. A wide range of public transportation options is available, so you can travel easily by car or bus. Zoning classification: ÜH-1-sz (Weekend house recreational area). The Sóstó district is quiet and safe, making it an ideal choice if you are looking for both the proximity to nature and the advantages of urban life. This property, which is free of encumbrances, is also suitable for moving in with pets, so if you have a favorite, they are welcome in your new home. Thanks to its unique design and modern solutions, this house is not just a property but an embodiment of a lifestyle. Don't hesitate to contact us if you have any questions! There is also an opportunity to view the property so you can personally experience this special atmosphere. Don’t miss out on this unparalleled opportunity!

Registration Number

U0049251

Property Details

Sales
for sale
Legal Status
new
Character
house
Construction Method
brick
Net Size
90.2 m²
Gross Size
103.7 m²
Plot Size
508 m²
Size of Terrace / Balcony
10.5 m²
Garden Size
190 m²
Heating
renewable
Ceiling Height
265 cm
Number of Levels Within the Property
1
Orientation
South-East
View
Green view
Condition
Excellent
Condition of Facade
Excellent
Neighborhood
quiet, good transport, green
Year of Construction
2026
Number of Bathrooms
2
Condominium Garden
yes
Water
Available
Electricity
Available
Sewer
Available
Distance to Waterfront
more than 500 meters

Rooms

room
8.46 m²
bathroom
3.56 m²
open-plan kitchen and living room
26.12 m²
entryway
4.78 m²
toilet-washbasin
1.31 m²
room
9 m²
room
12.7 m²
bathroom
6.8 m²
corridor
11.33 m²
storage
3.21 m²
terrace
12.25 m²
other
3.07 m²
parking space
25 m²
parking space
25 m²

From Our Office Listings - Siófok - Petőfi sétány

for sale family house

Index image
data_sheet.details.realestate.section.main.otthonstart_flag.label
19

for sale family house

Index image
data_sheet.details.realestate.section.main.otthonstart_flag.label
10

for sale apartment

Index image
data_sheet.details.realestate.section.main.otthonstart_flag.label
16

for sale semi-detached house

Index image
17

for sale apartment

Index image
data_sheet.details.realestate.section.main.otthonstart_flag.label
11

Casa Arany

Index image
3

for sale family house

Index image
data_sheet.details.realestate.section.main.otthonstart_flag.label
13

for sale family house

Index image
data_sheet.details.realestate.section.main.otthonstart_flag.label
26