data_sheet.details.realestate.section.main.otthonstart_flag.label
For sale new construction apartment,
U0048772
Balmazújváros
38,300,000 Ft
98,000 €
- 30.1m²
- 1 Rooms
- 2nd floor




Balmazújvárosban új építésű lakások leköthetőek!
1 szobás 2 emeleti lakás foglalható ebben az új építésű társasházban!
Válogasson kedvére a különböző méretű és elrendezésű lakások között.
Legyen Ön a tulajdonosa egy új építésű, szép lakásnak!
7 lakásos társasház egy 650 m2-es telekre épül Balmazújváros Belvárosában.
34 m2 - 57 m2-es lakások leköthetőek 20%-os önerővel, november 30-ig még ezen az áron.
A társasház főfalai 30 N+F falazó blokkal készülnek, külső felületen 15 cm vastagságú AUSTROTHERM AT-N100 hőszigeteléssel, vakolt felülettel.
A külső nyílászárók műanyagok 3 rétegű üvegezésű ablakokkal, redőnyökkel.
Az épület fűtése gázkazánnal történik, a melegvíz ellátása gázüzemű kazánnal történik.
A lakásokban padlófűtéses hőleadás lesz, mért hőmennyiség mérővel történik az egyéni elszámolás.
A vételár tartalmazza az 5%-os ÁFÁ-t!
Igény szerint további beállók vásárolhatók, melyek vételára 5 millió Ft, vagy garázs mely 10 milliós árat képvisel.
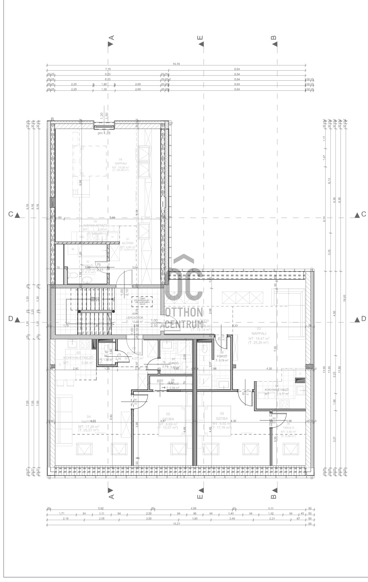
A hirdetésben szereplő 2. emeleti, lakás 30/43 m2-es.
Belső elosztása: előtér, konyha-étkező, nappali, fürdőszoba, kamra
Kulcsrakész ára : 38.300.000 Ft
A megbízható kivitelező, számos referenciával.
Minden korosztály számára ideális választás!
Tervezett műszaki átadás: 2026 év vége (hatósági átadás 2027. március)
Az ingatlanra babaváró igénybevehető!
A lakás az Otthona Start hitel által is finanszírozható min: 20%-os önerővel!
További részletekért keressen bizalommal! Amennyiben a vásárláshoz hitelre van szüksége irodánkban teljes körű szolgáltatással várjuk!
1 szobás 2 emeleti lakás foglalható ebben az új építésű társasházban!
Válogasson kedvére a különböző méretű és elrendezésű lakások között.
Legyen Ön a tulajdonosa egy új építésű, szép lakásnak!
7 lakásos társasház egy 650 m2-es telekre épül Balmazújváros Belvárosában.
34 m2 - 57 m2-es lakások leköthetőek 20%-os önerővel, november 30-ig még ezen az áron.
A társasház főfalai 30 N+F falazó blokkal készülnek, külső felületen 15 cm vastagságú AUSTROTHERM AT-N100 hőszigeteléssel, vakolt felülettel.
A külső nyílászárók műanyagok 3 rétegű üvegezésű ablakokkal, redőnyökkel.
Az épület fűtése gázkazánnal történik, a melegvíz ellátása gázüzemű kazánnal történik.
A lakásokban padlófűtéses hőleadás lesz, mért hőmennyiség mérővel történik az egyéni elszámolás.
A vételár tartalmazza az 5%-os ÁFÁ-t!
Igény szerint további beállók vásárolhatók, melyek vételára 5 millió Ft, vagy garázs mely 10 milliós árat képvisel.
A hirdetésben szereplő 2. emeleti, lakás 30/43 m2-es.
Belső elosztása: előtér, konyha-étkező, nappali, fürdőszoba, kamra
Kulcsrakész ára : 38.300.000 Ft
A megbízható kivitelező, számos referenciával.
Minden korosztály számára ideális választás!
Tervezett műszaki átadás: 2026 év vége (hatósági átadás 2027. március)
Az ingatlanra babaváró igénybevehető!
A lakás az Otthona Start hitel által is finanszírozható min: 20%-os önerővel!
További részletekért keressen bizalommal! Amennyiben a vásárláshoz hitelre van szüksége irodánkban teljes körű szolgáltatással várjuk!
Registration Number
U0048772
Property Details
Sales
for sale
Legal Status
new
Character
apartment
Construction Method
brick
Net Size
30.1 m²
Gross Size
43 m²
Heating
Gas circulator
Ceiling Height
270 cm
Orientation
South-West
Staircase Type
enclosed staircase
Condition
Excellent
Condition of Facade
Excellent
Condition of Staircase
Excellent
Neighborhood
good transport, central
Year of Construction
2027
Number of Bathrooms
1
Position
courtyard-facing
Garage Spaces
1
Water
Available
Gas
Available
Electricity
Available
Sewer
Available
Rooms
entryway
4.9 m²
open-plan kitchen and living room
24 m²
bathroom-toilet
3.9 m²

Czellér András
Credit Expert