Elérhető Otthon Start hitellel
Eladó családi ház, H513517
Mikepércs

134 500 000 Ft

355 000 €

  • 125m²
  • 5 szoba
Kiemelt megbízás

Single-story, independent, almost new, modern family house; well-thought-out layout, bright spaces, youthful vibe!

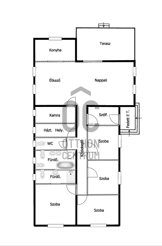
Near the center of Mikepércs, a nearly new, very well-maintained family house built in 2023 is for sale. The house is a single-story, gross 125 m², featuring an open-plan living room with an American kitchen, plus 4 separate bedrooms, and has double comfort. It is situated on a 2283 m² plot, which has the potential for division, allowing for future sale or development. The property includes a dining-kitchen-living area, 4 bedrooms, 2 bathrooms, and 4 toilets, making it an extremely ideal choice for families. The spacious living room creates a bright and friendly atmosphere, perfect for shared family moments. Thanks to the premium construction of the house, it not only offers aesthetic appeal but also emphasizes sustainability. The home is designed close to passive house principles, with gas (combi) heating and air conditioning providing a pleasant temperature throughout the year. The building was constructed using high-quality materials, ensuring durability and low maintenance costs for the new residents. The property also features a 17 m² terrace, where the experience of relaxation and entertainment outdoors is guaranteed. The built-in furniture and cabinets, along with LED mood lighting, cater to the comforts of modern living. Additional features include: - 38 m² living-dining-kitchen area - 4 separate bedrooms with laminate flooring - Triple-glazed, insulated plastic windows - Porotherm 30 K bricks + 15 cm insulation, 40 cm ceiling insulation - Bramac tile roof - Modern, equipped kitchen with nearly new appliances - Underfloor heating - A covered entrance area with a 17 m² rear terrace connected to the living room - 2 large bathrooms with high-quality tiles, including a toilet, bathtub, and shower - Separate toilet with a washbasin - Walkable, usable attic space - Fireplace installation option in the living room (SCHIEDEL chimney) - LED lights and hidden LED lighting - Super low utility costs A home where all you need to do is move in! LET GO OF THE CHALLENGES OF CONSTRUCTION, BUY A FULLY FINISHED FAMILY HOUSE AT A FAVORABLE PRICE! The area has excellent amenities, as nearby shops, schools, and healthcare facilities are all just a few minutes away. Ideal for those who appreciate a suburban, friendly environment, and value proximity to the city center. Call me, and let’s schedule a viewing! A comprehensive video recording of the property has been made. To view it, please visit our website and search for registration number H513517, or contact us directly by phone.

Regisztrációs szám

H513517

Az ingatlan adatai

Értékesités
eladó
Jogi státusz
használt
Jelleg
ház
Építési mód
tégla
Méret
125 m²
Bruttó méret
142 m²
Telek méret
2 283 m²
Terasz / erkély mérete
17 m²
Kert méret
2 283 m²
Fűtés
Gáz cirkó
Belmagasság
279 cm
Tájolás
Kelet
Állapot
Kiváló
Homlokzat állapota
Kiváló
Környék
csendes, jó közlekedés, zöld
Építés éve
2023
Fürdőszobák száma
2
Társaház kert
igen
Garázs
Benne van az árban
Garázs férőhely
1
Víz
Van
Gáz
Van
Villany
Van
Csatorna
Van
Tároló
Önálló

Helyiségek

nappali-étkező
32 m²
konyha
6 m²
hálószoba
10 m²
hálószoba
9.1 m²
hálószoba
8 m²
hálószoba
8 m²
közlekedő
10.1 m²
fürdőszoba-wc
5.2 m²
fürdőszoba-wc
3.5 m²
wc-kézmosó
1.8 m²
előszoba
4 m²
mosókonyha
3.5 m²
kamra
3.5 m²
terasz
17 m²
Czellér András
Czellér András

Hitelszakértő

Irodánk kínálatából - Debrecen - Kálvin tér

kiadó családi ház

Index image
20

kiadó lakás

Index image
6

eladó lakás

Index image
Elérhető Otthon Start hitellel
7

eladó családi ház

Index image
Elérhető Otthon Start hitellel
18