data_sheet.details.realestate.section.main.otthonstart_flag.label
For sale new construction family house,
U0048689
Érd, Parkváros
115,000,000 Ft
296,000 €
- 128m²
- 4 Rooms



Érd Parkváros részén, új építésű, 128 m2-es, nappali + 3 hálós családi ház, garázzsal, gépkocsibeállóval, nagy kerttel eladó!
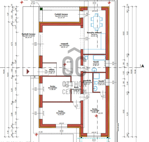
Érd Parkvárosi részén új építésű házak környezetében nettó 128 m2-es, 1 szintes, praktikusan átgondolt alaprajzzal, nagy teraszokkal, 872 m2-es telken épülő családi ház eladó! Tágas nappali-étkező-konyha, szeparáltan elhelyezett 3 hálószoba, 2 fürdőszoba kerül kialakítása, biztosítva a kényelmes életet egy nagyobb család számára is.
Garázs és gépkocsibeálló is épül a gépjárműveknek.
Az épület 30-as téglából épül, 15 cm-es szigeteléssel.
A fűtés és a meleg víz ellátás korszerű hőszivattyús rendszerrel történik. A hűtés klímával megoldott.
Kérésre a műszaki leírás rendelkezésre áll.
Várható birtokba adás: 2026.05.31.
Amennyiben felkeltette az érdeklődését ez a kiváló ár-érték arányú ingatlan, további információkért kérem hívjon bizalommal!
Garázs és gépkocsibeálló is épül a gépjárműveknek.
Az épület 30-as téglából épül, 15 cm-es szigeteléssel.
A fűtés és a meleg víz ellátás korszerű hőszivattyús rendszerrel történik. A hűtés klímával megoldott.
Kérésre a műszaki leírás rendelkezésre áll.
Várható birtokba adás: 2026.05.31.
Amennyiben felkeltette az érdeklődését ez a kiváló ár-érték arányú ingatlan, további információkért kérem hívjon bizalommal!
Registration Number
U0048689
Property Details
Sales
for sale
Legal Status
new
Character
house
Construction Method
brick
Net Size
128 m²
Gross Size
150 m²
Plot Size
872 m²
Size of Terrace / Balcony
29 m²
Garden Size
872 m²
Heating
heat pump
Ceiling Height
285 cm
Number of Levels Within the Property
1
Orientation
South-East
Condition
Excellent
Condition of Facade
Excellent
Neighborhood
quiet, green
Year of Construction
2025
Number of Bathrooms
2
Condominium Garden
yes
Garage
Included in the price
Garage Spaces
1
Water
Available
Electricity
Available
Sewer
Available
Rooms
living room
28.45 m²
open-plan kitchen and dining room
16.3 m²
bathroom-toilet
6.38 m²
room
11.45 m²
room
13.72 m²
room
15.08 m²
bathroom-toilet
3.9 m²
wardrobe
2.93 m²
corridor
3.96 m²
entryway
2.88 m²

Tóth Róbert
Credit Expert