127,000,000 Ft
327,000 €
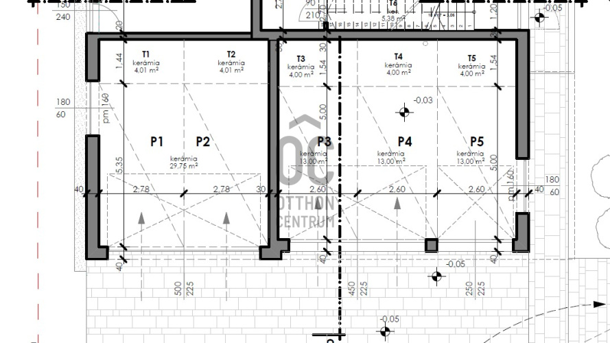
- 103.2m²
- 5 Rooms
- 1st floor





XVI kerület közkedvelt, Zuglóhoz közeli részén eladó új építésű lakások! Egymás mellett épül 2db öt lakásos társasház, egy zöld övezeti új építésű modern környezetben. Ez a lakás az A épület első emeletén található, összesen öt szobás, erkélyes ingatlan, ez ritkaságnak számít.
A lakásokhoz külön vásárolható garázsbeálló tárolóval, amiknek az együttes ára 8,5 millió forint. Igény esetén még felszíni, nyitott beálló vásárlására is van lehetőség, ennek ára 4 millió forint.
Főbb paraméterek:
- tégla építés
- modern, műanyag 3 rétegű nyílászárók
- hőszivattyús fűtés
- választható burkolatok, szaniterek
A házak 2026 IV. negyedévére készülnek el, nagy előny, hogy a vevő a saját ízlése és igénye szerint alakíthatja ki új otthonát.
Részletesebb információkért, részletes műszaki tájékoztatásért keressen bizalommal!
A lakásokhoz külön vásárolható garázsbeálló tárolóval, amiknek az együttes ára 8,5 millió forint. Igény esetén még felszíni, nyitott beálló vásárlására is van lehetőség, ennek ára 4 millió forint.
Főbb paraméterek:
- tégla építés
- modern, műanyag 3 rétegű nyílászárók
- hőszivattyús fűtés
- választható burkolatok, szaniterek
A házak 2026 IV. negyedévére készülnek el, nagy előny, hogy a vevő a saját ízlése és igénye szerint alakíthatja ki új otthonát.
Részletesebb információkért, részletes műszaki tájékoztatásért keressen bizalommal!
Registration Number
U0048460
Property Details
Sales
for sale
Legal Status
new
Character
apartment
Construction Method
brick
Net Size
103.2 m²
Gross Size
107.7 m²
Size of Terrace / Balcony
9 m²
Heating
heat pump
Ceiling Height
265 cm
Number of Levels Within the Property
1
Orientation
South
Staircase Type
enclosed staircase
Condition
Excellent
Condition of Facade
Excellent
Condition of Staircase
Excellent
Neighborhood
quiet, green
Year of Construction
2026
Number of Bathrooms
1
Position
garden-facing
Garage
Separately purchasable
Water
Available
Gas
On the street
Electricity
Available
Sewer
Available
Rooms
open-plan kitchen and living room
31 m²
room
15.93 m²
room
10.68 m²
room
11.54 m²
study
8.29 m²
bathroom-toilet
5.84 m²
entryway
7.34 m²
toilet
2.4 m²
balcony
9 m²

Pomaházi Pál
Credit Expert