155,000,000 Ft
398,000 €
- 169.5m²
- 6 Rooms
AHOGY AZT ÖN MEGÁLMODTA! - ÚJÉPÍTÉSŰ 6 szobás ikerház Dunaharasztiban
Dunaharasztilegkedveltebb részén exkluzív ikerház várja leendő tulajdonosát!
Ismerje meg az érzést amikor egy ház ÖNNEK ÉPÜL!
Még mind a két fél szabad, szabadon választható!
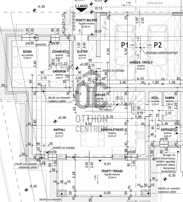
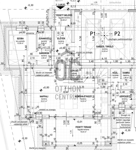
- az ingatlan alapterülete: 203 m2
- 6 szoba - 3 fürdőszoba - 2 garázs (33 m2) - terasz (18m2) - kerti tároló
- hatalmas belső tér: nappali - konyha - étkező 37 m2!!!
- jelen szakaszban még változtatható elosztású belső tér és akár részleteiben újratervezhető ház!!!
Az ingatlan Porotherm Klíma 30 kerámia falazó elemből, 10 cm-es EPS külső hőszigeteléssel, 25 cm-es födémszigeteléssel, 3 rétegű műanyag nyílászárókkal + redőnnyel és szúnyoghálóval, betoncserép fedéssel épül. Burkolatok 6.000 Ft / m2 áron szabadon megválaszthatóak.
A fűtés hőszivattyús vagy egyéb igény esetén gáz cirkó (Bosch vagy Ariston kazán) rendszerrel megoldott, választhatóan radiátor / padlófűtés kialakítással.
A tágas nappali és az amerikaikonyha világos, sok ablakos és tökéletes helyszín a közös családi pillanatokhoz.
A klíma a nyári melegben biztosítja a kellemes hőmérsékletet, melyet telepített napelemes rendszer (3 kW) tud támogatni.
A garázs fűtött és elektromos kapunyitóval felszerelt.
A riasztó- és telekommunikációs rendszer előkészítése megtörténik.
Egy kert lehetőséget ad arra, hogy a szabadban tölthesse a szabadidejét, a gyerekek pedig biztonságos környezetben játszhatnak.
A kivitelező a városban számos referenciával rendelkezik, melyeket közösen meg is tudunk tekinteni!
Tervezett átadás: 2026. I negyedév
A környék ellátottsága kiváló, a kitűnő közlekedés lehetővé teszi, hogy akár a fővárosba is gyorsan bejusson, így a munkába járás sem jelent problémát.
A csendes utcák és a barátságos szomszédok ideális környezetet biztosítanak a családi élethez, míg a közeli iskolák, óvodák és boltok kényelmes mindennapi életet garantálnak.
Ez a tehermentes ingatlan CSOK és hitel kompatibilis.
Már 10% önerő befizetésével le tudja foglalni ezt a remek lehetőséget és így rögzítheti a vételárat, ezzel elkerülheti az ingatlanárak növekedését!
Kérdéseivel bizalommal fordulhat hozzánk, szívesen segítünk Önnek a legjobb döntés meghozatalában!
Az ingatlan piacon ritkán található ilyen különleges ajánlat, így érdemes mielőbb lépnie, hogy ne maradjon le erről a nagyszerű lehetőségről!
Ismerje meg az érzést amikor egy ház ÖNNEK ÉPÜL!
Még mind a két fél szabad, szabadon választható!
- az ingatlan alapterülete: 203 m2
- 6 szoba - 3 fürdőszoba - 2 garázs (33 m2) - terasz (18m2) - kerti tároló
- hatalmas belső tér: nappali - konyha - étkező 37 m2!!!
- jelen szakaszban még változtatható elosztású belső tér és akár részleteiben újratervezhető ház!!!
Az ingatlan Porotherm Klíma 30 kerámia falazó elemből, 10 cm-es EPS külső hőszigeteléssel, 25 cm-es födémszigeteléssel, 3 rétegű műanyag nyílászárókkal + redőnnyel és szúnyoghálóval, betoncserép fedéssel épül. Burkolatok 6.000 Ft / m2 áron szabadon megválaszthatóak.
A fűtés hőszivattyús vagy egyéb igény esetén gáz cirkó (Bosch vagy Ariston kazán) rendszerrel megoldott, választhatóan radiátor / padlófűtés kialakítással.
A tágas nappali és az amerikaikonyha világos, sok ablakos és tökéletes helyszín a közös családi pillanatokhoz.
A klíma a nyári melegben biztosítja a kellemes hőmérsékletet, melyet telepített napelemes rendszer (3 kW) tud támogatni.
A garázs fűtött és elektromos kapunyitóval felszerelt.
A riasztó- és telekommunikációs rendszer előkészítése megtörténik.
Egy kert lehetőséget ad arra, hogy a szabadban tölthesse a szabadidejét, a gyerekek pedig biztonságos környezetben játszhatnak.
A kivitelező a városban számos referenciával rendelkezik, melyeket közösen meg is tudunk tekinteni!
Tervezett átadás: 2026. I negyedév
A környék ellátottsága kiváló, a kitűnő közlekedés lehetővé teszi, hogy akár a fővárosba is gyorsan bejusson, így a munkába járás sem jelent problémát.
A csendes utcák és a barátságos szomszédok ideális környezetet biztosítanak a családi élethez, míg a közeli iskolák, óvodák és boltok kényelmes mindennapi életet garantálnak.
Ez a tehermentes ingatlan CSOK és hitel kompatibilis.
Már 10% önerő befizetésével le tudja foglalni ezt a remek lehetőséget és így rögzítheti a vételárat, ezzel elkerülheti az ingatlanárak növekedését!
Kérdéseivel bizalommal fordulhat hozzánk, szívesen segítünk Önnek a legjobb döntés meghozatalában!
Az ingatlan piacon ritkán található ilyen különleges ajánlat, így érdemes mielőbb lépnie, hogy ne maradjon le erről a nagyszerű lehetőségről!
Registration Number
U0048181
Property Details
Sales
for sale
Legal Status
new
Character
house
Construction Method
brick
Net Size
169.5 m²
Gross Size
203.1 m²
Plot Size
470 m²
Size of Terrace / Balcony
18 m²
Heating
renewable
Ceiling Height
280 cm
Number of Levels Within the Property
2
Orientation
South
View
city view, Green view
Condition
Excellent
Condition of Facade
Excellent
Neighborhood
quiet, green
Year of Construction
2025
Number of Bathrooms
3
Garage
Included in the price
Garage Spaces
2
Water
Available
Gas
Available
Electricity
Available
Sewer
Available
Storage
Independent
Rooms
entryway
6.21 m²
wardrobe
2.55 m²
bathroom-toilet
3.4 m²
room
10.08 m²
open-plan kitchen and living room
36.84 m²
staircase
4.35 m²
corridor
2.2 m²
pantry
2.86 m²
boiler room
3.6 m²
garage
33.55 m²
entryway
2.69 m²
terrace
21.04 m²
corridor
7.12 m²
corridor
2.4 m²
room
10.8 m²
bathroom-toilet
5 m²
room
10.8 m²
utility room
5.06 m²
wardrobe
5.04 m²
bathroom-toilet
5.88 m²
room
9.41 m²
room
13.23 m²
Horváth Eleonóra
Credit Expert