189,000,000 Ft
483,000 €
- 159m²
- 5 Rooms










ELADÓ Pestújhelyen Új Építésű Ikerház!
Budapesten a XV. kerületben Pestújhely és Alsórákos határán kínálom eladásra ezt a Nettó 159m², tégla építésű ikerházat.
Csendes, családi házas övezetben épül, 4 hálószobával, amerikai-konyhás nappalival, valamint terasszal és garázzsal is rendelkezni fog.
A falazat 30cm, amit 10cm grafitos DRYVIT szigetelés fog borítani.
Nyílászárókból korszerű műanyag, többrétegű, hang-és hőszigetelt rendszerrel ellátottak fognak beépítésre kerülni, szúnyoghálóval és redőnnyel.
Padlófűtéssel tervezett melyet gáz cirkó fog ellátni.
Szintenként egy-egy hűtő-fűtő klíma fog gondoskodnak a nyári melegben a kellemes hőérzetről.
Kialakításra kerül továbbá egy elektromos látványkandalló is.
Gépkocsink biztonságos parkolása a fűtött, járólappal burkolt garázsban megoldott, amely elektromos garázskapuval szerelt lesz.
Kivitelező vállalja a konyhabútor elkészítését 1millió forintig.
Belső nyílászárók 80-100ezer ft értékben válaszhatók.
Hideg-meleg burkolatok 10ezer ft/m² áron a vételár részét képzik.
Napelem kiállásának kialakítását vállalja a kivitelező, illetve a szaniterek, gázkazán és bejárati ajtó a vételár részét képzik.
Saját kertje és nagy terasza fog gondoskodni a kellemes kikapcsolódásról, ideális családi alkalmak lebonyolítására, díszkert kialakításra, gyerekjátszó kialakítására, vagy aminek az új tulajdonosa megálmodja.
Lokáció szempontjából minden kellő távolságban található az ingatlantól.
Gépkocsival az M3-as bevezető szakasza, illetve a Csömöri út is gyorsan elérhető.
Tömegközlekedés szempontjából is kiváló az infrastruktúrája, mivel több buszjárat (5,124,125, 973,973A), és villamos (62,62A,69) is 500m-en belül elérhetők gyalogosan.
Várható átadás 2025. év végén, ebben és a műszaki tartalomban rugalmas az építtető, egyedi kivitelezések megállapodás kérdése.
Részletes műszaki tartalmat, tervrajzokat, személyes egyeztetés után szívesen küldök.
Az ingatlan Piaci hitelre alkalmas állapotban kerül átadásra, kedvező feltételekért bank független kollégánk áll ügyfeleink rendelkezésére.
Amennyiben felkeltette az érdeklődését keressen bizalommal elérhetőségeimen.
Csendes, családi házas övezetben épül, 4 hálószobával, amerikai-konyhás nappalival, valamint terasszal és garázzsal is rendelkezni fog.
A falazat 30cm, amit 10cm grafitos DRYVIT szigetelés fog borítani.
Nyílászárókból korszerű műanyag, többrétegű, hang-és hőszigetelt rendszerrel ellátottak fognak beépítésre kerülni, szúnyoghálóval és redőnnyel.
Padlófűtéssel tervezett melyet gáz cirkó fog ellátni.
Szintenként egy-egy hűtő-fűtő klíma fog gondoskodnak a nyári melegben a kellemes hőérzetről.
Kialakításra kerül továbbá egy elektromos látványkandalló is.
Gépkocsink biztonságos parkolása a fűtött, járólappal burkolt garázsban megoldott, amely elektromos garázskapuval szerelt lesz.
Kivitelező vállalja a konyhabútor elkészítését 1millió forintig.
Belső nyílászárók 80-100ezer ft értékben válaszhatók.
Hideg-meleg burkolatok 10ezer ft/m² áron a vételár részét képzik.
Napelem kiállásának kialakítását vállalja a kivitelező, illetve a szaniterek, gázkazán és bejárati ajtó a vételár részét képzik.
Saját kertje és nagy terasza fog gondoskodni a kellemes kikapcsolódásról, ideális családi alkalmak lebonyolítására, díszkert kialakításra, gyerekjátszó kialakítására, vagy aminek az új tulajdonosa megálmodja.
Lokáció szempontjából minden kellő távolságban található az ingatlantól.
Gépkocsival az M3-as bevezető szakasza, illetve a Csömöri út is gyorsan elérhető.
Tömegközlekedés szempontjából is kiváló az infrastruktúrája, mivel több buszjárat (5,124,125, 973,973A), és villamos (62,62A,69) is 500m-en belül elérhetők gyalogosan.
Várható átadás 2025. év végén, ebben és a műszaki tartalomban rugalmas az építtető, egyedi kivitelezések megállapodás kérdése.
Részletes műszaki tartalmat, tervrajzokat, személyes egyeztetés után szívesen küldök.
Az ingatlan Piaci hitelre alkalmas állapotban kerül átadásra, kedvező feltételekért bank független kollégánk áll ügyfeleink rendelkezésére.
Amennyiben felkeltette az érdeklődését keressen bizalommal elérhetőségeimen.
Registration Number
U0047655
Property Details
Sales
for sale
Legal Status
new
Character
house
Construction Method
brick
Net Size
159 m²
Gross Size
177 m²
Plot Size
380 m²
Size of Terrace / Balcony
21.9 m²
Heating
gas convector
Ceiling Height
265 cm
Number of Levels Within the Property
1
Orientation
South-East
View
city view, Green view
Condition
Excellent
Condition of Facade
Excellent
Neighborhood
quiet, good transport, green
Year of Construction
2025
Number of Bathrooms
2
Garage
Included in the price
Garage Spaces
1
Water
Available
Gas
Available
Electricity
Available
Sewer
Available
Storage
Independent
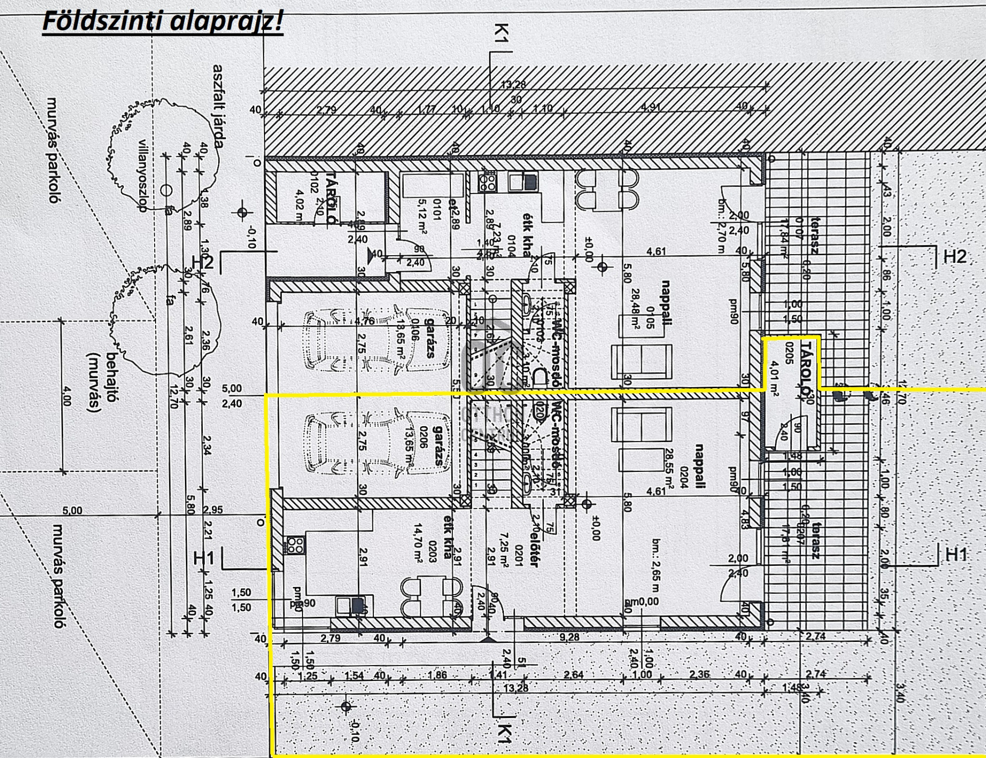
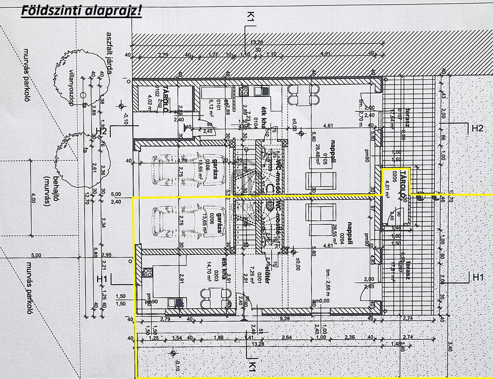
Rooms
entryway
7.25 m²
toilet-washbasin
3 m²
open-plan kitchen and dining room
14.7 m²
living room
28.55 m²
storage
4.01 m²
garage
13.6 m²
terrace
17.81 m²
staircase
5.97 m²
corridor
6.34 m²
bathroom-toilet
7.39 m²
utility room
2.37 m²
bedroom
13.11 m²
bedroom
10.07 m²
bedroom
10.74 m²
bedroom
13.5 m²
balcony
4.13 m²

Pados - Burján Renáta Zita
Credit Expert