1,500,000 Ft
4,200 €
- 380m²
KIADÓ ÜZLETI-CÉLÚ ingatlan Budapest XIV. kerületében – Szugló utcában
Budapest XIV. kerületének Alsórákos városrészében, a Szugló utcában kínálunk BÉRBEADÁSRA egy kiváló adottságokkal rendelkező, ipari–irodai hasznosításra alkalmas ingatlant.
Elhelyezkedés, megközelíthetőség
Az ingatlan szilárd burkolatú úton, kiváló közlekedési kapcsolatokkal érhető el:
-busz, villamos, troli a közelben
-Bosnyák tér: 2 perc gyalog
-Zenit Corso: 5 perc gyalog
A környék vegyes funkciójú: irodai, ipari, kereskedelmi és lakóingatlanok egyaránt megtalálhatók, több új építésű társasház közvetlen közelben.
A Szugló utca közepes gépjárműforgalmú, gyalogosforgalma alacsony, ami ideálissá teszi irodai vagy ipari tevékenységre.
Műszaki állapot, felújítások
Az épület folyamatosan karbantartott, átlagos–jó műszaki állapotú:
-kb. 5 éve teljes tetőcsere (zsindelytető)
-alagsor és magasföldszint felújítva
-mosható falfestékek
-részben új nyílászárók
-öntött műgyanta burkolat
-teljes elektromos hálózat felújítva
-minden helyiség split klímával légkondicionált
-kiépített biztonságtechnikai rendszer
Főbb adatok:
-Áram erősség: 3 x 40Ah
-Becsült építési év: 1970-es évek
-Telek: közbenső fekvésű, összközműves
-Beépíthetőség: 30%
-Megengedett építménymagasság: 10,5 m
-Minimális telekméret: 800 m²
-Összes nettó felépítmény: 397 m²
-Telek: sík, kerített, utcára nyitott
-Közművek: víz, gáz, villany, csatorna
-Udvar: 13 férőhelyes parkoló
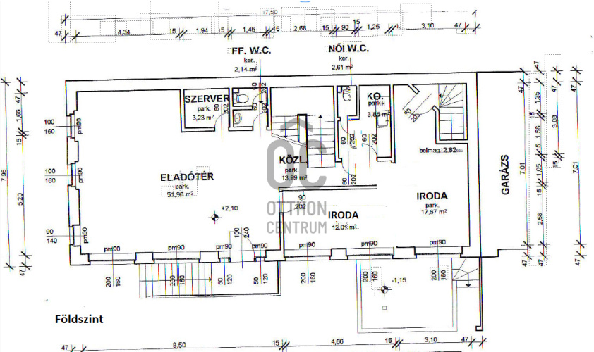
Funkció és elrendezés
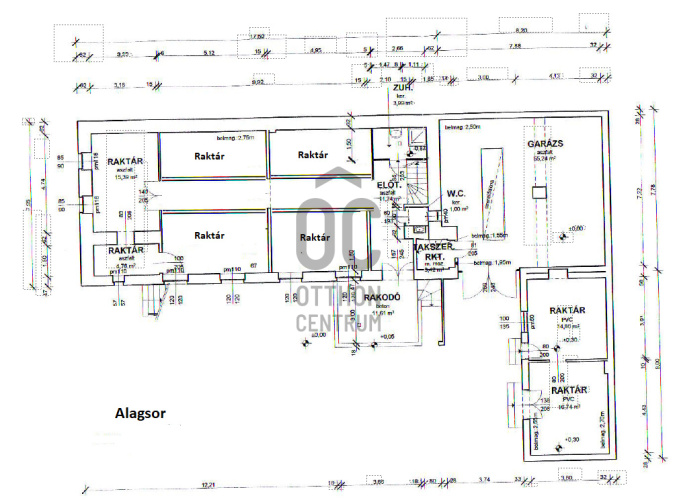
Alagsor:
-több különálló helyiség
-mosdó
-teljes komfort, légkondicionálás
Földszint:
-2 nagyobb légtér
-külön tárolók
-mosdó
Emelet:
-2 iroda
-étkező
-konyha
-2 mellékhelyiség
-galéria (rakodásra alkalmas)
Melléképület:
-nagy tároló
-2 különálló helyiség
-külön mosdó
-(jelenleg állatorvosi ultrahang rendelőként funkcionál)
Hasznosítás
Az ingatlan jelenleg állatorvosi laborként működik, azonban kiválóan alkalmas:
-irodai központnak
-laboratóriumi tevékenységre
-kereskedelmi vagy ipari célra
-fejlesztési telekként történő hasznosításra
Az ingatlan cég tulajdonban van, így Àfa terheli!
Amennyiben felkeltette érdeklődését az ingatlan, úgy várom hívását a hét mindennapján!
Elhelyezkedés, megközelíthetőség
Az ingatlan szilárd burkolatú úton, kiváló közlekedési kapcsolatokkal érhető el:
-busz, villamos, troli a közelben
-Bosnyák tér: 2 perc gyalog
-Zenit Corso: 5 perc gyalog
A környék vegyes funkciójú: irodai, ipari, kereskedelmi és lakóingatlanok egyaránt megtalálhatók, több új építésű társasház közvetlen közelben.
A Szugló utca közepes gépjárműforgalmú, gyalogosforgalma alacsony, ami ideálissá teszi irodai vagy ipari tevékenységre.
Műszaki állapot, felújítások
Az épület folyamatosan karbantartott, átlagos–jó műszaki állapotú:
-kb. 5 éve teljes tetőcsere (zsindelytető)
-alagsor és magasföldszint felújítva
-mosható falfestékek
-részben új nyílászárók
-öntött műgyanta burkolat
-teljes elektromos hálózat felújítva
-minden helyiség split klímával légkondicionált
-kiépített biztonságtechnikai rendszer
Főbb adatok:
-Áram erősség: 3 x 40Ah
-Becsült építési év: 1970-es évek
-Telek: közbenső fekvésű, összközműves
-Beépíthetőség: 30%
-Megengedett építménymagasság: 10,5 m
-Minimális telekméret: 800 m²
-Összes nettó felépítmény: 397 m²
-Telek: sík, kerített, utcára nyitott
-Közművek: víz, gáz, villany, csatorna
-Udvar: 13 férőhelyes parkoló
Funkció és elrendezés
Alagsor:
-több különálló helyiség
-mosdó
-teljes komfort, légkondicionálás
Földszint:
-2 nagyobb légtér
-külön tárolók
-mosdó
Emelet:
-2 iroda
-étkező
-konyha
-2 mellékhelyiség
-galéria (rakodásra alkalmas)
Melléképület:
-nagy tároló
-2 különálló helyiség
-külön mosdó
-(jelenleg állatorvosi ultrahang rendelőként funkcionál)
Hasznosítás
Az ingatlan jelenleg állatorvosi laborként működik, azonban kiválóan alkalmas:
-irodai központnak
-laboratóriumi tevékenységre
-kereskedelmi vagy ipari célra
-fejlesztési telekként történő hasznosításra
Az ingatlan cég tulajdonban van, így Àfa terheli!
Amennyiben felkeltette érdeklődését az ingatlan, úgy várom hívását a hét mindennapján!
Registration Number
UZ019557
Property Details
Sales
for rent
Legal Status
used
Character
commercial
Type of Business Property
entire building
Construction Method
brick
Net Size
380 m²
Plot Size
633 m²
Size of Terrace / Balcony
20 m²
Above-Ground Net Size
633 m²
Heating
other
Ceiling Height
286 cm
Number of Levels Within the Property
3
View
city view
Condition
Average
Condition of Facade
Average
Water
Available
Electricity
Available
Sewer
Available
Visibility
Easily visible from busy main road
Accessibility
Property located within a site
Utilization
owner-occupied
Pados - Burján Renáta Zita
Credit Expert