data_sheet.details.realestate.section.main.otthonstart_flag.label
For sale new construction family house,
U0045638
Budapest XVIII. kerület, Ferihegy
133,000,000 Ft
342,000 €
- 113.6m²
- 3 Rooms
ÚJ ÉPÍTÉSŰ, FÖLDSZINTES, ÖNÁLLÓ CSALÁDI HÁZ A XVIII. KERÜLETBEN!!!
Eladásra kínálunk egy Új ÉPÍTÉSŰ, FÖLDSZINTES, ÖNÁLLÓ CSALÁDI HÁZAT garázzsal, 404 nm-es telekkel, Budapest XVIII. kerületben Ferihegy városrészben.
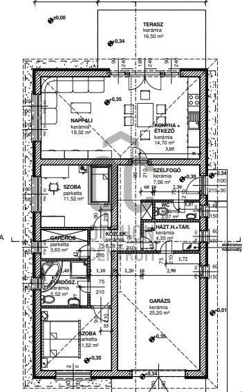
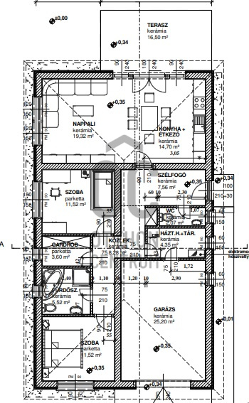
A lakásba a jobboldali oldalkert felől megközelíthető szélfogó helyiségen és a gépkocsi-tárolón keresztül juthatunk be. A szélfogóból jutunk a hátsókert fel elhelyezkedő nappali – étkező –konyha helyiség-együttes, melyből egy teraszon át közvetlenül a kertbe juthatunk. A szélfogóból nyílik még egy WC helyiség, valamint egy közlekedő térbe juthatunk. A közlekedő térből nyílik két hálószoba, egy fürdőszoba és egy gardrób helyiség, valamint egy háztartási helyiség.
A gépkocsi-tároló az utca irányába helyezkedik el, és a lakásból a háztartási helyiségen keresztül közelíthető meg.
Az épület FŰTÉSÉT és a melegvíz ellátását a háztartási helyiségben elhelyezésre kerülő ELEKTROMOS HŐSZIVATTYÚVAL ÜZEMELTETETT KÖZPONTI-FŰTÉS RENDSZER biztosítja.
A téli hőveszteség pótlása padlófűtéssel biztosított.
Kialakításra kerül:
•nappali 19,32 m2
•konyha + étkező 14,70 m2
•közlekedő 8,28 m2
•szoba 11,52 m2
•szoba 11,52 m2
•gardrób 3,60 m2
•fürdőszoba 5,52 m2
•háztartási helys.+ tároló 4,35 m2
•WC 2,07 m2
•összesen: 88,44 m2 + garázs 25,20 m2
Az ÉPÜLET HASZNOS ALAPTERÜLETE összesen: 113,64 m2 + terasz 16,50 m2
A 25m2-es garázsban kényelmesen elfér majd az autó mellett, a kerékpár és egyéb kerti szerszám is.
A telek mérete 404 m2, privát élettér kertészkedésre, pihenésre és persze akár a gyerekeknek, unokáknak elfér a hinta, homokozó, trambulin stb.
Kis forgalmú, csendes utca, nincs átmenő forgalom.
Tömegközlekedés nagyon jó, Kőbánya-Kispest metróállomás 15 perc, Nyugati Pályaudvar 30-35 perc.
A házat tőkeerős kivitelező építi, minőségi anyagokkal, precízen, megbízhatóan dolgozik. A vételár a kulcsrakész állapotra vonatkozik.
A kivitelező referencia ingatlanjai a környéken megtekinthetőek.
Pontos műszaki tájékoztató, és tervrajz áttekintése, személyes egyeztetés, helyszíni megtekintés miatt keressen bizalommal!
Hitel, CSOK igénylésben díjmentes ügyintézéssel állunk rendelkezésére!
Várom megtisztelő érdeklődésüket.
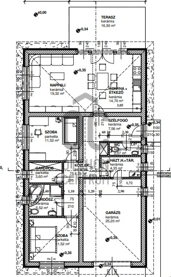
A lakásba a jobboldali oldalkert felől megközelíthető szélfogó helyiségen és a gépkocsi-tárolón keresztül juthatunk be. A szélfogóból jutunk a hátsókert fel elhelyezkedő nappali – étkező –konyha helyiség-együttes, melyből egy teraszon át közvetlenül a kertbe juthatunk. A szélfogóból nyílik még egy WC helyiség, valamint egy közlekedő térbe juthatunk. A közlekedő térből nyílik két hálószoba, egy fürdőszoba és egy gardrób helyiség, valamint egy háztartási helyiség.
A gépkocsi-tároló az utca irányába helyezkedik el, és a lakásból a háztartási helyiségen keresztül közelíthető meg.
Az épület FŰTÉSÉT és a melegvíz ellátását a háztartási helyiségben elhelyezésre kerülő ELEKTROMOS HŐSZIVATTYÚVAL ÜZEMELTETETT KÖZPONTI-FŰTÉS RENDSZER biztosítja.
A téli hőveszteség pótlása padlófűtéssel biztosított.
Kialakításra kerül:
•nappali 19,32 m2
•konyha + étkező 14,70 m2
•közlekedő 8,28 m2
•szoba 11,52 m2
•szoba 11,52 m2
•gardrób 3,60 m2
•fürdőszoba 5,52 m2
•háztartási helys.+ tároló 4,35 m2
•WC 2,07 m2
•összesen: 88,44 m2 + garázs 25,20 m2
Az ÉPÜLET HASZNOS ALAPTERÜLETE összesen: 113,64 m2 + terasz 16,50 m2
A 25m2-es garázsban kényelmesen elfér majd az autó mellett, a kerékpár és egyéb kerti szerszám is.
A telek mérete 404 m2, privát élettér kertészkedésre, pihenésre és persze akár a gyerekeknek, unokáknak elfér a hinta, homokozó, trambulin stb.
Kis forgalmú, csendes utca, nincs átmenő forgalom.
Tömegközlekedés nagyon jó, Kőbánya-Kispest metróállomás 15 perc, Nyugati Pályaudvar 30-35 perc.
A házat tőkeerős kivitelező építi, minőségi anyagokkal, precízen, megbízhatóan dolgozik. A vételár a kulcsrakész állapotra vonatkozik.
A kivitelező referencia ingatlanjai a környéken megtekinthetőek.
Pontos műszaki tájékoztató, és tervrajz áttekintése, személyes egyeztetés, helyszíni megtekintés miatt keressen bizalommal!
Hitel, CSOK igénylésben díjmentes ügyintézéssel állunk rendelkezésére!
Várom megtisztelő érdeklődésüket.
Registration Number
U0045638
Property Details
Sales
for sale
Legal Status
new
Character
house
Construction Method
brick
Net Size
113.6 m²
Gross Size
121.8 m²
Plot Size
404 m²
Size of Terrace / Balcony
16.5 m²
Heating
heat pump
Ceiling Height
268 cm
Number of Levels Within the Property
1
Orientation
South-West
Condition
Excellent
Condition of Facade
Excellent
Neighborhood
good transport
Year of Construction
2024
Number of Bathrooms
1
Water
Available
Electricity
Available
Sewer
Available
Rooms
entryway
7.56 m²
living room
19.32 m²
open-plan kitchen and dining room
14.7 m²
corridor
8.28 m²
room
11.52 m²
room
11.52 m²
wardrobe
3.6 m²
bathroom
5.52 m²
utility room
4.35 m²
toilet
2.08 m²
garage
25.2 m²
terrace
13.5 m²
Helembai Dávid
Credit Expert