7,500,000 Ft
20,000 €
- 701m²
Fedezze fel álmai telkét Abonyban – ideális lakóövezet, befektetési lehetőség várja!
Eladó telek Abonyban családi ház építésére vonatkozó dokumentációval!
Abonyban kínálok Lf-1 övezetbe tartozó telket eladásra, a Helyi Építési Szabályzat szerinti paraméterek lentebb!
- utcafront 14,5 m
- gázcsonk és csatorna csonk a telken belül
- az alap kitűzés megtörtént
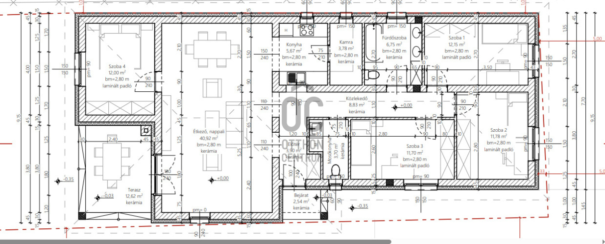
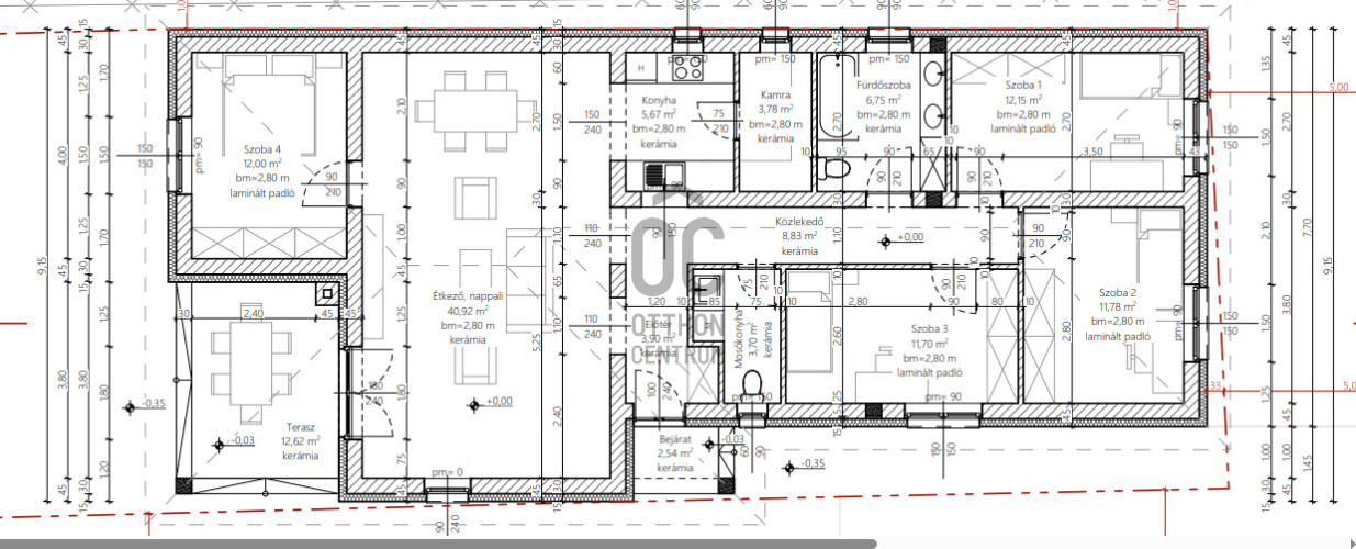
- a hirdetési ár tartalmazza: INGATLANRA TERVEZETT LAKÓÉPÜLET
EGYSZERŰ BEJELENTÉSI TERVDOKUMENTÁCIÓ-ját alaprajzzal, műszaki leírással, minden egyébbel
Belső helyiségek tervezett mérete összesen: 121,18 nm
Tervezett teraszokkal együtt összesen: 136,34 nm
(1)Lf-1 jelű építési övezet előírásai:
a)Beépítési mód
aa) oldalhatáron álló
ab)18 méternél szélesebb és saroktelek esetén: szabadon álló
b)Kialakítható legkisebb telekterület (m2)700
c)A beépítésnél alkalmazható terepszint feletti legnagyobb beépítettség (%)30
d)A beépítésnél alkalmazható legnagyobb épületmagasság (m)5,0
e)A beépítésnél alkalmazható legkisebb zöldfelületi arány (%)40
f)A közműellátás mértéke:teljes
(2)Az építési övezetben elhelyezhető épület a vonatkozó jogszabályi előírásokon túlmenően
a)melléképület,
b)kézműipari épület legfeljebb nettó 40 m2 alapterületű főrendeltetésű helyiséggel lehet.
(3)Az építési övezetben minden terepszint alatti építmény elhelyezhető.
(4)Az építési övezetben melléképület a (2) bekezdésben foglaltak figyelembevételével elhelyezhető, az alábbi szabályok alkalmazásával:
a)a lakóépülettel azonos oldalhatáron a főépülettel legfeljebb azonos épületmagassággal építhető,
b)két 30,00 m telekmélységet el nem érő telkek csatlakozásánál a hátsókert mérete 0,00 m, ebben az esetben a melléképületek egymással tűzfalasan összeépíthetők, amennyiben az egyik telken létesül melléképítmény, akkor az csak tűzfalas kialakítással helyezhető el.
(5)Melléképítmények tekintetében az alábbiak helyezhetők el:
a)közműcsatlakozási vagy -pótló műtárgy
b)hulladéktartály-tároló
c)kerti építmény
d)háztartási célú kemence, húsfüstölő, jégverem, zöldségverem
e)állatkifutó
f)trágyatároló, komposztáló
g)siló, ömlesztett anyag-, folyadék- és gáztároló
h)építménynek minősülő antennatartó szerkezet, zászlótartó oszlop.
Irodánkban bankfüggetlen hitel-közvetítéssel állunk ügyfeleink rendelkezésére!
A hirdetésben szereplő információkat a megbízótól kaptuk, irodánk azokért felelősséget nem vállal!
Abonyban kínálok Lf-1 övezetbe tartozó telket eladásra, a Helyi Építési Szabályzat szerinti paraméterek lentebb!
- utcafront 14,5 m
- gázcsonk és csatorna csonk a telken belül
- az alap kitűzés megtörtént
- a hirdetési ár tartalmazza: INGATLANRA TERVEZETT LAKÓÉPÜLET
EGYSZERŰ BEJELENTÉSI TERVDOKUMENTÁCIÓ-ját alaprajzzal, műszaki leírással, minden egyébbel
Belső helyiségek tervezett mérete összesen: 121,18 nm
Tervezett teraszokkal együtt összesen: 136,34 nm
(1)Lf-1 jelű építési övezet előírásai:
a)Beépítési mód
aa) oldalhatáron álló
ab)18 méternél szélesebb és saroktelek esetén: szabadon álló
b)Kialakítható legkisebb telekterület (m2)700
c)A beépítésnél alkalmazható terepszint feletti legnagyobb beépítettség (%)30
d)A beépítésnél alkalmazható legnagyobb épületmagasság (m)5,0
e)A beépítésnél alkalmazható legkisebb zöldfelületi arány (%)40
f)A közműellátás mértéke:teljes
(2)Az építési övezetben elhelyezhető épület a vonatkozó jogszabályi előírásokon túlmenően
a)melléképület,
b)kézműipari épület legfeljebb nettó 40 m2 alapterületű főrendeltetésű helyiséggel lehet.
(3)Az építési övezetben minden terepszint alatti építmény elhelyezhető.
(4)Az építési övezetben melléképület a (2) bekezdésben foglaltak figyelembevételével elhelyezhető, az alábbi szabályok alkalmazásával:
a)a lakóépülettel azonos oldalhatáron a főépülettel legfeljebb azonos épületmagassággal építhető,
b)két 30,00 m telekmélységet el nem érő telkek csatlakozásánál a hátsókert mérete 0,00 m, ebben az esetben a melléképületek egymással tűzfalasan összeépíthetők, amennyiben az egyik telken létesül melléképítmény, akkor az csak tűzfalas kialakítással helyezhető el.
(5)Melléképítmények tekintetében az alábbiak helyezhetők el:
a)közműcsatlakozási vagy -pótló műtárgy
b)hulladéktartály-tároló
c)kerti építmény
d)háztartási célú kemence, húsfüstölő, jégverem, zöldségverem
e)állatkifutó
f)trágyatároló, komposztáló
g)siló, ömlesztett anyag-, folyadék- és gáztároló
h)építménynek minősülő antennatartó szerkezet, zászlótartó oszlop.
Irodánkban bankfüggetlen hitel-közvetítéssel állunk ügyfeleink rendelkezésére!
A hirdetésben szereplő információkat a megbízótól kaptuk, irodánk azokért felelősséget nem vállal!
Registration Number
T040724
Property Details
Sales
for sale
Character
plot
Type of Land
Building plot
Zone
residential zone
Plot Size
701 m²
Orientation
East
Water
On the street
Gas
Available
Electricity
On the street
Sewer
Available
Buildability
30%
Facade Height
500
Type of Buildable Property
Family house
Szuda Zsolt
Credit Expert