data_sheet.details.realestate.section.main.otthonstart_flag.label
For sale family house,
H508137
Újszász
30,000,000 Ft
78,000 €
- 110m²
- 4 Rooms














Eladó 110nm tégla építésű családi ház Újszászon
Újszászon, a vasútállomás közelében eladó, felújított, kétszintes családi ház:
- beton alapon, tégla falazat,
- 110nm belső hasznos alapterület,
- 4 szoba,
- új külső vakolat,
- új villany- és vízvezetékek,
- új fürdőszoba,
- új műanyag nyílászárók,
- konvektoros fűtés,
- hűtő- fűtő klíma,
- összközműves, összkomfortos,
- felújított cseréptető,- 341nm telek.
A vasútállomás gyalogosan 400méterre található.
Az ingatlan per-és tehermentes, azonnal költözhető.
Fotók feltöltése folyamatosan.
Irodánkban bankfüggetlen hitelügyintézéssel állunk ügyfeleink rendelkesére.
A hirdetésben szereplő információk a megbízótól származnak, azért az iroda felelősséget nem vállal.
- beton alapon, tégla falazat,
- 110nm belső hasznos alapterület,
- 4 szoba,
- új külső vakolat,
- új villany- és vízvezetékek,
- új fürdőszoba,
- új műanyag nyílászárók,
- konvektoros fűtés,
- hűtő- fűtő klíma,
- összközműves, összkomfortos,
- felújított cseréptető,- 341nm telek.
A vasútállomás gyalogosan 400méterre található.
Az ingatlan per-és tehermentes, azonnal költözhető.
Fotók feltöltése folyamatosan.
Irodánkban bankfüggetlen hitelügyintézéssel állunk ügyfeleink rendelkesére.
A hirdetésben szereplő információk a megbízótól származnak, azért az iroda felelősséget nem vállal.
Registration Number
H508137
Property Details
Sales
for sale
Legal Status
used
Character
house
Construction Method
brick
Net Size
110 m²
Gross Size
120 m²
Plot Size
341 m²
Heating
gas convector
Ceiling Height
275 cm
Number of Levels Within the Property
2
Orientation
West
Condition
Good
Condition of Facade
Good
Neighborhood
quiet, good transport
Year of Construction
1980
Number of Bathrooms
1
Water
Available
Gas
Available
Electricity
Available
Sewer
Available
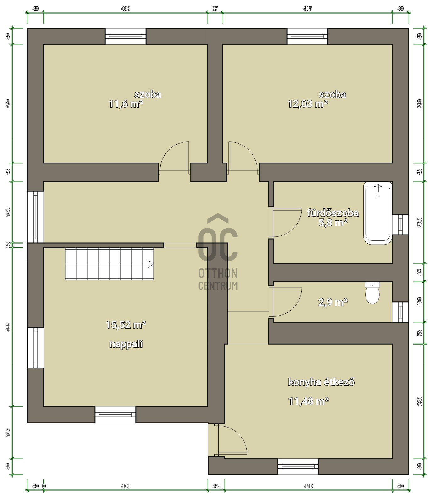
Rooms
room
11.6 m²
room
13 m²
living room
18.4 m²
open-plan kitchen and dining room
11 m²
bathroom-toilet
5.8 m²

Szuda Zsolt
Credit Expert