36,900,000 Ft
94,000 €
- 720m²














Szentendrén, csodálatos panorámás telek!
Gyönyörű panorámával rendelkező építési telek eladó!
Amit tudni érdemes:
- 720 nm
- 10 % beépítettségi lehetőség
- Építmény magassága 4,5 méter
- 30 méteres utcafrontal rendelkezik
- Víz telken belül, a többi közmű az utcában elérhető.
- Üh/1 építési övezetbe tartozik.
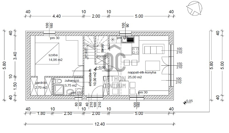
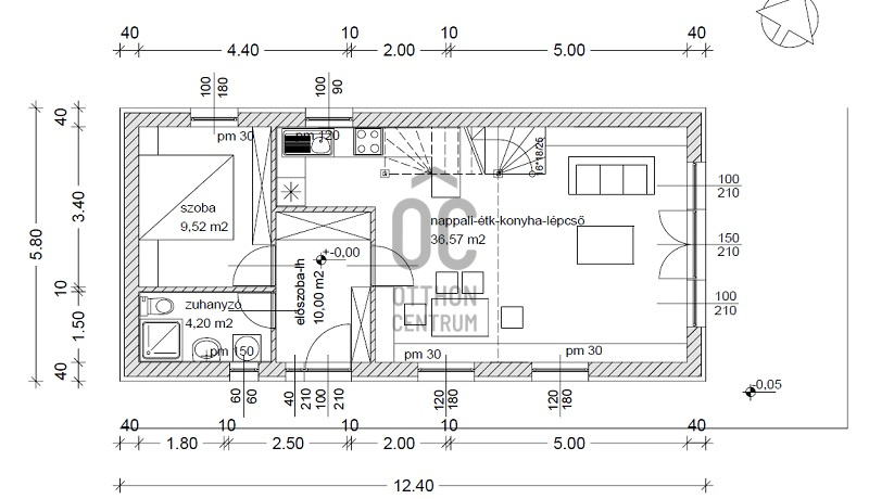
- A tervrajz is megvan, már csak engedélyeztetni kell.
Ha a leírtak és a látottak alapján felkeltettem az érdeklődését, megelőlegezett bizalmát előre is megköszönve, akár a hétvégén is várom szíves jelentkezését!
Amit tudni érdemes:
- 720 nm
- 10 % beépítettségi lehetőség
- Építmény magassága 4,5 méter
- 30 méteres utcafrontal rendelkezik
- Víz telken belül, a többi közmű az utcában elérhető.
- Üh/1 építési övezetbe tartozik.
- A tervrajz is megvan, már csak engedélyeztetni kell.
Ha a leírtak és a látottak alapján felkeltettem az érdeklődését, megelőlegezett bizalmát előre is megköszönve, akár a hétvégén is várom szíves jelentkezését!
Registration Number
T039921
Property Details
Sales
for sale
Character
plot
Type of Land
Building plot
Zone
recreational zone
Plot Size
720 m²
Orientation
East
Neighborhood
quiet, green
Water
Available
Gas
On the street
Electricity
On the street
Sewer
On the street
Slope of Land
0-10% slope
Buildability
10%
Facade Height
4
Type of Buildable Property
Family house

Bán Marianna
Credit Expert